
|
人多多少少都有一種攀比心理,就連建房子也一樣,一家建的比一家高,恐怕因為房子低矮人一等。建兩層的房子又不經濟,村里還對建筑高度有限制。圖紙之家為大家推薦的下面這個10萬農村別墅設計圖,遠看像二層,實際是一層,不僅省錢舒適,也絕對不會輸給小別墅。
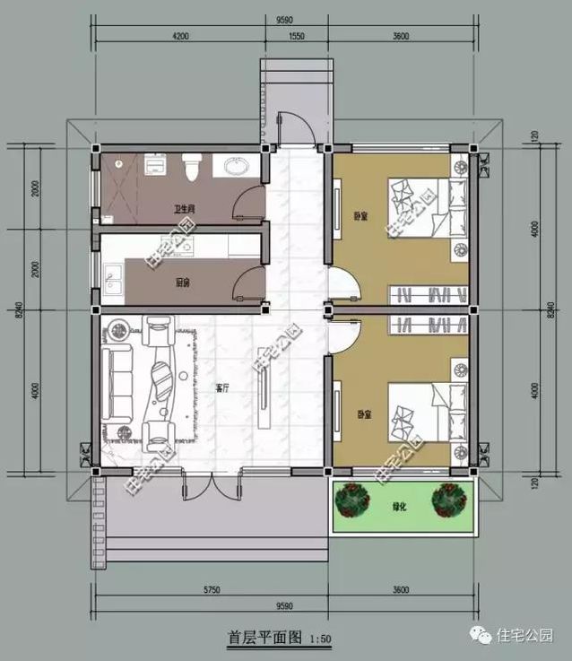
此別墅占地9米X8米,占地面積96平方米,建筑面積79平方米,總高度7.14米,共設2室1廳、1衛這個一層的小平房采用坡屋頂建造,相比平屋頂而言,造型更加美觀、洋氣,門前木質材料的運用對房子起到了很好的裝飾作用,設計美感頗佳。夏天還可以在上面種些爬山虎,住宅更具風情。 立面圖: 在建筑造型上,沒有拖泥帶水的的裝飾,一切以“精、簡”為調性,小巧簡約低調,適合三口之家建造。
平面布局圖: 此戶型有入戶臺階,這樣的設計有步步高升的美好寓意,臺階右側有綠化區域,讓住宅充滿生機。室內設有2臥室、1客廳、1廚房、1衛生間,布局經典合理,無浪費面積,前后入戶門,南北通透,居住舒適。
毛坯房工程預算: 此戶型磚混結構和框架結構都可以建造,相比之下磚混結構較為經濟,毛坯房7到8萬就可建成
圖紙之家-專注農村別墅/自建房設計18年,集合國內200余位經驗豐富的設計師,被評為口碑最好的農村建筑設計公司! |

歐式三層雙拼別墅設計圖,精致大氣布局實用,兄弟建房上上之選
占地:234平方米
高端三層豪宅別墅設計方案圖,帶地下室,過悠然愜意生活
占地:127.06平方米
兄弟合建中式一層四合院設計圖,古樸雅致代代相傳,永不過時
占地:468.03平方米
新款中式二層四合院住宅設計圖,農村自建帶露臺設計
占地:223平方米
偏中式徽派的二層房屋農村別墅設計圖,馬頭墻小青瓦
占地:123.36平方米
農村三層蓋房設計圖大全,最新的設計,最新的戶型
占地:150平方米
豪華歐式三層別墅住宅設計圖紙,占地面積150平方米
占地:150平方米
新款鄉村二層半別墅設計圖紙帶效果圖,三層別墅外觀圖片大全
占地:108.795平方米
200平方米穩重大氣三層雙拼別墅建筑設計圖紙,含效果圖19.04米
占地:200平方米
100平方米農村二層CAD設計圖紙帶外觀圖,12X8米
占地:100平方米
農村宅基地建房二層別墅設計圖,適合回鄉自建!
占地:137.5平方米
鄉村20萬內三層別墅房屋設計圖,面積適中、戶型經典
占地:100平方米
新中式三層別墅,旋轉樓梯+挑空客廳,高級感拉滿
占地:125平方米
100來平復式旋轉樓梯二層簡歐別墅設計圖,戶型實用
占地:101.523平方米
簡簡單單一層農村自建別墅方案,布局緊湊又不擁擠
占地:133.55平方米
100平簡單三層房屋設計圖紙,新農村自建推薦圖紙
占地:100平方米
80平方米三層農村自建民房設計圖,小戶型別墅方案
占地:81平方米
豪華雙拼三層別墅設計圖,在農村建一棟,將是最靚的風景!
占地:186.85平方米
農村四間兩層樓房設計圖,帶車庫,時尚經濟,最適合農村施工的
占地:180平方米
45萬新中式二層雙拼自建房別墅設計圖,平屋頂設計
占地:210平方米
推薦:10套新農村自建房設計圖,2026年最新設計
閱讀次數:4825737次
100套鄉村別墅圖片大全,2026年最新設計
閱讀次數:2492203次
6款農村蓋一層平房的設計圖,10萬元就能建起來
閱讀次數:1852637次
這11個一層農村自建房別墅火爆了朋友圈!我最喜歡戶型十!你呢
閱讀次數:750268次
農村6萬元建一層小別墅圖,你敢相信嗎
閱讀次數:567686次
農村5萬塊就能自建房,6套普通房子設計圖分享,你沒看錯!
閱讀次數:419410次
8套農村漂亮三間平房圖片,非常適合在農村修建!
閱讀次數:411197次
農村自建房化糞池怎么做?附方案及施工過程
閱讀次數:391783次
農村一層三間平房設計圖,告別土氣養老房,讓人忍不住點贊
閱讀次數:350581次
新農村二層樓房圖片造價12萬,挑一套回家建房吧!
閱讀次數:349126次
