
|
農民自有的宅基地面積都不是很大,基本上都在100-150這個面積之間,雖說現在有很多小戶型設計,但沒有一棟真真切切的讓自己感覺到喜歡,觸動到自己,究其原因就是戶型設計的不通透,不接地氣,一點都不符合咱們現有的生活要求,要想房子實用大氣,還是得要好好考慮一下戶型的設計要求才行。
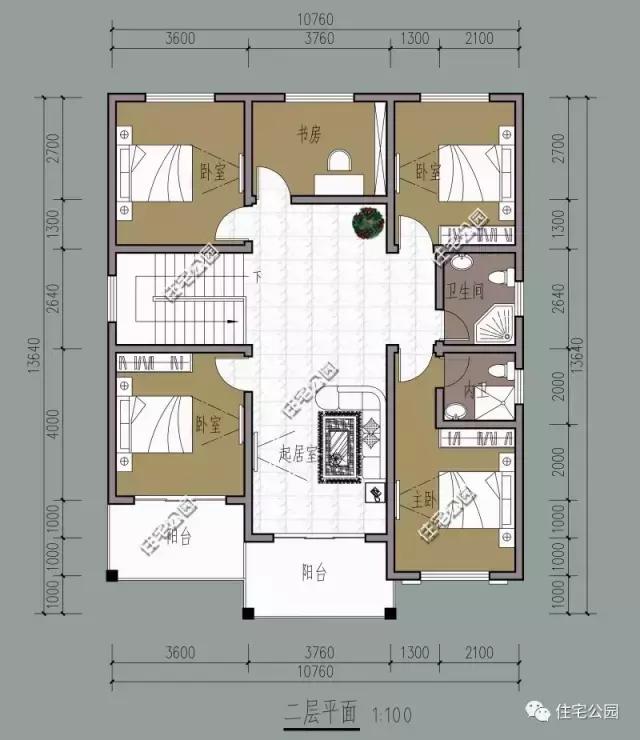
今天的這套戶型面寬11米,進深13.9米,占地面積146平方米,建筑面積278平方米,總高度10.35米,共設有6室 3廳 1書房 4衛(wèi) 1廚 1門斗 2陽臺。灰白的建筑配色,見棱見角的形態(tài)設計,簡約挺括,大氣典雅。格局設計無浪費面積,采光通風穩(wěn)定,居住體驗佳。 立面圖:
平面布局圖: 入門處設有玄關,避免開門見山;客廳餐廳一體化設計加大了空間容納,視覺效果更顯通透,首層雙臥室的配備設計也令居室更加自然和諧。
二層四臥一書房,作為最重要的居住空間,各臥室均設有獨立采光窗,同時南向雙陽臺設計也令生活更加怡然自得!
技術指標及造價表
圖紙之家-專注農村別墅/自建房設計18年,集合國內200余位經驗豐富的設計師,被評為口碑最好的農村建筑設計公司! |

110平房子設計圖,經典的農村自建房屋設計圖
占地:110平方米
14米×10米農村二層小別墅自建房設計圖,外觀設計時尚美觀
占地:125平方米
新中式復式三層別墅設計圖紙,最美的新中式別墅
占地:130平方米
新農村三層樓房住宅設計方案,戶型圖、效果圖、全套施工圖
占地:180平方米
適合7字型宅基地蓋的一層別墅,中式風格設計
占地:163平方米
帶架空層的農村一層小別墅設計圖,大氣穩(wěn)重又很實用
占地:123.5平方米
簡單漂亮實用的三層自建房設計圖,帶露臺,占地170平方米
占地:170平方米
114平方米農村四層別墅設計圖紙及效果圖,11X11米
占地:114平方米
最新潮的90平方米三層房屋設計圖 ,古樸典雅又不失時尚
占地:90平方米
鄉(xiāng)村一層平房設計圖,面寬13米平面圖及造型圖
占地:170平方米
兄弟合建房新農村三層雙拼別墅建筑圖紙及效果圖,300平方米
占地:301平方米
四開間一層半別墅設計圖,帶閣樓設計的戶型方案
占地:190.7平方米
帶地下車庫的三層別墅設計圖,160平復式戶型
占地:159.03平方米
160平方米二層小別墅設計圖紙及效果圖大全,12X13米
占地:162平方米
120平農村三層自建房屋設計圖,旋轉樓梯復式別墅戶型方案
占地:119.23平方米
農村二層樓房設計圖紙,含全套設計方案(施工圖+效果圖)
占地:98平方米
新中式120平米農村20萬元二層小樓圖,外觀柔和而雅致
占地:120平方米
20多萬的造價一層三合院農村自建房效果圖
占地:225.048平方米
漂亮的二層中式現代別墅圖,配色非常的溫馨淡雅
占地:160平方米
農村20萬左右三層住房設計圖,小宅基地首選
占地:95平方米
推薦:10套新農村自建房設計圖,2026年最新設計
閱讀次數:4825737次
100套鄉(xiāng)村別墅圖片大全,2026年最新設計
閱讀次數:2492203次
6款農村蓋一層平房的設計圖,10萬元就能建起來
閱讀次數:1852637次
這11個一層農村自建房別墅火爆了朋友圈!我最喜歡戶型十!你呢
閱讀次數:750268次
農村6萬元建一層小別墅圖,你敢相信嗎
閱讀次數:567686次
農村5萬塊就能自建房,6套普通房子設計圖分享,你沒看錯!
閱讀次數:419410次
8套農村漂亮三間平房圖片,非常適合在農村修建!
閱讀次數:411197次
農村自建房化糞池怎么做?附方案及施工過程
閱讀次數:391783次
農村一層三間平房設計圖,告別土氣養(yǎng)老房,讓人忍不住點贊
閱讀次數:350581次
新農村二層樓房圖片造價12萬,挑一套回家建房吧!
閱讀次數:349126次
