
|
為什么想在老家建房子?無非就是這兩種原因,一是為了家人,二是為了家鄉。落葉歸根是永遠不變的道理,無論在外漂泊多久只有家里是你停靠的港灣。 以前農村建房子都是那種方方正正的老三間,沒一點特色,建造設計又有很多地方不方便。如今呢,建造農村別墅越來越流行,并且現代風格戶型受到很多人的青睞,而且很多家庭人員多,需要建造一個大空間的戶型。 別墅設計:三層簡歐別墅,打造清新干凈主題,給你一個舒適的家! 今天小編給大家介紹一棟簡約大氣造價低的歐式三層別墅。
簡約歐式風格的別墅,戶型相對歐式風格來說更簡潔明亮,沒有過多的點綴,布局也是干脆利落,這樣可以提高空間的利用率,更受現代人的喜歡。 這款現代風格的農村別墅,第一眼看上去就非常的讓人驚艷外觀的配色非常的時尚,把家的溫馨感體現的淋漓盡致。
簡單的顏色搭配與敞亮的門窗,極簡主義是貫穿整個別墅外觀的設計語言。不用過于復雜的裝飾,而是采用簡潔的立面給人清新舒適的觀感。
別墅整體顏色偏淡,屋頂用的是橘色,和墻體很是搭配,別墅主體框架為四層結構,屋頂是斜頂設計,簡約又不失大氣。
再來看下建筑四立面造型:
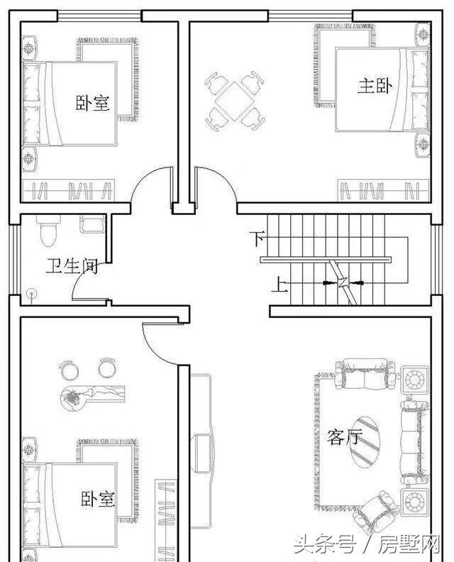
接下來看看這棟別墅的內部格局設計:
一層設計圖紙:客廳、餐廳、臥室、老人房。一樓的設計是普通的生活設計,老人房設計在一樓,方便老人的生活。
二樓設計圖紙:兩個次臥、主臥、客廳。二樓有三個臥室,完全滿足人員多的家庭。
三樓設計圖紙:兩個次臥、主臥、露臺。三樓也有臥室,可以當做是客臥,還有一個露臺,晚上看星星、燒烤的首選了。 圖紙之家-專注農村別墅/自建房設計18年,集合國內200余位經驗豐富的設計師,被評為口碑最好的農村建筑設計公司! |

135平復式別墅房屋設計圖,外觀時尚、漂亮
占地:135平方米
200平方米農村二層中式四合院設計圖,含外觀圖片
占地:200平方米
經典三層農村房屋設計圖紙,占地100平米左右,外觀典雅精致,內
占地:100平方米
鄉村三層簡單自建房子設計圖,全部建好34萬左右,外觀簡潔
占地:127.912平方米
自建小樓二層農村別墅設計圖,大氣好看,13米乘14米
占地:181.62
帶車庫三間復式三層樓房設計圖,外觀精致、大方
占地:150平方米
七字型設計新中式一層別墅設計圖,類合院風格
占地:267.3平方米
35萬左右的農村小別墅設計圖及效果圖,新中式風格
占地:137平方米
帶露臺陽光房二層建房別墅設計圖,13米乘12米,享受農村悠然慢
占地:143.54平方米
200平方米別墅設計圖紙(含效果圖),農村別墅方案精選
占地:200.26平方米
140平三層別墅房屋設計圖,含外觀圖片,外觀現代時尚
占地:143平方米
50萬左右農村豪華二層別墅設計圖 ,大廳中空,外觀精美
占地:210平方米
造型新穎漂亮的農村二層現代風別墅設計圖,老少皆宜的外觀
占地:144.54平方米
2026新款戶型三層新農村別墅房屋設計圖紙,外觀對稱
占地:160平方米
面寬20米四開間二層別墅,火爆全村的戶型,美好生活的起點
占地:245.73平方米
13×16米農村自建樓房三層別墅戶型設計圖,大氣
占地:168平方米
新式三層別墅設計圖,客廳中空,占地125平米左右
占地:125平米
二層農村雙拼別墅帶露臺設計圖,20×11.8米,單戶110平米
占地:220平方米
新農村中式二層樓房設計圖紙及效果圖,125,150,170三個戶型可行
占地:多種戶型
農村蓋平房設計大全圖,鄉下建房一層戶型圖及效果圖
占地:160平方米
推薦:10套新農村自建房設計圖,2026年最新設計
閱讀次數:4825737次
100套鄉村別墅圖片大全,2026年最新設計
閱讀次數:2492203次
6款農村蓋一層平房的設計圖,10萬元就能建起來
閱讀次數:1852637次
這11個一層農村自建房別墅火爆了朋友圈!我最喜歡戶型十!你呢
閱讀次數:750268次
農村6萬元建一層小別墅圖,你敢相信嗎
閱讀次數:567686次
農村5萬塊就能自建房,6套普通房子設計圖分享,你沒看錯!
閱讀次數:419410次
8套農村漂亮三間平房圖片,非常適合在農村修建!
閱讀次數:411197次
農村自建房化糞池怎么做?附方案及施工過程
閱讀次數:391783次
農村一層三間平房設計圖,告別土氣養老房,讓人忍不住點贊
閱讀次數:350581次
新農村二層樓房圖片造價12萬,挑一套回家建房吧!
閱讀次數:349126次
