
|
方正的轉腳堅實基礎,抬高房屋的地勢。房屋左側高大的一面落地采光窗,加強別墅的剛陽氣勢;右側雖然都是普通的窗戶,幾乎占據整個墻面的小型采光玻璃為采光通風貢獻了一份力。
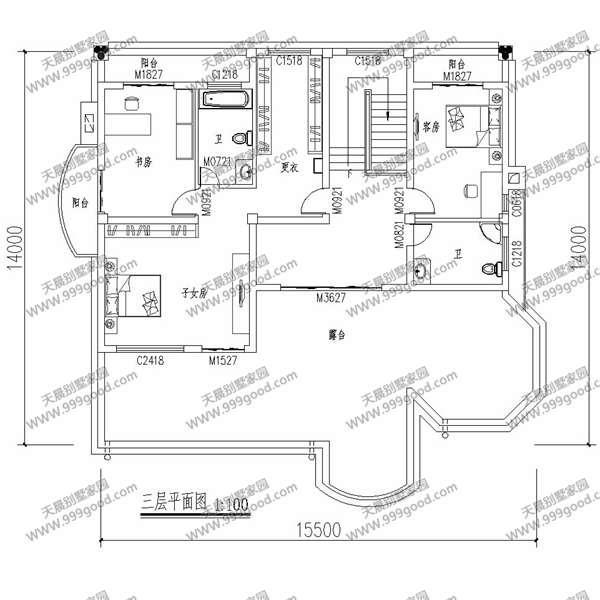
平面布局設計合理,無面積浪費。如:旋轉樓梯下的邊角做成雜物間。車庫多余的空間設計成工具間,提高空間利用率,發揮空間的最大價值。
一個空間空間闊度大,霸氣的客廳能夠瞬間提升別墅的氣勢。除了客廳,陽臺和露臺的增加也會另別墅非比尋常。
別墅立面圖:
圖紙之家-專注農村別墅/自建房設計18年,集合國內200余位經驗豐富的設計師,被評為口碑最好的農村建筑設計公司! |

新中式三層樓房設計圖,外觀精致布局也是相當的樸實
占地:140平方米
帶大套間新農村二層別墅自建房設計圖紙帶效果圖
占地:185平方米
農村自建房別再做傳統客廳!“客廳+茶室”一體設計,寬敞明亮
占地:143.73平方米
鄉村三層別墅CAD建筑設計圖,110平方米戶型,帶效果圖和全套施工
占地:110平方米
高端三層帶地下室別墅房屋設計圖方案及效果圖
占地:135平方米
160平方米新農村三層半別墅設計圖11X16米65萬以內
占地:160平方米
兩間二層農村自建房設計圖,面積雖小功能齊全,布局緊湊。
占地:118.75平方米
三層半復式別墅設計方案,全套設計圖+效果圖
占地:160平方米
三層現代平頂別墅設計圖,簡約時尚百看不厭,外觀令人驚艷!
占地:125.142平方米
農村二層半樓房設計圖及效果圖,歐式風格
占地:150平方米
帶土灶房一層四開間別墅設計方案,溫馨舒適的雅舍
占地:164.34平方米
160平小開間大進深農村三層別墅設計圖紙
占地:158.73平方米
12x10米農村建房圖紙,客廳中空,讓你后半輩子在稱贊聲中度過
占地:120平方米
美式田園二層別墅設計方案圖,全套設計圖+效果圖
占地:235平方米
農村中式兩層雙拼別墅房屋設計圖,含效果圖片
占地:200平方米
小開間三層新中式小別墅設計圖,外觀圖優雅大氣,讓人心動!
占地:103.18平方米
一層農村自建房設計,背面不開窗,15乘10米,內部布局實用
占地:多戶型可選
簡單大氣農村兄弟三層雙拼別墅住宅設計圖,13X8米
占地:110平方米左右
農村自建房鄉村超現代平屋頂二層別墅圖設計方案,造價低,施工
占地:142平方米
帶堂屋設計一層5間平房新農村自建別墅效果圖全套施工圖
占地:198.41平方米
推薦:10套新農村自建房設計圖,2026年最新設計
閱讀次數:4825737次
100套鄉村別墅圖片大全,2026年最新設計
閱讀次數:2492203次
6款農村蓋一層平房的設計圖,10萬元就能建起來
閱讀次數:1852637次
這11個一層農村自建房別墅火爆了朋友圈!我最喜歡戶型十!你呢
閱讀次數:750268次
農村6萬元建一層小別墅圖,你敢相信嗎
閱讀次數:567686次
農村5萬塊就能自建房,6套普通房子設計圖分享,你沒看錯!
閱讀次數:419410次
8套農村漂亮三間平房圖片,非常適合在農村修建!
閱讀次數:411197次
農村自建房化糞池怎么做?附方案及施工過程
閱讀次數:391783次
農村一層三間平房設計圖,告別土氣養老房,讓人忍不住點贊
閱讀次數:350581次
新農村二層樓房圖片造價12萬,挑一套回家建房吧!
閱讀次數:349126次
