
|
隨著互聯網的發展,生活在農村的老王決定建房子的時候,第一時間想到的就是去網上找圖紙。下面就是老王選中的樓房設計圖,紅色的坡屋頂,錯落有致,戶型的窗戶,洋氣范十足,陽臺、露臺、涼亭式的門廳,別墅整體時尚,讓人一見傾心,也怪不得老王一眼就看上了這套戶型。
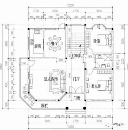
這是房子的平面布局圖: 一層復式客廳、老人房都在陽面,父母可以住這層,北側是廚房、餐廳和一個次臥,還算不錯;
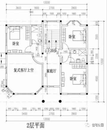
二層3個臥室、2個衛生間和一個家庭廳,自己和女兒住這層,就是來了客人也夠住;
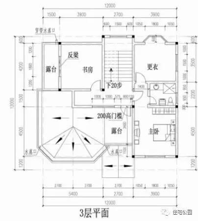
三層設計獨立、舒適,有一個主臥、兩個露臺和一個書房,主臥里有衣帽間(更衣室)、衛生間,私密性很好,將來可以當做兒子的婚房。
圖紙選好,就開始建房子了: ▼拆除舊房子,在原有的宅基地上根據新的圖紙測量放線,挖地基。
▼鋪設地基防水材料 這種材料可以是種材料卷材、JS復合材料、聚氨酯防水材料、防水膠等等乳液性的聚合物防水材料等。
▼擴大條形基礎完成
▼一層主體結構施工,砌筑墻體
▼樓梯施工
▼一層主體完成
▼安裝樓面模板、支撐
▼綁扎圈梁、樓板鋼筋、樓板混凝土現澆
▼二層主體結構施工
▼二層主體結構完成
▼屋面板以及屋面梁模板施工后,對屋面、屋脊梁進行鋼筋綁扎,然后整體現澆
▼外墻抹灰
▼外墻抹灰完成
▼對外墻進行美化施工
外墻美化有的用瓷磚、外墻磚,也有的用干掛大理石,并用文化石、金屬元素或者木質材料對其進行裝飾,此別墅根據圖紙,外墻使用真石漆。
▼美化完成 別墅建造完成,看起來是不是比效果圖還要接地氣?
即使從馬路的對面看,老王建的這座鄉村別墅也是一道亮麗的風景。如果您不喜歡這個戶型,住宅公園還有很多漂亮的別墅、四合院的圖紙可以下載。想要蓋別墅或者喜歡看別墅的朋友可以參考。
大家說老王建的這套別墅是不是比效果圖還要好看? 圖紙之家-專注農村別墅/自建房設計18年,集合國內200余位經驗豐富的設計師,被評為口碑最好的農村建筑設計公司! |

農村一層五間(6間)新農村設計圖方案,含外觀圖片
占地:193.47平方米
鄉村別墅現代風平屋頂四層自建房設計圖,簡約時尚
占地:144.7平方米
120平方米農村一層平房別墅設計圖紙,含外觀效果圖
占地:125平方米
帶小院七字形一層自建房戶型設計圖,平屋頂圖紙
占地:201.08平方米
農村15萬元一層半小樓圖,最新的戶型設計
占地:182.31平方米
帶電梯農村建房三層小洋樓,樓中樓結構,帶露臺
占地:110平方米
2款帶露臺農村別墅設計圖二層精選,造價超值性價比
占地:多戶型可選
歐式小型二層別墅效果圖片,帶全套Cad別墅設計圖紙
占地:120平方米
歐式風格三層別墅建筑設計圖,復式樓中樓結構
占地:138平方米
高端大氣三層半別墅客廳挑空設計,豪華農村自建房圖
占地:179.52平方米
高端大氣中式四合院二層別墅小樓設計圖,外觀古香古色
占地:213平方米
14米乘10米農村二層別墅新款,外觀對稱設計,經久耐看!
占地:140平方米
三間二層最好看別墅設計圖,簡單實用美到爆炸,農村建房新潮流
占地:121.51平方米
新農村自建20萬二層小樓外觀圖及戶型圖,簡單大方,漂亮接地氣
占地:130平方米
高顏值又實用的一層雙拼鄉村別墅設計圖,舒適度堪比豪宅
占地:217.3平方米
雅致的鄉下二層蓋別墅設計圖紙,造價35萬左右
占地:178平方米
鄉村一層平房設計圖,面寬13米平面圖及造型圖
占地:170平方米
農村二層半樓房效果圖及全套設計圖紙,自建房簡單實用
占地:121平方米
新款三層豪華大氣歐式別墅設計圖,3種戶型設計方案
占地:125平方米左右
農村120平方房子設計圖,三層房屋設計圖精選
占地:120平方米
推薦:10套新農村自建房設計圖,2026年最新設計
閱讀次數:4825737次
100套鄉村別墅圖片大全,2026年最新設計
閱讀次數:2492203次
6款農村蓋一層平房的設計圖,10萬元就能建起來
閱讀次數:1852637次
這11個一層農村自建房別墅火爆了朋友圈!我最喜歡戶型十!你呢
閱讀次數:750268次
農村6萬元建一層小別墅圖,你敢相信嗎
閱讀次數:567686次
農村5萬塊就能自建房,6套普通房子設計圖分享,你沒看錯!
閱讀次數:419410次
8套農村漂亮三間平房圖片,非常適合在農村修建!
閱讀次數:411197次
農村自建房化糞池怎么做?附方案及施工過程
閱讀次數:391783次
農村一層三間平房設計圖,告別土氣養老房,讓人忍不住點贊
閱讀次數:350581次
新農村二層樓房圖片造價12萬,挑一套回家建房吧!
閱讀次數:349126次
