
|
村里蓋房年年有,據米兒預計,今年應該會特別多,并且90后會成為回鄉蓋房主力軍。 現在蓋房的人跟以往大不一樣了,有錢生活好了,思想開放了,膽子大了,也不怕村里誰紅眼搗亂啥的。這不,90后小伙明說了要蓋大氣實用,外觀還得超華麗的新款農村三層樓房。原來老一輩包工頭畫的土房子一概不看,于是就有了下面的圖紙…
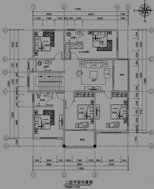
建筑占地面積:11.8m*12.8m=150平方米; 建筑面積:438平方米 造價預算:40萬 建筑高度:10米(不含屋頂)坡屋頂; 結構形式:磚混結構; 蓋房設計指導:多層混合結構農村別墅設計圖,現澆混凝土樓、屋面。基礎采用現澆鋼筋混凝土墻下條形基礎及柱下獨立基礎。合理使用年限為五十年,建筑安全等級為二級。抗震設防烈度:六度。基礎承載力按 fak=160kN/m2(特征值)設計 平面圖
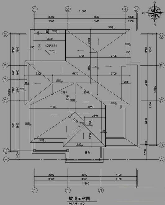
屋頂結構示意圖 立面圖
你也有90后兄弟這樣的膽子嗎?圖紙都在著了,直接拿去蓋吧,沒有大風險就沒有大收獲。人生就像蓋房,敢于前行的人才能引領更多的人走向新的巔峰! 圖紙之家-專注農村別墅/自建房設計18年,集合國內200余位經驗豐富的設計師,被評為口碑最好的農村建筑設計公司! |

頂配三拼三層別墅設計,獨立入戶+共享庭院,兄弟三家共享奢華
占地:367.44平方米
最美農村一層合院設計圖紙,自建一棟火遍十里八鄉
占地:190平方米左右
歐式三層豪宅樓設計圖紙及外觀效果圖,占地180平左右
占地:177.82平方米
100平方米自建三層半別墅設計圖紙,帶地下車庫
占地:100平方米
鄉村仿古一層別墅圖片及設計圖,經典實用,占地170平
占地:170平方米
100平米兩間三層樓房設計圖,農村蓋房舒服實用最重要
占地:100平方米
農村二層別墅設計圖,帶外觀效果圖,兄弟自建推薦
占地:多種戶型
?13.5x9米這尺寸火了!好多人家照著建這款二層別墅,簡單實用
占地:115.11平方米
二層樓房設計圖,占地120平米左右,符合現代農村的建房政策
占地:120平方米
農村2026新式三間二層樓房,12×11.6米,戶型經典,造價實惠
占地:120平方米
農村10萬自建一層平房設計圖,占地面積120平米
占地:120平方米
小占地二層徽派別墅設計圖,白墻黛瓦韻味十足,太氣派了
占地:89.6平方米
120平米三層別墅房屋設計圖,帶車庫,帶閣樓
占地:120平方米
歐式風格高檔三層別墅設計圖紙,帶高清外觀效果圖
占地:105平方米
中式三層新農村房子別墅設計圖,看了那么久,還是中式最有韻味
占地:97.2平方米
高端四間五間兩層別墅設計圖紙,開間20米自建房效果圖
占地:265平方米
最新歐式三層別墅設計圖紙,超漂亮,預算30到40萬
占地:160平方米
110平方米新農村二層別墅設計圖及效果圖,12.36x9.36米
占地:115平方米
帶框架層的四層別墅設計圖,框架層功能布局很多,很實用
占地:169.09平方米
南方北方新農村房屋設計圖紙(含效果圖),三層住宅設計圖紙
占地:164平方米
推薦:10套新農村自建房設計圖,2026年最新設計
閱讀次數:4825737次
100套鄉村別墅圖片大全,2026年最新設計
閱讀次數:2492203次
6款農村蓋一層平房的設計圖,10萬元就能建起來
閱讀次數:1852637次
這11個一層農村自建房別墅火爆了朋友圈!我最喜歡戶型十!你呢
閱讀次數:750268次
農村6萬元建一層小別墅圖,你敢相信嗎
閱讀次數:567686次
農村5萬塊就能自建房,6套普通房子設計圖分享,你沒看錯!
閱讀次數:419410次
8套農村漂亮三間平房圖片,非常適合在農村修建!
閱讀次數:411197次
農村自建房化糞池怎么做?附方案及施工過程
閱讀次數:391783次
農村一層三間平房設計圖,告別土氣養老房,讓人忍不住點贊
閱讀次數:350581次
新農村二層樓房圖片造價12萬,挑一套回家建房吧!
閱讀次數:349126次
