
|
小時候,常聽老人說:“房子是要人去住的,不住,房子就會垮掉”,人為了有個遮風避雨的地方,設計、建造出房子,房子因為有人居住而有了生命力。 這個比夏日還燥熱的時代,人們拼搏著,努力著,只為了能在城里買下一套房,卻忘掉了房子的本意。 房子,對于農村人來說,不僅僅是遮風擋雨的場所,更是一個人心有所系的精神家園 。 一座房子的生成需要淬煉的需要不斷磨礪的,是多少年積累下來的心血,馬虎不得!
建筑面積:275.72m²
一層 尺寸:11.789m×12.389m 一層設有臥室,衛生間,堂屋,客廳,廚房,餐廳,車庫
二層 尺寸:11.789m×12.389m 二層設有主臥(含衛生間)×1,臥室×2,衛生間,起居室,書房,娛樂室
建筑面積:117.20m²
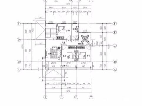
由于是加建房,一層不做介紹 二層 尺寸:10.270×10.350m 層高:3.2m 二層設有主臥,次臥,客臥,衛生間,客廳,娛樂室,陽臺
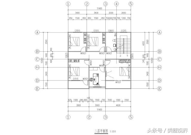
一層 尺寸:11.400×10.300m 一層設有臥室,衛生間,餐廳,客廳,廚房
二層 尺寸:11.400×10.300m 二層設有臥室×4,書房,衛生間
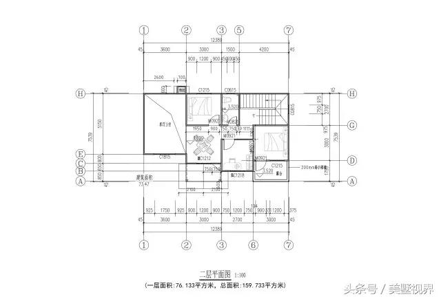
建筑面積:159.733m²
一層 面積:83.60m² 尺寸:12.389m×7.539m 層高:3.0m 一層設有臥室(含衛生間)×1,衛生間,客廳,廚房,餐廳
二層 面積:73.47m² 尺寸:12.389×7.539m 層高:3.0m 二層設有臥室×2,衛生間,露臺,棋牌室
建筑面積:404.92m² 一層 面積:225.46m² 尺寸:16.439m×12.519m 一層設有臥室(含衛生間)×1,臥室,衣帽間,廚房,車庫,餐廳,客廳,衛生間,門廳
二層 面積:167.30m² 尺寸:16.439m×12.519m 二層設有主臥(含衛生間)×1,臥室×2,書房,衣帽間,衛生間,淋浴間,起居室,露臺 圖紙之家-專注農村別墅/自建房設計18年,集合國內200余位經驗豐富的設計師,被評為口碑最好的農村建筑設計公司! |

帶獨立堂屋的農村自建房設計,二層別墅設計方案圖
占地:109平方米左右
農家中式小院一層三合院自建房,布局寬敞大氣又舒適
占地:186.07平方米
農村三層樓房設計圖紙及效果圖,經典自建圖紙
占地:201平方米
農村200平一層別墅房屋設計圖,外觀圖片時尚、漂亮
占地:200平方米
四間兩層實用簡約的住房設計圖,毛坯24萬,農村建正合適
占地:159.48平方米
開間14米!農村養老一層別墅神戶型,爸媽住得安心,施工隊狂贊太
占地:160.86平方米
農村二層住宅別墅設計圖,貼心實用,12.8米乘14.5米
占地:156.16平方米
三層新中式別墅設計圖,面寬12米經典漂亮
占地:154.93平方米
田園兩層半別墅新農村房屋施工設計圖,外觀清新靚麗感情色彩豐
占地:144.12平方米
開間9到10米簡約別墅設計圖紙帶效果圖,全套別墅設計方案
占地:122平方米
80平方米新農村三層房屋設計圖,新農村住宅圖紙精選
占地:80平方米
外觀造型對稱的二層別墅設計圖,老虎窗+挑空客廳
占地:175.2平方米
11x9三層別墅房屋設計圖,含效果圖片
占地:97平方米
農村小戶型二層房屋別墅設計圖,帶外觀效果圖
占地:95平方米
帶電梯高端四層別墅房屋設計圖,外觀圖大氣、上檔次
占地:220平方米
歐式農村三層小別墅設計圖,占地120平米,客廳中空,空間利用率
占地:120平方米
現代簡約時尚二層帶超大露臺農村別墅戶型,既可以休閑又可晾曬
占地:100.06平方米
鄉村三層別墅設計圖紙,帶屋頂花園(含效果圖)
占地:150平方米
12x9米自建一層小別墅設計圖,占地不大造價低,簡單舒適人人夸
占地:108.36平方米
2026二層農村新款別墅設計圖,帶車庫,帶鍋爐房
占地:180平方米
推薦:10套新農村自建房設計圖,2026年最新設計
閱讀次數:4825737次
100套鄉村別墅圖片大全,2026年最新設計
閱讀次數:2492203次
6款農村蓋一層平房的設計圖,10萬元就能建起來
閱讀次數:1852637次
這11個一層農村自建房別墅火爆了朋友圈!我最喜歡戶型十!你呢
閱讀次數:750268次
農村6萬元建一層小別墅圖,你敢相信嗎
閱讀次數:567686次
農村5萬塊就能自建房,6套普通房子設計圖分享,你沒看錯!
閱讀次數:419410次
8套農村漂亮三間平房圖片,非常適合在農村修建!
閱讀次數:411197次
農村自建房化糞池怎么做?附方案及施工過程
閱讀次數:391783次
農村一層三間平房設計圖,告別土氣養老房,讓人忍不住點贊
閱讀次數:350581次
新農村二層樓房圖片造價12萬,挑一套回家建房吧!
閱讀次數:349126次
