
|
這套圖紙相信很多朋友都在各大網站,論壇看到過,算是新農村別墅設計的代表作品,建筑的案例也有很多,今天就能大家分享這樣一款樓房設計圖。 效果圖
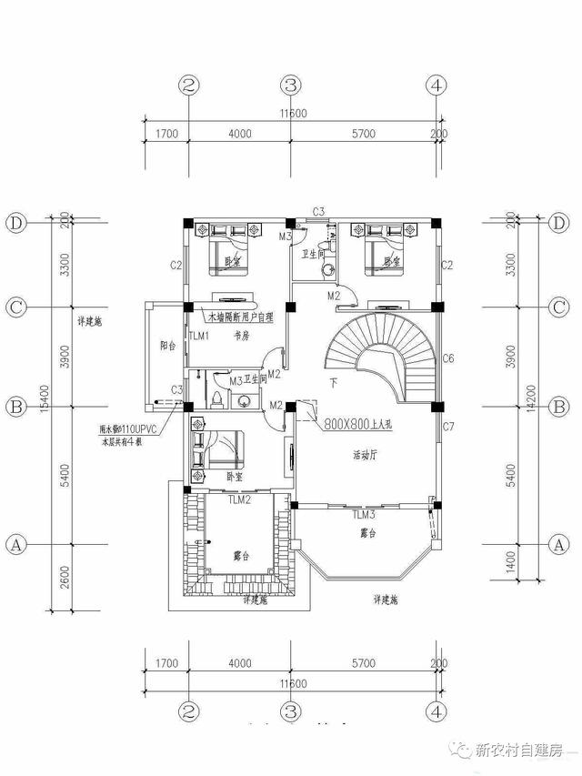
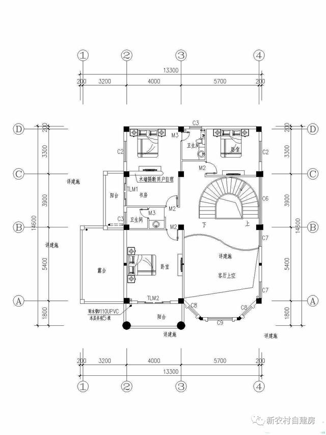
戶型的3層的獨棟別墅,開間13.3米,進深14.6米,可磚混可框架。外觀造型高低錯落有致,非常的有層次感,色彩搭配的也鮮亮明快,采光通風性很好。 實建圖
在實建的過程中,外觀顏色上作了一些調整,但是也很美觀,別有一種風情。 戶型布局
一層設有入口玄關、客廳、臥室、衛生間、車庫、餐廳、廚房; 二層設有三個臥室、2個衛生間、大陽臺、書房、客廳都是懸空的; 三層設有3個臥室、2個衛生間、書房、活動廳、2個大露臺。 圖紙之家-專注農村別墅/自建房設計18年,集合國內200余位經驗豐富的設計師,被評為口碑最好的農村建筑設計公司! |

新農村中式三層四合院別墅設計戶型圖,農村自建四合院效果圖
占地:多種戶型
200多平方米新農村雙拼別墅設計圖紙,堂屋和樓梯共用
占地:207平方米左右
120平方米新農村二層自建房屋設計圖紙大全14x9米
占地:120平方米
95平方米農村四層房屋設計圖,8米X11米 ,預算37萬
占地:95平方米
實用型二層別墅設計圖,簡單大方最耐看,16.5米乘11米
占地:150.94平方米
兩戶250平方米農村豪華歐式三層兄弟雙拼別墅設計圖
占地:251平方米
26萬二層平頂別墅樓設計圖,客廳中空,占地120平米
占地:120平方米
歐式三層樓房設計圖,客廳中空,旋轉樓梯,帶土灶房
占地:206平方米
100平方米自建房二層設計圖紙及效果圖,12x9米
占地:100平方米
簡單大氣農村兄弟三層雙拼別墅住宅設計圖,13X8米
占地:110平方米左右
165平方米農村帶陽光房的二層小別墅設計圖紙帶外觀圖18.16米*9.
占地:166平方米
2026最美三層別墅設計圖紙及效果圖,十佳最美農村別墅
占地:151平方米
二層半大客廳復式別墅房屋設計圖,客廳寬闊明亮
占地:125平方米
新農村二層歐式別墅設計圖,外觀漂亮,主體18萬起建
占地:115.2平方米
農村二層半樓房設計圖及效果圖,歐式風格
占地:150平方米
青瓦仿古中式大型三層別墅設計圖,韻味十足復古大氣
占地:300平方米
高端農村三層歐式房屋設計圖紙,帶車庫,帶露臺
占地:163平方米
一層中式四合院別墅設計方案圖,含外觀效果圖
占地:360平方米含院子
中式古風別墅設計圖,一層三合院設計,經濟舒適,時尚與傳統的
占地:275.7平方米
占地200平農村二層自建房設計方案戶型,陽面臥室多
占地:208平方米
推薦:10套新農村自建房設計圖,2026年最新設計
閱讀次數:4825737次
100套鄉村別墅圖片大全,2026年最新設計
閱讀次數:2492203次
6款農村蓋一層平房的設計圖,10萬元就能建起來
閱讀次數:1852637次
這11個一層農村自建房別墅火爆了朋友圈!我最喜歡戶型十!你呢
閱讀次數:750268次
農村6萬元建一層小別墅圖,你敢相信嗎
閱讀次數:567686次
農村5萬塊就能自建房,6套普通房子設計圖分享,你沒看錯!
閱讀次數:419410次
8套農村漂亮三間平房圖片,非常適合在農村修建!
閱讀次數:411197次
農村自建房化糞池怎么做?附方案及施工過程
閱讀次數:391783次
農村一層三間平房設計圖,告別土氣養老房,讓人忍不住點贊
閱讀次數:350581次
新農村二層樓房圖片造價12萬,挑一套回家建房吧!
閱讀次數:349126次
