
|
農村蓋房多精簡小戶型設計,面寬小進深長,狹長地形也能蓋出好房子,在不規整的宅地上方,通過設計師之手,繪出如此詳細的圖紙,與施工隊強強聯合,實現了這套農村二層樓房實景圖。
今天的這套農村別墅面寬9.1米,進深15.6米,占地面積138平方米,建筑面積238平方米,總高度11.2米。共設3室 3廳 2衛 1廚 1陽臺 1書房。
立面圖: 在實際宅地條件中,很多為小面寬長進深,設計者根據這一情況,特別設計出了這套別墅以滿足這類群體的建房需要;別墅面寬雖小,采光有局限,但大落地窗,挑空客廳等,都完美的弱化了這一不足,增加了居住的舒適度。
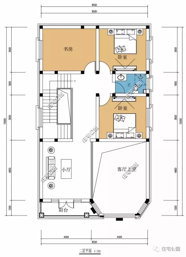
平面布局圖: 別墅定位舒適居家的小戶型,首層平面布局精簡大氣,南北雙開入戶門,方便出入;并配有挑空客廳設計,從視覺上增強了別墅的內在闊度,營造出居家的氛圍感。
二層雙臥一書房,西側設有小廳設計,以滿足二層的生活需求。
技術指標及造價表
圖紙之家-專注農村別墅/自建房設計18年,集合國內200余位經驗豐富的設計師,被評為口碑最好的農村建筑設計公司! |

帶架空層的農村一層小別墅設計圖,大氣穩重又很實用
占地:123.5平方米
農村二層半雙拼別墅設計圖,客廳中空,帶大露臺
占地:270平方米
一層4間自建平房別墅及全套戶型圖紙,占地160平左右,簡單實用
占地:162.13平方米
兩戶190平方米新農村雙拼別墅全套設計方案及效果圖
占地:191平方米
新農村二層自建房設計圖帶外觀圖片,自建戶型大全
占地:160平方米
簡單實用二層雙拼樓房設計圖,造價30萬左右
占地:180平方米
實用農村10萬一層小別墅戶型圖及圖紙,全套施工圖
占地:多種面積
帶車庫的別墅設計圖紙,外觀效果圖二層半設計,全套建筑施工圖
占地:174平方米左右
高端大氣的三層新中式合院別墅設計圖紙及外觀效果圖
占地:203.4平方米
農村120平三層樓房設計圖,造型現代,帶屋頂花園
占地:120平方米
大平方大面積別墅設計方案圖,樓中樓客廳中空
占地:247平方米
185平方米二層自建別墅設計施工圖紙及外觀效果圖,15x13米
占地:186平方米
兩層半雙拼別墅設計方案,超大露臺+歐式風格,好設計別錯過!
占地:175.8平方米
農村四層樓房設計圖,含外觀圖片,自建四層房屋推薦
占地:140平方米
120平方米農村一層平房別墅設計圖紙,含外觀效果圖
占地:125平方米
120平面三層鄉村樓房設計圖及效果圖,歐式風格
占地:120平方米
農村簡單雙拼小戶型,簡單適用,客廳中空,總占地210平方米
占地:210平方米
115平旋轉樓梯三層復式別墅房屋設計圖,含外觀效果圖
占地:115平方米
高端大氣的農村四層樓房別墅設計圖,戶型真不錯,占地130多平
占地:135.31平方米
150平米經典二層中式別墅設計圖 ,現代中式相結合
占地:154平方米左右
推薦:10套新農村自建房設計圖,2026年最新設計
閱讀次數:4825737次
100套鄉村別墅圖片大全,2026年最新設計
閱讀次數:2492203次
6款農村蓋一層平房的設計圖,10萬元就能建起來
閱讀次數:1852637次
這11個一層農村自建房別墅火爆了朋友圈!我最喜歡戶型十!你呢
閱讀次數:750268次
農村6萬元建一層小別墅圖,你敢相信嗎
閱讀次數:567686次
農村5萬塊就能自建房,6套普通房子設計圖分享,你沒看錯!
閱讀次數:419410次
8套農村漂亮三間平房圖片,非常適合在農村修建!
閱讀次數:411197次
農村自建房化糞池怎么做?附方案及施工過程
閱讀次數:391783次
農村一層三間平房設計圖,告別土氣養老房,讓人忍不住點贊
閱讀次數:350581次
新農村二層樓房圖片造價12萬,挑一套回家建房吧!
閱讀次數:349126次
