
|
江南好,風景舊曾諳。 日出江花紅勝火,春來江水綠如藍。 能不憶江南? 這是出自唐代白居易的詩,也是大自然賦予我們栩栩如生的生活畫面。自然將這么美得景色賦予我們,我們理應樂在其中,好好享受。這套現代別墅的設計正是如詩如歌,將自然美景完全融入到了生活。
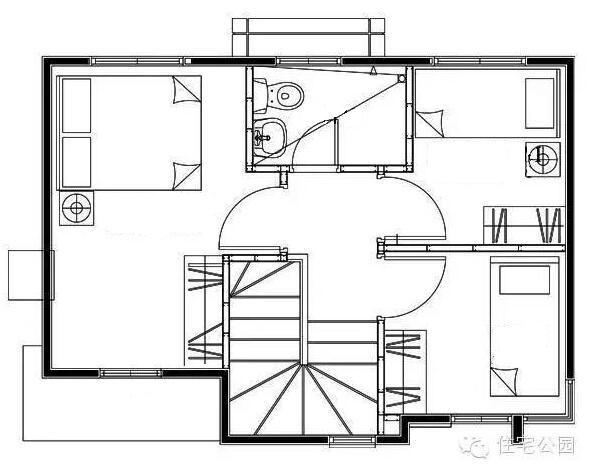
雖說這是一套現代風格的別墅,但是設計師多采用古樸的色調,比如說青色的文化石外墻、木質的花架和車棚,與大地的顏色和諧統一,又帶有藝術的氣息,現在很多商店的藝術裝飾都會采用這個色調。除了庭院四周的綠色植物外,設計師還大量采用了落地窗,將室外美景引入室內,一切都是那么的接近自然,與自然和諧共處。 平面布局圖:
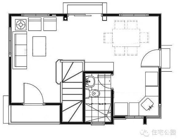
房子不是很大,但是能住3~5口人,并且靜動分離,一層負責生活起居的動態區域,有客廳、餐廳和廚房;二層負責起居生活的靜態區域,有三個臥室供家人休息。二層有個小陽臺,還可以擺放些盆栽植物,環境會更加優雅。
住宅親近自然,慢慢享受生活帶給我們的寧靜與美好! 圖紙之家-專注農村別墅/自建房設計18年,集合國內200余位經驗豐富的設計師,被評為口碑最好的農村建筑設計公司! |

西班牙風格農村二層樓房設計圖及效果圖,實用美觀
占地:170平方米
帶屋頂平臺的一層農村小別墅圖,有閣樓有露臺
占地:152平方米
適合小面寬宅基地的兩開間別墅設計圖,8.5米乘13.5米
占地:107.66平方米
農村40萬房子圖片外觀設計效果圖,帶地下室,外觀時尚大氣
占地:110平方米
經濟實用二層樓房設計圖紙,功能布局多,12×11米
占地:130平方米
帶堂屋設計一層三合院設計圖,白墻黛瓦古韻悠悠,比高層舒服接
占地:179.37平方米
2026新款四層樓房設計圖,占地120平方米左右,客廳中空
占地:120平方米
三層三間別墅設計圖方案,含外觀圖片,自建推薦
占地:125平方米
帶車庫帶露臺二層農村小別墅設計圖,宅基地大小適中,外觀造型
占地:180平方米
大氣農村三層歐式雙拼別墅全套施工圖紙,帶堂屋設計,外觀圖片
占地:196.056平方米
鄉村三層簡單自建房子設計圖,全部建好34萬左右,外觀簡潔
占地:127.912平方米
125平方米復式三層別墅房屋設計圖,房間多,采光好
占地:125平方米
新農村兄弟合建三層雙拼房屋設計方案圖,開間18米有全套圖紙
占地:237.21平方米
簡簡單單一層農村自建別墅方案,布局緊湊又不擁擠
占地:133.55平方米
140平方米三層豪華新中式別墅設計圖紙帶外觀效果圖
占地:141.35平方米
農村現代三層建房子設計圖及圖片,平屋頂的設計
占地:150平方米
新農村三層豪華歐式別墅,復式高端自建房設計圖紙及效果圖
占地:多種戶型
簡單平房農村自建一層別墅設計圖,時尚大氣,造價經濟
占地:166平方米
農村18萬元二層小樓圖紙,漂亮實用的農村二層樓房設計圖
占地:140平方米
帶地下室的農村自建三層半歐式別墅設計圖,看著真豪氣!
占地:142.45平方米
推薦:10套新農村自建房設計圖,2026年最新設計
閱讀次數:4825737次
100套鄉村別墅圖片大全,2026年最新設計
閱讀次數:2492203次
6款農村蓋一層平房的設計圖,10萬元就能建起來
閱讀次數:1852637次
這11個一層農村自建房別墅火爆了朋友圈!我最喜歡戶型十!你呢
閱讀次數:750268次
農村6萬元建一層小別墅圖,你敢相信嗎
閱讀次數:567686次
農村5萬塊就能自建房,6套普通房子設計圖分享,你沒看錯!
閱讀次數:419410次
8套農村漂亮三間平房圖片,非常適合在農村修建!
閱讀次數:411197次
農村自建房化糞池怎么做?附方案及施工過程
閱讀次數:391783次
農村一層三間平房設計圖,告別土氣養老房,讓人忍不住點贊
閱讀次數:350581次
新農村二層樓房圖片造價12萬,挑一套回家建房吧!
閱讀次數:349126次
