
|
現在的農村家庭成員情況,基本上都是祖孫同住,爺爺奶奶跟自己住在一起,一棟房子里有三代人居住,這樣的話對房子的要求會更高,除了要有能滿足日常生活的臥室外,每層設計都要看做是一個單獨的功能用房,今天就給大家展示一套農村4層自建房戶型,滿足有蓋房需求的你!
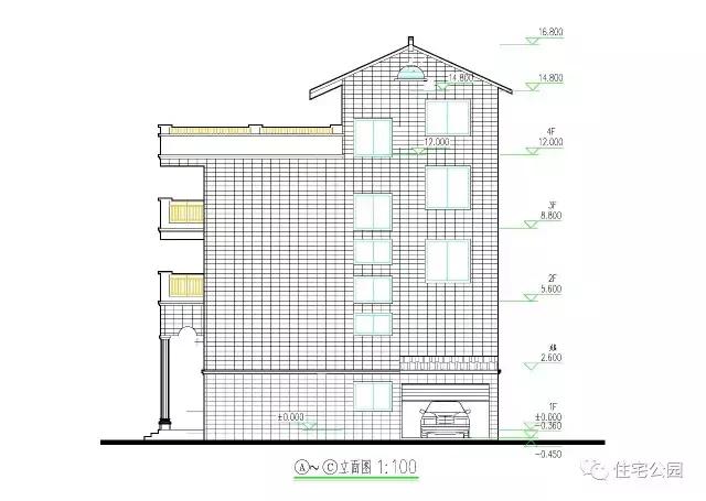
今天的這套別墅面寬10.2米,進深14.8米,占地面積140平方米,建筑面積540平方米,總高度17.25米,內設6室 3廳 6衛 1廚 1餐廳 1儲藏間 1車庫 1健身房 1洗衣房 1露臺,由建筑師胡工執掌設計。 立面圖展示:
相同的宅地面積,高層別墅更可以充分的利用,以營造出更多的居住使用空間,這點顯而易見;而這套別墅的亮點,則是在于它的室內布局以及區域劃分,樓層之間功能性強且獨立性好,是一棟設計非常合理巧妙的高層鄉村別墅。
平面布局圖:雖說是四層建筑,但是各個樓層布局都有明確的分工,一層是完全的待客區域,夾層起居用餐,二層三層生活居住,四層休閑娛樂。
夾層區域只是一個獨立的休息空間,將餐廳搬到了夾層這里,飲食分離,干凈衛生。
二三層往上就是別墅的居住空間了,空間布局一致,無大小主次之分,六間臥室的設計保證三代人同住都不成問題。
圖紙之家-專注農村別墅/自建房設計18年,集合國內200余位經驗豐富的設計師,被評為口碑最好的農村建筑設計公司! |

占地百平三層歐式別墅設計圖,回到家鄉建一棟,大氣美觀有內涵
占地:99.94平方米
新款三層豪華大氣歐式別墅設計圖,3種戶型設計方案
占地:125平方米左右
110平左右二層小洋樓設計圖,含效果圖片
占地:108平方米
100平方米二層中式小別墅設計圖紙級效果圖片
占地:99平方米
農村平屋頂三層現代風別墅戶型圖,簡約實用經濟顏值高
占地:111.9平方米
歐式風格三層別墅建筑設計圖,復式樓中樓結構
占地:138平方米
農村兩間兩層樓房設計圖,造價15萬左右,獨立的廚房設計,干凈
占地:95平方米
175平方米二層別墅設計CAD圖紙及效果圖大全,中式風格
占地:175平方米
簡歐風格三層別墅設計圖,外觀看起來很高端、上檔次
占地:139平方米
45萬新中式二層雙拼自建房別墅設計圖,平屋頂設計
占地:210平方米
120平方米新農村四層別墅設計圖紙12X10米50萬以內
占地:120平方米
時尚典雅歐式三層自建房設計圖,美觀大氣簡單舒適,好看到沒得
占地:153.12平方米
簡約大氣四開間二層自建房設計圖,16x10米,經典耐看高顏值
占地:160平方米
一層中式七字型房屋設計圖,帶院子經典設計,耐看不過時
占地:163.18平方米
農村自建三層別墅設計圖,開間17米進深13米,外觀對稱設計
占地:187.6平方米
鄉村兄弟二層小戶型雙拼房屋別墅設計圖,造價低,面積小
占地:多種戶型
仿古別墅建筑設計圖,外觀效果圖+全套施工圖
占地:142平方米
農村自建房三間設計圖,花錢少效果好12米乘9米,經濟適用性價比
占地:108.9平方米
時尚耐看現代二層農村別墅設計圖,14米×11米,年輕人建房的不二
占地:138.125平方米
農村四間兩層樓房設計圖,含外觀圖片
占地:138平方米
推薦:10套新農村自建房設計圖,2026年最新設計
閱讀次數:4825737次
100套鄉村別墅圖片大全,2026年最新設計
閱讀次數:2492203次
6款農村蓋一層平房的設計圖,10萬元就能建起來
閱讀次數:1852637次
這11個一層農村自建房別墅火爆了朋友圈!我最喜歡戶型十!你呢
閱讀次數:750268次
農村6萬元建一層小別墅圖,你敢相信嗎
閱讀次數:567686次
農村5萬塊就能自建房,6套普通房子設計圖分享,你沒看錯!
閱讀次數:419410次
8套農村漂亮三間平房圖片,非常適合在農村修建!
閱讀次數:411197次
農村自建房化糞池怎么做?附方案及施工過程
閱讀次數:391783次
農村一層三間平房設計圖,告別土氣養老房,讓人忍不住點贊
閱讀次數:350581次
新農村二層樓房圖片造價12萬,挑一套回家建房吧!
閱讀次數:349126次
