
|
小時候,戲耍在農村各個角落,或田壟間、或竹林里、或池塘邊...無憂無慮的童年,00后幾乎很少會有這樣的童年,大多在補習班度過,安徽有對夫妻都是人民教師,他們的女兒也是00后,很是喜歡農村的生活。
教師有寒暑假,我們都知道,冷和熱的極端季節,在農村度假是最好的選擇,考慮到以后經常回農村老家,老房子也很舊了,于是決定翻新作為父母養老場所,將來自己退休了,也可以回去。 背面效果圖:
一層平面圖:
二層平面圖:
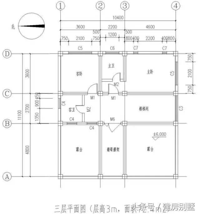
三層平面圖:
三層框架結構,總面積320.8平方米,井字條形基礎:
回填:
做化糞池底板鋼筋:
主體造價35萬左右+門窗(參照湖北前兩年物價):
廚房:
樓主有句話說的很對,建房和裝修都比較容易留下遺憾,所以在做之前要考慮好,盡量周全,幾十萬的東西做好農村別墅設計圖也不可能去重做。 圖紙之家-專注農村別墅/自建房設計18年,集合國內200余位經驗豐富的設計師,被評為口碑最好的農村建筑設計公司! |

帶配房的農村三層別墅設計圖,全家享精致生活
占地:167.29平方米
農村三間一層別墅設計圖,經濟實用還好看
占地:139.56平方米
農村兄弟倆雙拼別墅房屋設計圖,外觀質樸
占地:195平方米
小平米四層自建房屋設計圖紙,戶型簡單實用,占地80平方米
占地:80平方米
農村兩層新中式自建房屋設計圖,受歡迎的帶小配房戶型
占地:多戶型可選
經典中式三合院設計,一層空間實用大氣,輕松實現理想家園!
占地:160.53平方米
帶車庫新農村二層四間別墅設計效果圖帶全套建筑施工圖,217平方
占地:217.21平方米
適合小面寬宅基地的兩開間別墅設計圖,8.5米乘13.5米
占地:107.66平方米
面寬22米的高端三層自建房別墅設計圖,功能齊全
占地:222.47平方米
普通農村二層房子設計圖 ,復式結構,帶車庫,占地160平米左右
占地:160平方米
豪華別墅設計圖紙(含效果圖),三層歐式別墅方案精選
占地:117平方米
100-140平多戶型二層經典新農村小別墅設計建筑圖紙
占地:多種戶型
20萬左右普通農村房子設計圖,二層簡約小別墅
占地:140平方米
最漂亮的農村二層小樓設計圖紙,簡約又大氣時尚
占地:120平方米
農村四間兩層樓房設計圖,外觀時尚,戶型實用
占地:180平方米
簡潔大氣140平方三層房子設計圖,帶車庫戶型極佳
占地:140平方米
造價低經濟簡單的二層農村自建房圖紙設計,簡潔實用
占地:136.08平方米
田園風格別墅設計圖及外觀圖片,樓中樓結構
占地:140平方米
110平左右二層小洋樓設計圖,含效果圖片
占地:108平方米
農村三層樓房設計圖及效果圖,復式磚混結構
占地:148平方米
推薦:10套新農村自建房設計圖,2026年最新設計
閱讀次數:4825737次
100套鄉村別墅圖片大全,2026年最新設計
閱讀次數:2492203次
6款農村蓋一層平房的設計圖,10萬元就能建起來
閱讀次數:1852637次
這11個一層農村自建房別墅火爆了朋友圈!我最喜歡戶型十!你呢
閱讀次數:750268次
農村6萬元建一層小別墅圖,你敢相信嗎
閱讀次數:567686次
農村5萬塊就能自建房,6套普通房子設計圖分享,你沒看錯!
閱讀次數:419410次
8套農村漂亮三間平房圖片,非常適合在農村修建!
閱讀次數:411197次
農村自建房化糞池怎么做?附方案及施工過程
閱讀次數:391783次
農村一層三間平房設計圖,告別土氣養老房,讓人忍不住點贊
閱讀次數:350581次
新農村二層樓房圖片造價12萬,挑一套回家建房吧!
閱讀次數:349126次
