
|
年復一年,風吹雨打,家和陪伴是這個世界上最好的避風港,能抵擋世間一切不快,溫暖生命所有歲月。如今農村宅基地面積少,不知道該怎么設計才能使房子更舒服。今日小編為大業主帶來了一個“L”型二層小別墅,希望對現在的自建者有一些參考。 圖紙介紹:90平左右L型二層小別墅設計圖古典的灰黑色屋頂,白色和黃色的別墅外墻似乎是向人們訴說著關于這座別墅的故事,底部用多彩的文化磚來點綴,又給住宅增添一筆濃墨的色彩。二層的生活陽臺用玻璃欄桿來裝飾滿滿的簡約現代風同時也有安全保護的作用。內部布置非常實用,一層是動靜分離的,廚房和客廳相連,客廳位于西南角,由于四面開窗的原因采光十分充足,躺在沙發上看電視真是巴適的!二樓就是居住區域,三室都配有衣帽間和獨衛,可以滿足您日常生活的各種需要。 占地面積:11m*12.8m,91平方米左右;
正面效果圖
鳥瞰效果圖
側面效果圖 設計功能:
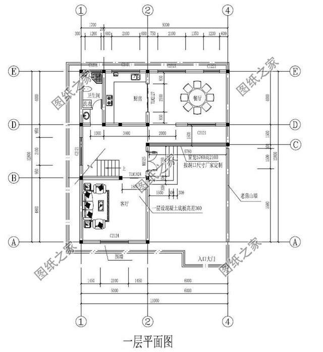
一層平面圖
二層平面圖 二層戶型:臥室(帶衛生間、衣帽間)x4 年年有風,風吹年年,一個房子 可以驚艷你的時光,溫暖你的心房,融化你的世界。以上就是今天小編帶給大家伙的全部內容了,希望能對那些農村自建房的小伙伴有所幫助 圖紙之家-專注農村別墅/自建房設計18年,集合國內200余位經驗豐富的設計師,被評為口碑最好的農村建筑設計公司! |

農村新款二層中式別墅設計圖效果圖,帶堂屋設計
占地:144平方米
小戶型二層農村別墅設計圖,占地140平經典漂亮
占地:139.54平方米
一層帶閣樓農村別墅設計圖,多得一層可變空間,太值了!
占地:165.89平方米
現代新中式四層復式別墅房屋設計圖,旋轉樓梯,含效果圖
占地:150平方米
開間9到10米簡約別墅設計圖紙帶效果圖,全套別墅設計方案
占地:122平方米
140平方米新農村四層房屋設計圖紙,農村自建推薦
占地:140平方米
帶車庫簡約二層小別墅房屋設計圖紙,占地120平米,彎彎的樓梯打
占地:120平方米
經典戶型二層農村小別墅設計圖,造價25萬內
占地:140平方米
20萬左右歐式二層小別墅設計圖,100平米和130兩個戶型
占地:多種戶型
新式帶挑空客廳三層鄉村別墅設計圖,占地170平左右
占地:170平方米
三層別墅40萬左右氣派的外觀效果圖,含全套施工設計圖
占地:161.46平方米
造價40萬內三層別墅房屋設計方案,設計圖+外觀效果圖
占地:150平方米
12×12米農村二層經濟型自建房設計圖,設計了6間臥室
占地:140平方米
造型新穎漂亮的農村二層現代風別墅設計圖,老少皆宜的外觀
占地:144.54平方米
125平方米新農村二層房屋施工設計CAD圖紙加效果圖
占地:125平方米
經典二層農村自建房屋別墅設計圖紙,占地110平米左右
占地:110平方米
80平方米二層房屋設計圖,造價10萬左右
占地:80平方米
占地90平米四層超現代風別墅設計圖,享受高品質生活
占地:3.76平方米
鄉村別墅現代風平屋頂四層自建房設計圖,簡約時尚
占地:144.7平方米
農村一層中式三合院別墅設計圖紙,外觀漂亮極了
占地:195平方米
推薦:10套新農村自建房設計圖,2026年最新設計
閱讀次數:4825737次
100套鄉村別墅圖片大全,2026年最新設計
閱讀次數:2492203次
6款農村蓋一層平房的設計圖,10萬元就能建起來
閱讀次數:1852637次
這11個一層農村自建房別墅火爆了朋友圈!我最喜歡戶型十!你呢
閱讀次數:750268次
農村6萬元建一層小別墅圖,你敢相信嗎
閱讀次數:567686次
農村5萬塊就能自建房,6套普通房子設計圖分享,你沒看錯!
閱讀次數:419410次
8套農村漂亮三間平房圖片,非常適合在農村修建!
閱讀次數:411197次
農村自建房化糞池怎么做?附方案及施工過程
閱讀次數:391783次
農村一層三間平房設計圖,告別土氣養老房,讓人忍不住點贊
閱讀次數:350581次
新農村二層樓房圖片造價12萬,挑一套回家建房吧!
閱讀次數:349126次
