
|
今天給大家介紹的這款三層別墅,帶有地下室,外觀設計極為時尚,擁有超大弧狀落地窗,還有大露臺,采用黃色為主色,搭配屋頂的一抹鮮紅,色彩對比強烈,給人的視覺印象深刻。屋頂的老虎窗頗具設計感,整體美觀大氣,漂亮耐看。
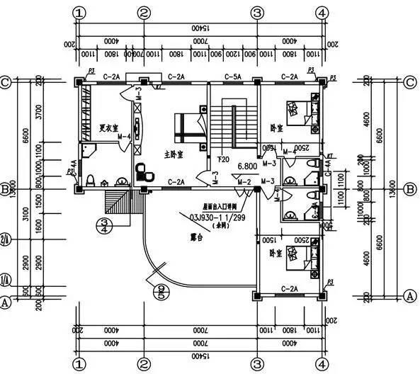
這套三層高檔別墅設計圖帶有地下室,開間進深15.4米×13.6米,首層占地面積246.97㎡,建筑面積682.4㎡,框架結構,主體造價大概65萬。地下層面積168㎡,一層面積178㎡,二層面積138㎡,三層面積128㎡。 地下層做倉庫儲物使用,一層設有2廳2臥2衛1廚,二層設有2臥3衛1露臺1卡拉OK室,三層設有3臥3衛1露臺。 建筑平面圖展示
地下層:倉庫
一層:挑空客廳、廚房、餐廳、臥室×(衛生間)、臥室、衛生間
二層:卡拉OK室、2臥室(帶衛生間)、衛生間、露臺
三層:主臥室(帶更衣室、衛生間)、2臥室(帶衛生間)、大露臺 圖紙之家-專注農村別墅/自建房設計18年,集合國內200余位經驗豐富的設計師,被評為口碑最好的農村建筑設計公司! |

100平二層精致小別墅房屋設計圖,外觀精致、漂亮
占地:100平方米
100平復式三層別墅房屋設計圖,客廳挑高,采光好,臥室多
占地:100平方米
最新三層農村別墅設計圖紙,推薦農村自建
占地:106平方米
12x10米農村建房圖紙,客廳中空,讓你后半輩子在稱贊聲中度過
占地:120平方米
農村二層帶車庫四合院別墅設計圖,新中式外觀圖片,戶型實用方
占地:247平方米
農村一層平房別墅設計圖,18米乘9米,實實在在的好戶型
占地:162平方米
高端三層豪宅別墅設計方案圖,帶地下室,過悠然愜意生活
占地:127.06平方米
帶車庫四層別墅外觀效果圖及設計圖紙,戶型方正通透
占地:115平方米
經典小戶型二層新農村房屋設計圖紙,客廳中空,造價20萬
占地:94平方米
農村60萬別墅款式設計圖及外觀效果圖,客廳中空
占地:150平方米
帶車庫,帶露臺的三層復式樓房設計圖,新農村房屋方案推薦
占地:140平方米
一層四合院別墅,中式庭院寬綽大氣,這樣的合院養老最合適
占地:396平方米
鄉村兄弟二層小戶型雙拼房屋別墅設計圖,造價低,面積小
占地:多種戶型
帶堂屋二層小別墅設計圖紙帶外觀圖,13.6米x9米
占地:122.4平方米
120平米簡單實用型農村小別墅設計圖,二層屋頂為全露臺,小開間
占地:120平方米
150平方米自建現代二層別墅施工設計圖帶外觀圖,15x10米
占地:多戶型可選
三層新農村住宅設計圖及效果圖,三層樓房設計圖展示
占地:140平方米
經濟、不張揚!簡單二層別墅設計圖,農村建房直接抄作業
占地:198.58平方米
一層自建別墅設計圖,占地70平不大功能很齊全,非常適合農村養
占地:69.61平方米
新古典中式風格別墅設計圖,全套施工圖+效果圖
占地:188平方米
推薦:10套新農村自建房設計圖,2026年最新設計
閱讀次數:4825737次
100套鄉村別墅圖片大全,2026年最新設計
閱讀次數:2492203次
6款農村蓋一層平房的設計圖,10萬元就能建起來
閱讀次數:1852637次
這11個一層農村自建房別墅火爆了朋友圈!我最喜歡戶型十!你呢
閱讀次數:750268次
農村6萬元建一層小別墅圖,你敢相信嗎
閱讀次數:567686次
農村5萬塊就能自建房,6套普通房子設計圖分享,你沒看錯!
閱讀次數:419410次
8套農村漂亮三間平房圖片,非常適合在農村修建!
閱讀次數:411197次
農村自建房化糞池怎么做?附方案及施工過程
閱讀次數:391783次
農村一層三間平房設計圖,告別土氣養老房,讓人忍不住點贊
閱讀次數:350581次
新農村二層樓房圖片造價12萬,挑一套回家建房吧!
閱讀次數:349126次
