
|
如今很多農村人在外面闖蕩賺了錢都會選擇回農村老家建房,現在在農村起一棟洋樓別墅真算不上什么新鮮事兒了。為什么大家都這么選擇?其實原因也很簡單,城市再大再好總是沒有歸屬感,只有這生咱養咱的才是家鄉! 不過自建房也不是那么簡單的事,先要申請宅基地,確認建房圖紙,還有找施工隊,建房的過程也不能松懈。畢竟房屋安全可是大事,材料、施工都得自己來把關。
今天這套來自廣東農村的曬房,大家看看建得怎么樣? 別墅外觀十分精致,各種歐式構件裝飾非常有層次感。多邊落地窗彰顯氣派,外墻文化石與瓷磚的搭配恰到好處,顏色多而不雜,傳達出一家人富足且蒸蒸日上的生活狀態。
雖然有個寬敞的大院子,但新農村還是少不了車庫的設計,平時沒有車停放,也能作儲藏室使用,方便又實用!
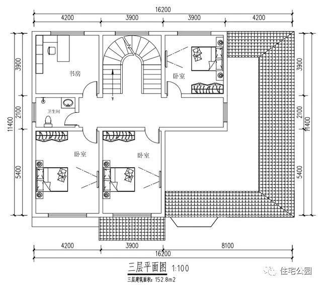
室內布局簡單設置,充分利用室內面積,功能劃分明顯,一層起居,二三層休憩。
挑空客廳增加了居室的闊度,非常大氣,設有茶室也方便待客。二胎政策開放,設計2間書房,十分貼心。
3層樓7間臥室,滿足三到四代人的居住需求。
不得不說,在農村能有棟這樣的房子還是十分不錯的。粗略一算,3層別墅500多平的建筑面積,毛坯花了45萬,后續的門窗、裝修花了40萬左右。 如果是你,愿意花這么多錢在老家蓋房嗎? 圖紙之家-專注農村別墅/自建房設計18年,集合國內200余位經驗豐富的設計師,被評為口碑最好的農村建筑設計公司! |

面寬14米農村別墅二層別墅戶型設計,經濟實用
占地:107.1平方米
豪華大氣三層農村自建房設計圖,經典大氣,百看不厭,新中式風
占地:141.75平方米
豪華新中式兩層半農村別墅設計圖,繁華之外,心之所向
占地:290.4平方米
客廳中空的三層豪華小別墅設計圖,時尚靚麗,鄉下建一棟有面子
占地:171.25平方米
新農村二層歐式別墅設計圖,外觀漂亮,主體18萬起建
占地:115.2平方米
復式三層別墅設計圖片及全套圖紙,客廳中空,外觀為歐式建筑的
占地:175平方米
歐式大氣新農村三層別墅豪宅設計圖,外觀高端,對稱設計
占地:225平方米左右
豪華高端三層帶地下室別墅設計圖,可帶電梯
占地:210平方米
歐式三層豪宅樓設計圖紙及外觀效果圖,占地180平左右
占地:177.82平方米
面寬13米簡簡單單一層農村自建別墅設計圖,方正大氣經濟宜居
占地:126.1平方米
帶車庫鄉下雙拼別墅設計圖,三層造型漂亮大全
占地:256平方米
35萬左右的農村小別墅設計圖及效果圖,新中式風格
占地:137平方米
130平米帶小院一層自建房屋設計圖,省錢實用,養老房首選
占地:130平方米左右
帶地下室KTV三層農村自建別墅設計圖,12米乘12.5米
占地:131.7平方米
120平方兩層房子設計圖及圖片,外觀大方好看,內部結構合理
占地:120平方米
農村15萬元二層小樓設計圖,15萬農村兩層小別墅圖片
占地:120平方米
230平方米新農村二層自建別墅設計圖紙帶外觀圖,20X11米
占地:227平方米
造價低經濟簡單的二層農村自建房圖紙設計,簡潔實用
占地:136.08平方米
150平米左右農村二層房屋設計圖,造價25萬左右漂亮實用
占地:150平方米
歐式小別墅設計圖紙帶效果圖,二層歐式小別墅設計方案展示
占地:166平方米
推薦:10套新農村自建房設計圖,2026年最新設計
閱讀次數:4825737次
100套鄉村別墅圖片大全,2026年最新設計
閱讀次數:2492203次
6款農村蓋一層平房的設計圖,10萬元就能建起來
閱讀次數:1852637次
這11個一層農村自建房別墅火爆了朋友圈!我最喜歡戶型十!你呢
閱讀次數:750268次
農村6萬元建一層小別墅圖,你敢相信嗎
閱讀次數:567686次
農村5萬塊就能自建房,6套普通房子設計圖分享,你沒看錯!
閱讀次數:419410次
8套農村漂亮三間平房圖片,非常適合在農村修建!
閱讀次數:411197次
農村自建房化糞池怎么做?附方案及施工過程
閱讀次數:391783次
農村一層三間平房設計圖,告別土氣養老房,讓人忍不住點贊
閱讀次數:350581次
新農村二層樓房圖片造價12萬,挑一套回家建房吧!
閱讀次數:349126次
