
|
現在小別墅這么火,看慣了羅馬柱,看慣了歐式造型,看慣了中式經典,今天來點不一樣的,潮流造型,適合年輕人。 第一套: 占地面積:21.5×19.9㎡ 現在新穎造型,科技感、立體感十足。整個設計理念為現代生活,科技環繞,享受生活,這樣的別墅為潮流前線年輕朋友專門打造。設娛樂間、魚池、健身房、工作室等多功能空間。蓋這樣的別墅,享受你的不一樣。
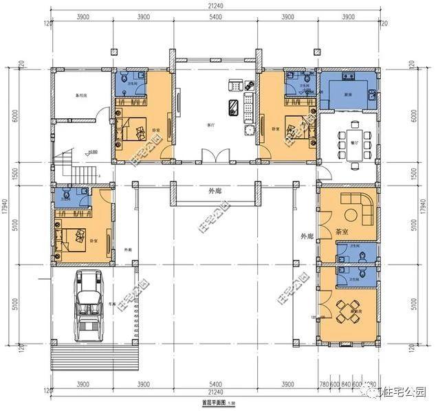
第二套: 占地面積:21.2×17.9㎡ 這套戶型不一樣的是在于它的“雙頭”式設計,這樣的設計活動空間非常大,二層露臺涼亭設計,一層院子都是很好的活動場所。 霸氣式“雙頭”設計,我們不一樣。
第三套: 占地面積:15.2×8.8㎡ 現代雙拼式新穎小別墅,玲瓏小巧,造型獨特,整體風格偏現代。單戶設客廳、餐廳、廚房、茶室、3臥室+2衛, 布局巧妙。獨特的造型雙拼,我們不一樣。
第四套: 占地面積:19.3×13.5㎡ 透明式落地窗,推拉門式設計,特別的明朗,小小的造型里面卻大大的不一樣,大餐廳、廚房+鍋爐房、挑空客廳、棋牌室、臺球室、7臥室、4衛生間。開放美學設計留給開放的年輕朋友,我們不一樣。
第五套: 占地面積:14.5×14㎡ 黃色大百葉窗,豎向線條裝飾,大露臺造型,獨特的設計造成了獨特的美感。大客廳和大起居書的設計對平日生活非常享受。有心的設計留給有心的人,我們不一樣。
第六套: 占地面積:16×16㎡ 四個獨立的部分卻組成了一個完整的家,一層廚房餐廳一體化、客廳、臥室、二層設共享露臺,小小的設計,同樣的配置,我們卻不一樣。
不一樣的設計喜歡嗎?你們的關注就是我們的動力,喜歡點個贊吧 圖紙之家-專注農村別墅/自建房設計18年,集合國內200余位經驗豐富的設計師,被評為口碑最好的農村建筑設計公司! |

復式、旋轉樓梯三層別墅設計方案圖,戶型合理、實用
占地:138平方米
20萬以內二層歐式小別墅設計方案,全套施工圖+效果圖
占地:115平方米
?13.5x9米這尺寸火了!好多人家照著建這款二層別墅,簡單實用
占地:115.11平方米
帶車庫簡約二層小別墅房屋設計圖紙,占地120平米,彎彎的樓梯打
占地:120平方米
100平客廳挑高三層樓房設計圖,復式結構
占地:100平方米
經典實用的新農村三層房屋設計圖紙,推薦自建使用
占地:165平方米
新農村自建房設計圖及效果圖大全,新農村住宅精選
占地:112平方米
歐式兩層別墅樓房設計圖紙施工方案,高端豪華外觀圖片
占地:138平方米
時尚現代的二層農村別墅設計圖,年輕人建房的不二之選
占地:131.76平方米
農村二層半兄弟共建房別墅設計圖,復式戶型帶車庫,面寬24米
占地:312平方米左右
左右對稱的歐式高端三層別墅設計圖,外觀氣派、豪華
占地:200平方米
農村蓋平房設計大全圖,鄉下建房一層戶型圖及效果圖
占地:160平方米
中式古風別墅設計圖,一層三合院設計,經濟舒適,時尚與傳統的
占地:275.7平方米
面寬18米二層新中式別墅圖紙設計,復式戶型,帶堂屋
占地:269.83平方米
2026最受歡迎的三層農村小別墅設計圖紙,占地155平方米
占地:155平方米
大氣新中式三層雙拼別墅設計圖及外觀,總面寬20米多
占地:205.76平方米
100平方建房子設計圖及效果圖,簡單實用的戶型設計
占地:97.3平方米
農村帶閣樓一層房屋設計施工圖,13X9米
占地:102平方米
兩層半樓房設計圖及效果圖,農村二層房屋設計圖推薦
占地:135平方米
二層歐式農村小別墅設計圖,9.5米乘13米,戶型好到鄰居求圖紙
占地:118.32平方米
推薦:10套新農村自建房設計圖,2026年最新設計
閱讀次數:4825737次
100套鄉村別墅圖片大全,2026年最新設計
閱讀次數:2492203次
6款農村蓋一層平房的設計圖,10萬元就能建起來
閱讀次數:1852637次
這11個一層農村自建房別墅火爆了朋友圈!我最喜歡戶型十!你呢
閱讀次數:750268次
農村6萬元建一層小別墅圖,你敢相信嗎
閱讀次數:567686次
農村5萬塊就能自建房,6套普通房子設計圖分享,你沒看錯!
閱讀次數:419410次
8套農村漂亮三間平房圖片,非常適合在農村修建!
閱讀次數:411197次
農村自建房化糞池怎么做?附方案及施工過程
閱讀次數:391783次
農村一層三間平房設計圖,告別土氣養老房,讓人忍不住點贊
閱讀次數:350581次
新農村二層樓房圖片造價12萬,挑一套回家建房吧!
閱讀次數:349126次
