
|
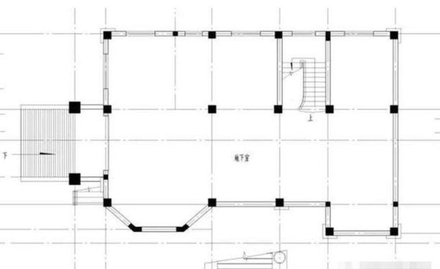
農村自建房追求的就是實用,在有錢有地的情況下巴不得蓋的空間越多越好,無奈農村蓋房都開始限高,于是很多農村朋友考慮,是不是建造個地下室,來增加建筑面積呢?做儲藏雜物,當酒窖,當然現在更多的家庭拿它來做娛樂室、健身房、家庭放映廳等等,這才是新時代豪宅的標配。本期,我們就推薦一套帶地下室的二層自建別墅,外觀豪華,設計精美,50萬建成毛坯,看了的都說值。 外觀效果圖:
設計豪華的實用級農村別墅,光看效果圖就能看出來不一般,典型的豪華歐式風格,多多益善的羅馬柱,精美的墻面雕花,各處細節的設計都非常的美觀,外墻裝飾用干掛大理石,一切看起來都是那么的豪華。 立面示意圖: 建筑設計尺寸:開間15米,進深10.3米,建筑占地不大,但是美觀性和實用性都是超一流的。
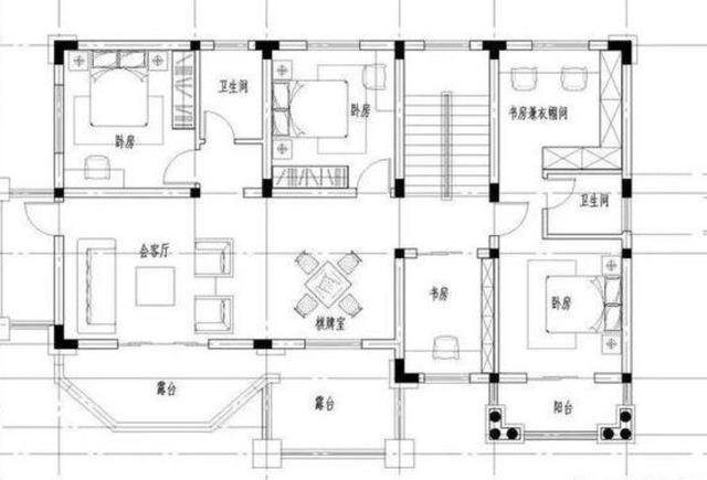
從立面效果也能看出建筑的豪華之處,雙入戶設計,西側設計地下車庫,窗型設計精致委婉。 平面布局圖:
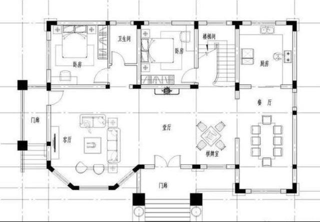
設計功能:地下室預留車庫,其余空間自定,可根據自家的實際情況和需求進行設計,非常方便;建筑正門入戶設計堂屋和神位,左側設計客廳,右側緊鄰棋牌室,建筑最東側設計廚房和豪華餐廳,陰面設計兩間臥室和樓梯間,客廳開偏門,方便出入車庫;二層設計有帶弧形陽臺的會客廳,嗲頭露臺的棋牌室,設計有三間臥室,其中一間是帶書房或衣帽間、露臺和衛生間的大套房,另有獨立書房和衛生間。 案例實拍:
現在別墅主體已經建成,而且還在原設計的基礎上,最東側還另行則更加了一間房,建筑背山建造,現在花費已經到50萬,預估加上外墻和內部裝飾可能會到100萬,還是挺值的。 圖紙之家-專注農村別墅/自建房設計18年,集合國內200余位經驗豐富的設計師,被評為口碑最好的農村建筑設計公司! |

復式三層雙拼別墅設計圖,客廳中空,旋轉樓梯
占地:350平方米
經濟小戶型二層中式四合院(三合院)設計圖紙,帶堂屋和庭院
占地:143.544平方米
鄉村三層別墅CAD建筑設計圖,110平方米戶型,帶效果圖和全套施工
占地:110平方米
一層雙拼別墅獨立入戶+共用墻,兄弟合建,施工隊直呼太省料
占地:269.43平方米
鄉村房屋改建三層房屋設計圖紙,農村樓房設計圖推薦
占地:90平方米
歐式大戶型三層農村房屋設計圖紙,歐式住宅圖推薦
占地:178平方米
2026二層農村新款別墅新式二層樓房設計圖,非常時尚
占地:多種戶型
110平方米農村三層復式房屋施工圖,通透時尚,低調又奢華
占地:107.98平方米
160平方米二層小別墅設計圖紙及效果圖大全,12X13米
占地:162平方米
兩層半20多萬復式農村自建房設計圖,經典不過時戶型
占地:120平方米
面寬10米高品質二層別墅設計方案,造價不高顏值很高,非常適合
占地:137.63平方米
面寬16米三層法式別墅設計圖,設計新穎別致,建成后美不勝收
占地:162.07平方米
復式大客廳帶旋轉樓梯二層別墅設計圖,大廳很闊氣
占地:193平方米左右
12.8x10米二層自建房別墅設計圖,大氣美觀實用,建造無憂
占地:128平方米
新農村二層房屋設計圖紙(全套建筑施工圖紙+外觀效果圖)
占地:85平方米
農村15萬元二層小樓圖,經濟實用小別墅設計圖
占地:105平方米
小面寬農村兩開間二層小別墅,簡單實用雖小但不擁擠
占地:118.56平方米
美爆的三層經典復式別墅設計圖紙及效果圖,建好更漂亮
占地:130平方米左右
造價15萬經濟美觀一層農村別墅設計圖,占地150平米
占地:多戶型可選
推薦:10套新農村自建房設計圖,2026年最新設計
閱讀次數:4825737次
100套鄉村別墅圖片大全,2026年最新設計
閱讀次數:2492203次
6款農村蓋一層平房的設計圖,10萬元就能建起來
閱讀次數:1852637次
這11個一層農村自建房別墅火爆了朋友圈!我最喜歡戶型十!你呢
閱讀次數:750268次
農村6萬元建一層小別墅圖,你敢相信嗎
閱讀次數:567686次
農村5萬塊就能自建房,6套普通房子設計圖分享,你沒看錯!
閱讀次數:419410次
8套農村漂亮三間平房圖片,非常適合在農村修建!
閱讀次數:411197次
農村自建房化糞池怎么做?附方案及施工過程
閱讀次數:391783次
農村一層三間平房設計圖,告別土氣養老房,讓人忍不住點贊
閱讀次數:350581次
新農村二層樓房圖片造價12萬,挑一套回家建房吧!
閱讀次數:349126次
