
|
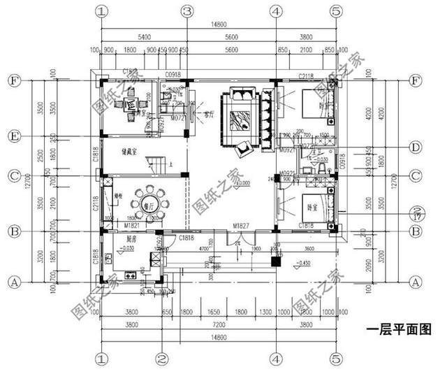
不得不說現在部分農村地區發展得真不錯,交通的開通,經濟也在快速發展。如果現在誰手里有塊宅地基,選擇返鄉建房絕對是一個明智的選擇。常年的在外漂泊打拼也不是個事,我們始終要落葉歸根,爸媽也是時常的掛念,回到老家建上一棟小別墅,住著安心又舒適,逃離城市的喧囂涌入鄉間的懷抱。 別墅圖一展示:占地面積:14.8m*12.7m,158.3平方米左右;
正面效果圖
鳥瞰效果圖
背面效果圖
一層戶型圖
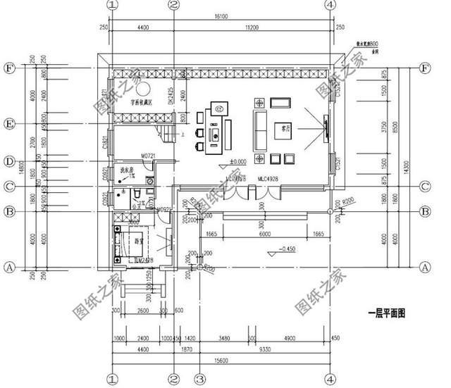
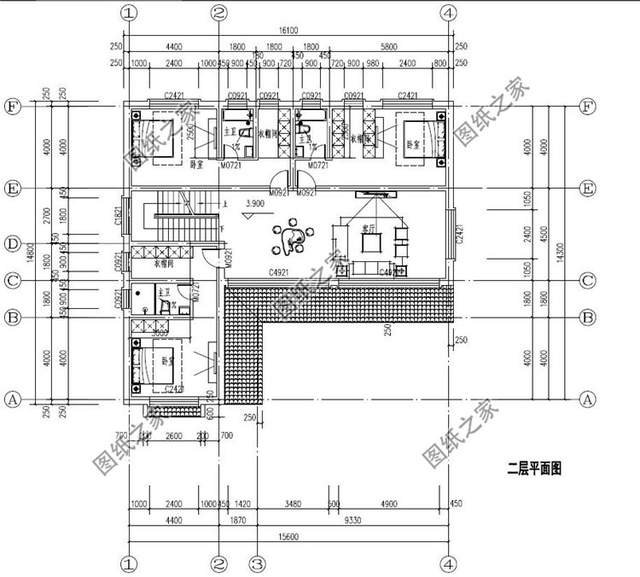
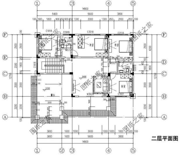
二層戶型圖 二層戶型:客廳、臥室(帶衛生間)、臥室x3、衛生間、露臺; 別墅圖二展示:占地面積:16.1m*14.8m,173.32平方米左右;
正面效果圖
背面效果圖
鳥瞰效果圖
一層戶型圖
二層戶型圖 二層戶型:客廳、臥室(帶衣帽間、衛生間)x3、 別墅圖三展示:占地面積:12m*10m,110.54平方米左右; 建筑層高:一層; 建筑高度:7.364米(含屋頂);
別墅效果圖 設計功能:
一層戶型圖 一層戶型:玄關、客廳、廚房、餐廳、臥室(帶衛生間)、臥室、衛生間;
二層戶型圖 閣樓戶型:活動廳、臥室x3、衛生間; 別墅圖四展示:占地面積:20.7m*10.8m,200平方米; 建筑層高:二層; 建筑高度:10.2米(含屋頂);
正面效果圖
背面效果圖
鳥瞰效果圖 設計功能:
一層戶型圖 一層戶型:土炕,主臥(主衛),臥室,公衛,廚房,餐廳,客廳,鍋爐房;
二層戶型圖 二層戶型:臥室X4,公衛,主臥(主衛),露臺,陽臺,客廳,客廳上空 圖紙之家-專注農村別墅/自建房設計18年,集合國內200余位經驗豐富的設計師,被評為口碑最好的農村建筑設計公司! |

實用農村三層房屋設計圖紙,效果圖+全套施工圖
占地:113平方米
新農村140平米樓房圖四層獨棟別墅設計圖,簡歐外觀風格設計
占地:141平方米
200平米左右二層樓房設計圖,外觀看著舒服、布局住著坦然
占地:190平方米
一層中式仿古三合院設計圖,實用又大氣,百年不過時
占地:366.67平方米
歐式復式型三層別墅施工設計圖紙及效果圖大全
占地:164平方米
140平米平屋頂二層新農村自建房設計圖,極簡主義設計 ,實用優
占地:143平方米
超好看的現代簡約別墅設計圖,占地100平米,城里一套房都不換
占地:102.21平方米
鄉村二層別墅設計圖,含外觀效果圖,設計師推薦
占地:140平方米
新款農村三層雙拼聯體別墅戶型圖,客廳中空,單戶120平米左右
占地:240平方米
農村二層別墅設計圖,帶外觀效果圖,兄弟自建推薦
占地:多種戶型
戶型好的三層帶獨立車庫的樓房設計圖,含外觀效果圖
占地:148平方米
豪華別墅設計圖紙(含效果圖),三層歐式別墅方案精選
占地:117平方米
三層農村自建別墅設計圖紙及效果圖,占地110平米,外觀精致又大
占地:110平方米
農村兄弟合建一層雙拼房別墅圖,對稱設計,工整大方!
占地:170平方米
165平方米三層雙拼農村房屋設計圖大全14x12
占地:168平方米
兄弟倆二層雙拼別墅設計圖紙,一層共用,設計新穎
占地:180平方米
90平農村自建房二層新款,占地不大但很實用,
占地:88平方米
全新農村簡歐風格三層房屋別墅效果圖,110和210兩個戶型,帶電梯
占地:多種戶型
新農村二層小別墅全套設計圖紙(含外觀效果圖)
占地:85.6平方米
帶大套間新農村二層別墅自建房設計圖紙帶效果圖
占地:185平方米
推薦:10套新農村自建房設計圖,2026年最新設計
閱讀次數:4825737次
100套鄉村別墅圖片大全,2026年最新設計
閱讀次數:2492203次
6款農村蓋一層平房的設計圖,10萬元就能建起來
閱讀次數:1852637次
這11個一層農村自建房別墅火爆了朋友圈!我最喜歡戶型十!你呢
閱讀次數:750268次
農村6萬元建一層小別墅圖,你敢相信嗎
閱讀次數:567686次
農村5萬塊就能自建房,6套普通房子設計圖分享,你沒看錯!
閱讀次數:419410次
8套農村漂亮三間平房圖片,非常適合在農村修建!
閱讀次數:411197次
農村自建房化糞池怎么做?附方案及施工過程
閱讀次數:391783次
農村一層三間平房設計圖,告別土氣養老房,讓人忍不住點贊
閱讀次數:350581次
新農村二層樓房圖片造價12萬,挑一套回家建房吧!
閱讀次數:349126次
