
|
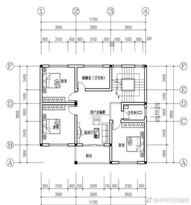
購買商品房我們需要考慮的因素有地段、價位、戶型、樓層等,農村自建房相較于商品房優勢多多,需要考慮的因素同樣也是很多的,從最初的選址設計到內部的布局設計,再到整體的裝飾,甚至還要結合當地的生活習慣和風俗,哪一個環節考慮不周,都會給日后的生活留下隱患,就比如說我們傳統的認識方面,門的方位、廁所及廚房的方位,還有結構上,農村的施工隊能不能勝任,畢竟請專業施工隊的家庭還不多吧。 本期,我們就推薦幾款符合農村要求的小戶型設計,結構簡單,布局合理,關鍵是造價低廉,每一款都能在25萬內搞定; 第一套:
設計功能:一層設計有堂屋、客廳、一間臥室、廚房、餐廳和儲藏室,二層設計有起居室、三間臥室,預留儲藏室位置,也可將儲藏室改成衛生間,將預先設定的衛生間和緊鄰的臥室組合成套房;
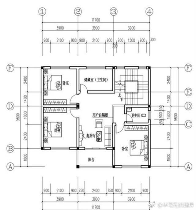
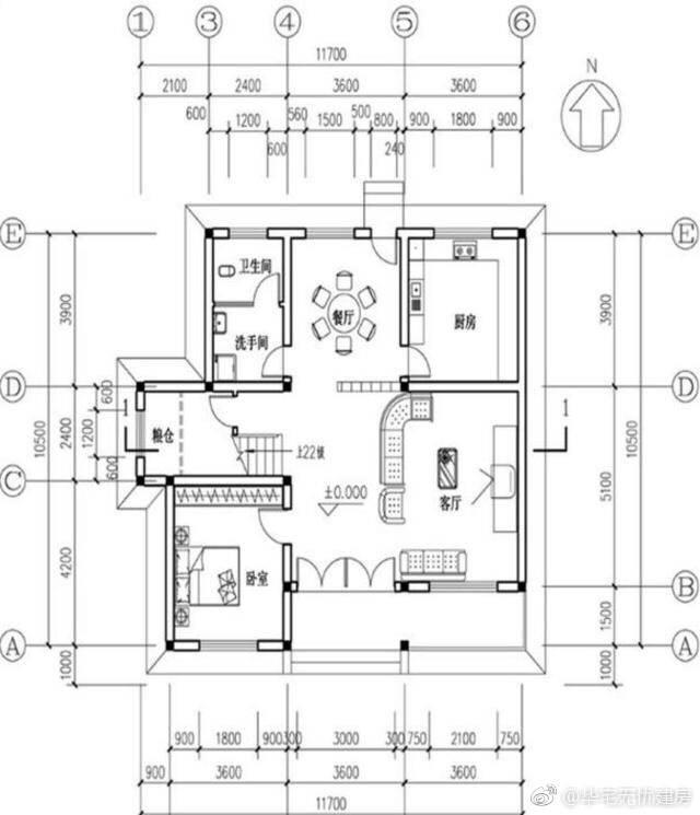
第二套:
戶型設計尺寸:開間11.7米,進深10.5米,建筑占地面積120平米,總建筑面積218平米; 設計功能:一層設計有玄關、客廳、一間臥室、廚房、餐廳、公共衛生間和儲藏室,餐廳開始后門;二層設計有起居室、三間臥室、公共衛生間和活外活動平臺;
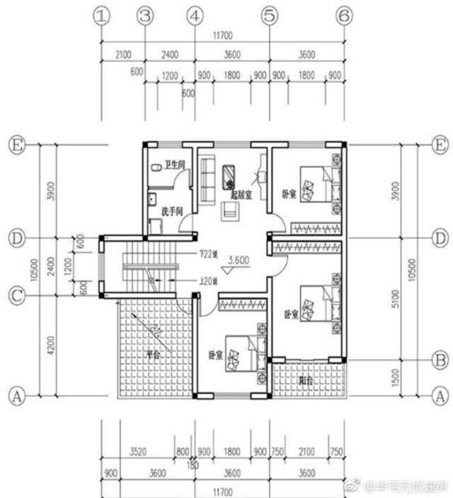
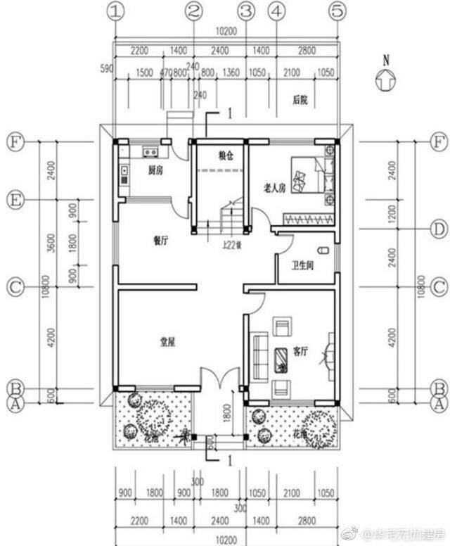
第三套:
難得的方正戶型,設計尺寸你:開間10.2米,進深10.8米,戶型占地面積119平米,總建筑面積228平米; 設計功能:一層設計有堂屋、封閉式客廳、廚房、餐廳、一間臥室、公共衛生間和儲藏室;二層設計有一間起居室、三間臥室、和公共衛生間;
三套戶型,三種外觀,但是外形裝飾及其相似,占地面積都在120平米左右,基本預算不會超過25萬,內部布局大同小異,同樣都是四間臥室,就看你怎么選。 圖紙之家-專注農村別墅/自建房設計18年,集合國內200余位經驗豐富的設計師,被評為口碑最好的農村建筑設計公司! |

歐式二層農村別墅設計圖,140平方米戶型方正的好方案
占地:142.51平方米
12米乘9米占地百平一層平房戶型設計圖,布局寬敞大氣又舒適
占地:108平方米
260平方米兩層帶車庫四合院房屋設計圖紙及效果圖
占地:260平方米
兩層中式三合院別墅設計圖紙,堂屋套臥全都有,蓋一棟面子十足
占地:181.93平方米
一層中式仿古三合院設計圖,實用又大氣,百年不過時
占地:366.67平方米
農村60萬別墅款式設計圖及外觀效果圖,客廳中空
占地:150平方米
歐式小型二層別墅效果圖片,帶全套Cad別墅設計圖紙
占地:120平方米
200平農村二層別墅設計圖,外觀現代簡約
占地:204平方米
110平農村二層房屋設計圖,戶型特別接地氣,造價經濟還實用
占地:110.05平方米
好看精致的三層自建房別墅設計圖,開間12米進深12米左右
占地:125.73平方米
簡單農村二層自建房子設計圖,主體18萬就能建好,太心動了!
占地:124.53
新式帶挑空客廳三層鄉村別墅設計圖,占地170平左右
占地:170平方米
大戶型高端三層別墅設計圖紙,外觀效果圖+CAD建筑圖
占地:227平方米
占地90平米四層超現代風別墅設計圖,享受高品質生活
占地:3.76平方米
農村養老房還是一層好,帶閣樓的一層房子設計圖
占地:135平方米
簡單實用的二層雙拼別墅設計圖,總占地150平米左右,雙拼房屋
占地:150平方米MB
精致簡歐一層別墅設計圖,經典大氣百看不厭
占地:139.57平方米
100平方米二層中式小別墅設計圖紙級效果圖片
占地:99平方米
簡約而不簡單的二層新中式鄉墅設計圖,占地150平左右
占地:150.78平方米
3款簡單舒適二層別墅設計圖,低調配色,造型簡單大氣
占地:多戶型可選
推薦:10套新農村自建房設計圖,2026年最新設計
閱讀次數:4825737次
100套鄉村別墅圖片大全,2026年最新設計
閱讀次數:2492203次
6款農村蓋一層平房的設計圖,10萬元就能建起來
閱讀次數:1852637次
這11個一層農村自建房別墅火爆了朋友圈!我最喜歡戶型十!你呢
閱讀次數:750268次
農村6萬元建一層小別墅圖,你敢相信嗎
閱讀次數:567686次
農村5萬塊就能自建房,6套普通房子設計圖分享,你沒看錯!
閱讀次數:419410次
8套農村漂亮三間平房圖片,非常適合在農村修建!
閱讀次數:411197次
農村自建房化糞池怎么做?附方案及施工過程
閱讀次數:391783次
農村一層三間平房設計圖,告別土氣養老房,讓人忍不住點贊
閱讀次數:350581次
新農村二層樓房圖片造價12萬,挑一套回家建房吧!
閱讀次數:349126次
