
|
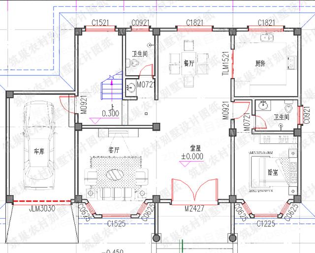
農村自建房建成效果圖展示:30萬三層3廳9室6衛帶堂屋套間 層數: 三層 結構形式: 磚混結構 主體造價:27-32萬;開間:15.3米 進深:9米(含門柱進深11.2米) 占地面積: 134.66平方米 建筑面積:357平方米 原設計效果圖展示
建成效果圖展示
功能設計
一 層: 堂屋、客廳、餐廳、廚房、臥室(帶衛生間)、衛生間、車庫
二 層: 客廳(帶陽臺)、臥室(帶衛生間)、臥室×3、衛生間、露臺 三 層: 客廳(帶陽臺)、臥室(帶衛生間)、臥室×3、衛生間、露臺 圖紙之家-專注農村別墅/自建房設計18年,集合國內200余位經驗豐富的設計師,被評為口碑最好的農村建筑設計公司! |

四開間一層自建房設計圖,四臥二廳+棋牌室+書房
占地:181.29平方米
2026帶車庫三層雙拼別墅房屋設計圖,配色淡雅低調
占地:224平方米
160平方米三層帶大露臺的復式別墅設計圖紙
占地:155平方米
200平米左右二層樓房設計圖,外觀看著舒服、布局住著坦然
占地:190平方米
農村二層半兄弟共建房別墅設計圖,復式戶型帶車庫,面寬24米
占地:312平方米左右
帶地下室的農村三層雙拼別墅設計圖,復式戶型,面寬23米
占地:261.6平方米左右
大開間小進深的一層別墅設計圖,進深僅8.7米,獨立餐廚照樣美觀
占地:130.32平方米
10×12米三層別墅戶型,挑空大客廳設計,圈粉無數的爆款方案
占地:120平方米
150平米簡單大方的三層農村自建房設計圖,坡層頂,色彩鮮明,布
占地:150平方米
140平中式徽派一層別墅設計圖,一層照樣建這樣漂亮
占地:140平方米
新中式一層別墅設計圖紙,農村自建平房戶型方案圖
占地:183.7平方
時尚現代的二層農村別墅設計圖,年輕人建房的不二之選
占地:131.76平方米
帶商鋪挑高的三層別墅房屋設計圖,商鋪挑高,層高比較高
占地:118平方米
14x12.5米二層農村別墅設計圖,布局完美獨立,顏值高又實用
占地:153.95平方米
130平方米別墅設計圖紙(含外觀效果圖,)三層別墅設計方案
占地:135平方米
農村一層獨棟別墅設計圖,帶閣樓,設計感十足
占地:250平方米
帶KTV的四開間的二層別墅設計圖,造型美觀經濟實用
占地:240.22平方米
高顏值又實用的一層雙拼鄉村別墅設計圖,舒適度堪比豪宅
占地:217.3平方米
農村七字型一層別墅圖,獨立廚房設計,鄉村建房優選戶型
占地:159.76平方米
200平方米穩重大氣三層雙拼別墅建筑設計圖紙,含效果圖19.04米
占地:200平方米
推薦:10套新農村自建房設計圖,2026年最新設計
閱讀次數:4825737次
100套鄉村別墅圖片大全,2026年最新設計
閱讀次數:2492203次
6款農村蓋一層平房的設計圖,10萬元就能建起來
閱讀次數:1852637次
這11個一層農村自建房別墅火爆了朋友圈!我最喜歡戶型十!你呢
閱讀次數:750268次
農村6萬元建一層小別墅圖,你敢相信嗎
閱讀次數:567686次
農村5萬塊就能自建房,6套普通房子設計圖分享,你沒看錯!
閱讀次數:419410次
8套農村漂亮三間平房圖片,非常適合在農村修建!
閱讀次數:411197次
農村自建房化糞池怎么做?附方案及施工過程
閱讀次數:391783次
農村一層三間平房設計圖,告別土氣養老房,讓人忍不住點贊
閱讀次數:350581次
新農村二層樓房圖片造價12萬,挑一套回家建房吧!
閱讀次數:349126次
