
|
40萬16×12米2廳5臥二層私家別墅,地下室車庫+酒窖+休閑廳+套房 這款私家別墅有地上二層,還有地下室,地下室有車庫、酒窖,儲藏間等功能,一二層功能布局緊湊,功能多樣,臥室套房,雙露臺,外觀設計漂亮大氣,一層采用文化石裝飾,藍色坡屋頂協調美觀,共設有2廳5臥,主體造價40萬。
戶型簡介 層數:二層(不含地下室) 開間:15.8米 進深:11.8米 首層占地面積:153.6㎡ 總建筑面積:398.31㎡ 結構形式:框架結構 主體造價:40萬 室內布局
地下室平面圖 地下室:車庫、酒窖、儲藏間
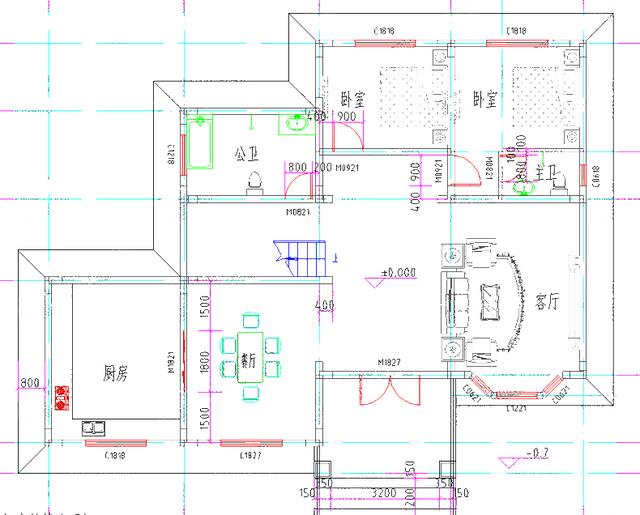
一層平面圖 一層:客廳、廚房、餐廳、臥室(帶主衛)、臥室、公衛
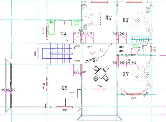
二層平面圖 二層:休閑廳(帶露臺)、書房(帶露臺)、臥室(帶主衛)、臥室×2、公衛 圖紙之家-專注農村別墅/自建房設計18年,集合國內200余位經驗豐富的設計師,被評為口碑最好的農村建筑設計公司! |

新農村中式二層樓房設計圖紙及效果圖,125,150,170三個戶型可行
占地:多種戶型
農村二層半房子設計圖 ,占地110平米和160多平兩個戶型圖
占地:多種戶型
時尚耐看現代二層農村別墅設計圖,14米×11米,年輕人建房的不二
占地:138.125平方米
復式樓房二層農村別墅圖,村里建一棟絕對人人都羨慕
占地:130.2平方米
獨棟二層別墅cad設計圖紙,平屋頂自建別墅方案精選
占地:190平方米
面寬20米大氣的農村二層別墅設計圖,戶型帶車庫和土灶房設計
占地:250.85平方米
多臥室復式二層別墅房屋設計圖,含外觀效果圖
占地:175平方米
占地180平方米二層農村新款樓房別墅設計圖,外觀漂亮
占地:180平方米
新農村二層帶庭院的小別墅設計圖及效果圖
占地:137平方米
農村一層平房別墅設計施工圖效果圖,外觀簡約時尚,17萬到19萬
占地:168平方米
新款農村四層復式別墅設計圖紙及效果圖,外立面清新別致
占地:207平方米
新農村三拼別墅三戶連體別墅設計圖,設計新穎美觀
占地:380平方米
造價65萬左右的三層歐式別墅房屋設計施工CAD圖紙及效果圖
占地:178平方米
現代新中式四層復式別墅房屋設計圖,旋轉樓梯,含效果圖
占地:150平方米
五間兩層農村自建房設計圖,大門居中真氣派,空間寬敞生活質量
占地:219.94平方米
140平三層自建房別墅設計圖,外觀圖大氣、美觀
占地:140平方米
260平方米兩層帶車庫四合院房屋設計圖紙及效果圖
占地:260平方米
實用三層新農村住宅設計圖,鄉村別墅設計圖(含外觀效果圖)
占地:102.34平方米
農村三間兩層樓房設計圖,帶車庫,戶型簡單實用
占地:140平方米
現代三層農村房屋設計圖紙及效果圖,帶全套cad建筑圖
占地:95平方米
推薦:10套新農村自建房設計圖,2026年最新設計
閱讀次數:4825737次
100套鄉村別墅圖片大全,2026年最新設計
閱讀次數:2492203次
6款農村蓋一層平房的設計圖,10萬元就能建起來
閱讀次數:1852637次
這11個一層農村自建房別墅火爆了朋友圈!我最喜歡戶型十!你呢
閱讀次數:750268次
農村6萬元建一層小別墅圖,你敢相信嗎
閱讀次數:567686次
農村5萬塊就能自建房,6套普通房子設計圖分享,你沒看錯!
閱讀次數:419410次
8套農村漂亮三間平房圖片,非常適合在農村修建!
閱讀次數:411197次
農村自建房化糞池怎么做?附方案及施工過程
閱讀次數:391783次
農村一層三間平房設計圖,告別土氣養老房,讓人忍不住點贊
閱讀次數:350581次
新農村二層樓房圖片造價12萬,挑一套回家建房吧!
閱讀次數:349126次
