
|
世間萬物更新換代速度飛快,當前流行的元素幾年后便很容易被取代或淘汰,如何讓自家的房子幾十年不過時?這就得從設計上去考慮了,一套不容易過時的房屋,是耐看而實用的,今天小編給大家分享一款25萬11×11米7房二層漂亮農村獨棟小別墅施工效果圖。
正面效果圖 戶型簡介 層數: 二層 結構形式: 磚混結構 開間: 10.6米 進深: 10.8米 占地面積: 111.12平方米 總建筑面積: 216.96平方米 一層建筑面積111.12平方米 二層建筑面積105.84平方米 建筑總高度8.75米 主體造價25萬
背面效果圖 該戶型設計簡約時尚,精致雅觀,黃色文化石和黃色真石漆相互映襯,灰色坡屋頂也十分協調,黑色鐵藝欄桿帶來沉穩的視覺感受,正立面右邊的外凸結構設計增加立體感,室內布局流暢,功能齊全。 設計功能
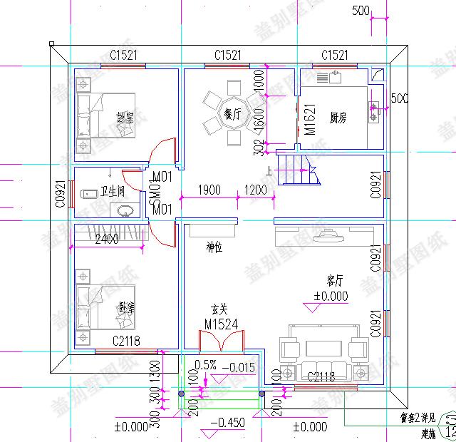
一層平面圖 一 層: 玄關、客廳、餐廳、廚房、2臥室、衛生間 入門設有玄關和神位,與農村風俗相符,玄關有是客廳,本層共有2間臥室,廚房和餐廳設在北面,餐廳采用開放式設計,各個區域功能設計流暢。
二層平面圖 二 層: 客廳、書房、主臥室(帶書房、陽臺)、次臥室(帶陽臺)、臥室、衛生間 本層共有5個房間,其中3間室臥室,南面的兩間臥室均帶有陽臺,適當延伸臥室空間。另外兩個房間可以做書房、兒童房、娛樂間、儲物間使用,隨住戶需求調整。小客廳設計可以放置電視沙發。 圖紙之家-專注農村別墅/自建房設計18年,集合國內200余位經驗豐富的設計師,被評為口碑最好的農村建筑設計公司! |

簡潔干練三層現代風平頂別墅設計圖,8X15米
占地:115.1平方米
農村三層中式仿古別墅設計圖紙,中國風自建房戶型
占地:158.64平方米
最美中式農村別墅二層三間的房子圖,帶土灶房,娛樂室,大露臺
占地:180平方米
農村中式兩層雙拼別墅房屋設計圖,含效果圖片
占地:200平方米
15萬左右一層農村自建房設計圖,一家住剛剛好
占地:131.33平方米
二層農村雙拼別墅帶露臺設計圖,20×11.8米,單戶110平米
占地:220平方米
最美中式合院別墅圖,這才是中國農村該建的房子,如此精美絕倫
占地:380平方米
三間二層最好看別墅設計圖,簡單實用美到爆炸,農村建房新潮流
占地:121.51平方米
120平方米農村四層別墅施工設計圖紙及效果圖
占地:120平方米
農村60萬別墅款式設計圖及外觀效果圖,客廳中空
占地:150平方米
四層(三層半)復式別墅設計圖片大全,歐式風格
占地:174平方米
辦公居住共用的一層別墅設計圖,簡約優雅,精致生活新體驗
占地:265.3平方米
爆火農村養老房設計:16 米面寬一層戶型,自住養老全拿捏
占地:169.87平方米
三層帶地下室+旋轉樓梯別墅設計圖紙,復式挑空客廳
占地:多種戶型
2026新款四層樓房設計圖,占地120平方米左右,客廳中空
占地:120平方米
歐式三層小洋樓設計圖,歐式最美三層別墅外觀效果圖
占地:124.28平方米
農村三層自建房子圖紙設計方案,開間11米左右
占地:151.96平方米
170平方米新農村實用的三層雙拼設計圖紙,帶公用堂屋!
占地:173.62平方米
農村四層樓房設計圖,占地120平方米,歐式風格,高端大氣
占地:120平方米
最接農村地氣的二層農村小別墅,造價30萬左右,經濟實用
占地:170平方米
推薦:10套新農村自建房設計圖,2026年最新設計
閱讀次數:4825737次
100套鄉村別墅圖片大全,2026年最新設計
閱讀次數:2492203次
6款農村蓋一層平房的設計圖,10萬元就能建起來
閱讀次數:1852637次
這11個一層農村自建房別墅火爆了朋友圈!我最喜歡戶型十!你呢
閱讀次數:750268次
農村6萬元建一層小別墅圖,你敢相信嗎
閱讀次數:567686次
農村5萬塊就能自建房,6套普通房子設計圖分享,你沒看錯!
閱讀次數:419410次
8套農村漂亮三間平房圖片,非常適合在農村修建!
閱讀次數:411197次
農村自建房化糞池怎么做?附方案及施工過程
閱讀次數:391783次
農村一層三間平房設計圖,告別土氣養老房,讓人忍不住點贊
閱讀次數:350581次
新農村二層樓房圖片造價12萬,挑一套回家建房吧!
閱讀次數:349126次
