
|
施工隊建房子也是很注重口碑的,他們肯定也跟業主們一樣希望能夠建造出一棟有一棟漂亮的房子,畢竟房子建好了,大家都都能看得到,建的好大家都會夸,并且會由此帶來更多的生意;建的不好的,大家見了都會說,自然不會再有人找他們建房子。兩棟外觀靚布局好的三層農村別墅戶型,這樣的戶型施工隊建起來都很有勁。 第一棟:建房尺寸是11.9×14米,這款別墅整體用色比較的艷麗。
這棟房子要是建在老家,如果宅基地還是靠近村道或者小主干馬路的話,無疑能成為一道引人駐足的風景,因為它有這個資本,用到裝飾構件來裝飾的外表更加的豐富。
屋頂保持著外觀一般的風格,采用紅色的琉璃瓦裝飾,很容易吸引人的眼球。
平面布局說明:一層寬敞的客廳設計,用來接待客人最是方便,尤其是逢年過節客人多的時候,也不會覺得擁擠;三層共有7個臥室設計,包括一層的老人房,二層的5個臥室,還有頂層的一間臥室;其他的配套設施有棋牌室、二層的起居室、生活陽臺、休閑娛樂室、多功能廳/KTV、晾衣房和室外涼亭露臺等。
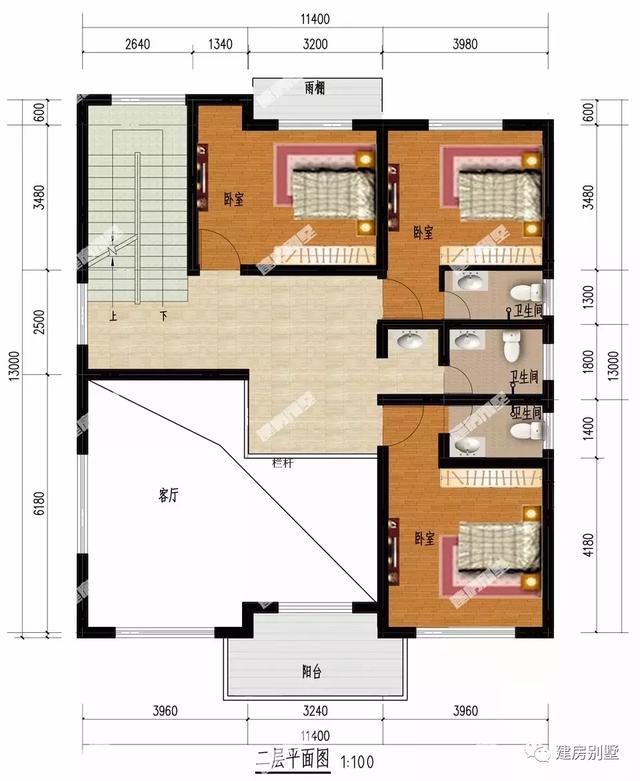
第二棟別墅戶型:建房尺寸是11.4×13米,這是一款外觀用歐式風格設計的別墅。
大窗設計,外墻采用了很多的歐式構件,使得整體的造型很立體,很有型。
這棟外觀的用色不如第一棟來的眼里,但保持著自己的風格自成一體,喜歡的人數不勝數。
平面布局說明:一層有客廳有茶室,茶室挑空,兩者的區域加起來是很寬敞的,至于具體功能也可以切換,戶型南北通透;三層也是有7個臥室的,一層一個老人房,二層和三層都各有三個臥室,每層都配有室內外的休閑空間。
這兩棟別墅顏值高,布局很實用,當時戶型一出來就有很多人選中了,現在也是源源不斷的有人在建。 圖紙之家-專注農村別墅/自建房設計18年,集合國內200余位經驗豐富的設計師,被評為口碑最好的農村建筑設計公司! |

100平左右農村一層平房小洋樓建筑設計圖紙,14米×8米
占地:98平方米
新中式二層雙拼樓房設計圖,單戶面積100平米左右,實用美觀
占地:200平方米
好看又簡單的二層樓房設計圖紙,戶型還實用
占地:150平方米
農村新款二層中式別墅設計圖效果圖,帶堂屋設計
占地:144平方米
新農村二層自建房設計圖帶外觀圖片,自建戶型大全
占地:160平方米
造價30萬的三層簡歐新農村別墅設計施工圖紙及效果圖
占地:133平方米
二層農村小別墅自建房設計圖,布局實用,占地150平
占地:149.05平方米
150平農村三層歐式別墅設計圖紙,盡顯豪華與精致,讓人羨慕不已
占地:147.62平方米
260平方米兩層帶車庫四合院房屋設計圖紙及效果圖
占地:260平方米
農村三層雙拼別墅設計圖,帶外觀效果圖,推薦
占地:190平方米
12x13米豪華三層農村別墅設計圖,宅基地上的貴族人生
占地:156平方米
帶堂屋設計一層三合院設計圖,白墻黛瓦古韻悠悠,比高層舒服接
占地:179.37平方米
二層復式農村豪宅別墅設計圖,挑空客廳旋轉樓梯高級感十足
占地:215.43平方米
大二間三層別墅戶型圖,三層新農村自建房設計圖紙及效果圖
占地:116平方米
中國最美建筑四合院設計圖紙及效果圖,顏值爆棚
占地:152平方米左右
面寬11米超實用的農村一層別墅設計圖,南北通透造價不高
占地:110.47平方米
五間兩層農村自建房設計圖,大門居中真氣派,空間寬敞生活質量
占地:219.94平方米
新中式三層歐式別墅設計圖,盡顯貴族風范,占地135平
占地:134.37平方米
一層自建別墅設計圖,占地70平不大功能很齊全,非常適合農村養
占地:69.61平方米
農村二層半新中式小別墅設計圖(帶閣樓層),二層半自建房戶型
占地:144平方米
推薦:10套新農村自建房設計圖,2026年最新設計
閱讀次數:4825737次
100套鄉村別墅圖片大全,2026年最新設計
閱讀次數:2492203次
6款農村蓋一層平房的設計圖,10萬元就能建起來
閱讀次數:1852637次
這11個一層農村自建房別墅火爆了朋友圈!我最喜歡戶型十!你呢
閱讀次數:750268次
農村6萬元建一層小別墅圖,你敢相信嗎
閱讀次數:567686次
農村5萬塊就能自建房,6套普通房子設計圖分享,你沒看錯!
閱讀次數:419410次
8套農村漂亮三間平房圖片,非常適合在農村修建!
閱讀次數:411197次
農村自建房化糞池怎么做?附方案及施工過程
閱讀次數:391783次
農村一層三間平房設計圖,告別土氣養老房,讓人忍不住點贊
閱讀次數:350581次
新農村二層樓房圖片造價12萬,挑一套回家建房吧!
閱讀次數:349126次
