
|
當你手頭有二三十萬,城里的房子買不起,車子又是不斷貶值的消耗品,不妨考慮回老家蓋房子。給大家分享一款20萬二層平屋頂2廳4臥10×13米帶神位+主臥套房自建房,這款采用平屋頂設計,為了騰出空間做屋頂的大露臺,可以做屋頂花園,還能觀賞美景,晾曬東西,實用性比較高。一層設有神位,這些功能設計都是比較符合農村住房現狀的下面有一起來看這款戶型具體介紹。
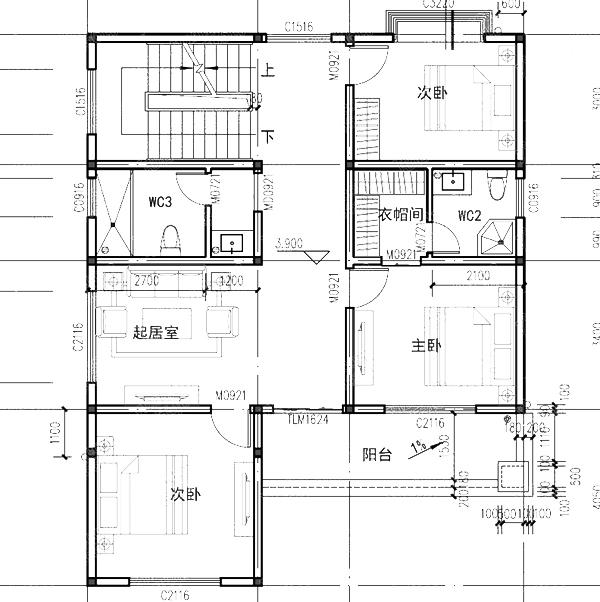
效果圖 層數:二層 開間:10米 進深:12.65米 首層占地面積:102.70平方米 總建筑面積:237.613平方米 結構形式:磚混結構 主體造價:20萬 功能布局
一層平面圖 一層:客廳、廚房、餐廳、公衛、臥室、儲藏室、神位、樓梯間
二層平面圖 二層:起居室、主臥(帶衣帽間、衛生間)、次臥*2、公衛、陽臺、公衛 圖紙之家-專注農村別墅/自建房設計18年,集合國內200余位經驗豐富的設計師,被評為口碑最好的農村建筑設計公司! |

居家養老一層別墅設計圖,面寬20米,農村建一棟不吃虧
占地:259.7平方米
古典韻味的四層房屋設計圖,占地140平米左右,這樣的外觀配上紅
占地:140平方米
130平氣派美觀的二層別墅房屋設計圖,含效果圖
占地:130平方米
預算10萬的簡單二層半別墅房屋設計圖,外觀簡單,造價低
占地:90平方米
2026新款戶型三層新農村別墅房屋設計圖紙,外觀對稱
占地:160平方米
155平方米新三層全套別墅設計資料,15x10米
占地:158平方米
現代風格二層別墅設計圖,外觀時尚、大氣
占地:153平方米
2款現代風格農村兩層別墅設計圖,時尚漂亮
占地:多戶型可選
農村四間二層半雙拼樓設計圖,住三帶人都沒有問題!
占地:270平方米
農村13萬元二層小樓圖,簡單易建,造價低
占地:110平方米
小型農村二層自建樓房設計圖,面寬10米小占地經濟
占地:78.54平方米
時尚四開間二層農村別墅,經典大氣,引領建房新潮流!
占地:159.6平方米
農村最好看兩層小樓圖及全套CAD施工圖紙,新中式風格,簡潔大氣
占地:150平方米
140平中式徽派一層別墅設計圖,一層照樣建這樣漂亮
占地:140平方米
145平方米新農村二層別墅設計效果圖及施工圖,12.6米x11.4米
占地:147平方米
簡單大方二層小別墅設計圖,占地180平米,造型美觀,構造整齊有
占地:180平方米
鄉村20萬內三層別墅房屋設計圖,面積適中、戶型經典
占地:100平方米
復式別墅新農村二層房屋設計圖紙,屋頂錯落有致
占地:多戶型可選
百余平三層豪華別墅設計圖,高品位穩重耐看,全村都羨慕的豪華
占地:108.95平方米
新中式三層豪華大氣三層別墅自建房屋設計圖,帶地下室,土豪專
占地:194平方米
推薦:10套新農村自建房設計圖,2026年最新設計
閱讀次數:4825737次
100套鄉村別墅圖片大全,2026年最新設計
閱讀次數:2492203次
6款農村蓋一層平房的設計圖,10萬元就能建起來
閱讀次數:1852637次
這11個一層農村自建房別墅火爆了朋友圈!我最喜歡戶型十!你呢
閱讀次數:750268次
農村6萬元建一層小別墅圖,你敢相信嗎
閱讀次數:567686次
農村5萬塊就能自建房,6套普通房子設計圖分享,你沒看錯!
閱讀次數:419410次
8套農村漂亮三間平房圖片,非常適合在農村修建!
閱讀次數:411197次
農村自建房化糞池怎么做?附方案及施工過程
閱讀次數:391783次
農村一層三間平房設計圖,告別土氣養老房,讓人忍不住點贊
閱讀次數:350581次
新農村二層樓房圖片造價12萬,挑一套回家建房吧!
閱讀次數:349126次
