
|
農村自建房種類繁多,既有輕奢的歐式別墅,也有典雅的中式合院,田園美宅風情最得人心,但是看來看去,始終萬變不離其宗,相似的戶型看太多了,著實出現了審美疲勞;今日,農村小別墅特意推出這款別墅,相信這樣的房子,定會在農村自建房領域中,脫穎而出!
農村別墅基本信息
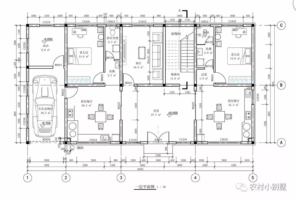
? 占地尺寸:18.8米x9.8米 ? 占地面積:190平方 ? 建筑面積:344平米 ? 建筑結構:磚混結構 ? 造價估算:30萬 效果圖一
本套圖紙有施工圖和效果圖,包打印(效果圖為彩圖,施工圖為A3大圖)
設計功能:
一層:臥室、客廳、餐廳、廚房、衛生間、
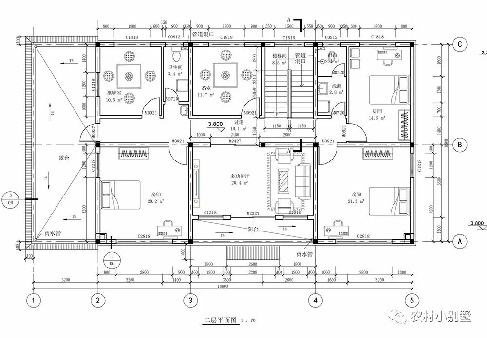
二層:臥室、茶室、棋牌室、多功能廳、衛生間、
本套圖紙有施工圖和效果圖,包打印(效果圖為彩圖,施工圖為A3大圖) 圖紙之家-專注農村別墅/自建房設計18年,集合國內200余位經驗豐富的設計師,被評為口碑最好的農村建筑設計公司! |

戶型好的農村三層樓房設計圖,帶外觀效果圖
占地:110平方米
復式三層別墅設計圖片及全套圖紙,客廳中空,外觀為歐式建筑的
占地:175平方米
精致農村別墅圖,150平米一層三合院設計,四臥二廳舒適宜居
占地:149.43平方米
農村二層樓房設計圖紙,含全套設計方案(施工圖+效果圖)
占地:98平方米
180平方農村二層別墅施工設計圖紙,15.8x11.7米
占地:180平方米
230平方農村雙拼別墅設計圖,26x11米自建房屋戶型
占地:230平方米
適合回鄉建的三合院平房設計圖,舒適又接地氣
占地:213.96平方米
L“型”一層自建房小平層設計圖紙,180平方米
占地:179.355平方米
20萬左右普通農村房子設計圖,二層簡約小別墅
占地:140平方米
最新歐式三層別墅設計圖紙,超漂亮,預算30到40萬
占地:160平方米
獨棟小別墅設計圖,造價30萬左右的獨棟小別墅設計推薦
占地:150平方米
經濟小戶型二層中式四合院(三合院)設計圖紙,帶堂屋和庭院
占地:143.544平方米
背面不開窗二層別墅設計圖,對稱設計簡單好看,眾多建房者的選
占地:183.79平方米
農村中式一層三合院自建房設計圖,古典大氣白墻黛瓦
占地:177.62平方米
50萬農村自建三間三層別墅設計圖,占地130平米左右
占地:135平方米
農村一層平房別墅設計圖紙,130平米左右,主體十幾萬
占地:130平方米左右
仿古中式四合院別墅設計戶型圖,外觀圖古典風格
占地:524平方米
簡約大氣農村自建三層別墅設計圖,布局合理,很適合農村人自建
占地:139.471平方米
15萬左右一層農村自建房設計圖,一家住剛剛好
占地:131.33平方米
戶型簡單實用的三層農村房屋設計圖紙,復式結構,大面積開窗,
占地:170平方米
推薦:10套新農村自建房設計圖,2026年最新設計
閱讀次數:4825737次
100套鄉村別墅圖片大全,2026年最新設計
閱讀次數:2492203次
6款農村蓋一層平房的設計圖,10萬元就能建起來
閱讀次數:1852637次
這11個一層農村自建房別墅火爆了朋友圈!我最喜歡戶型十!你呢
閱讀次數:750268次
農村6萬元建一層小別墅圖,你敢相信嗎
閱讀次數:567686次
農村5萬塊就能自建房,6套普通房子設計圖分享,你沒看錯!
閱讀次數:419410次
8套農村漂亮三間平房圖片,非常適合在農村修建!
閱讀次數:411197次
農村自建房化糞池怎么做?附方案及施工過程
閱讀次數:391783次
農村一層三間平房設計圖,告別土氣養老房,讓人忍不住點贊
閱讀次數:350581次
新農村二層樓房圖片造價12萬,挑一套回家建房吧!
閱讀次數:349126次
