
|
現在農村建房確實是如火如荼,這估計跟今年的農村土地政策是有關的,所以很多人都把這個計劃提前了,說到農村自建房,應該很多人都有非常多的苦惱,就是希望建一款時尚大方適合農村居住的,那到底什么樣的農村別墅適合?
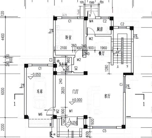
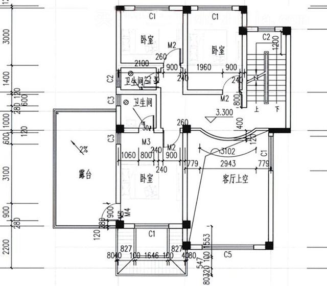
本戶型為歐式三層樓中樓別墅設計圖紙,帶車庫,帶屋頂花園,外觀效果圖時尚、精致,施工時可以建車庫,可以不建車庫,建車庫占地130平左右,不建車庫占地120平左右,大小適中,很適合農村自建。 占地面積:12.2m*13.5m(尺寸含左側獨立車庫), 建筑高度:11.09米(不含屋頂)坡屋頂;
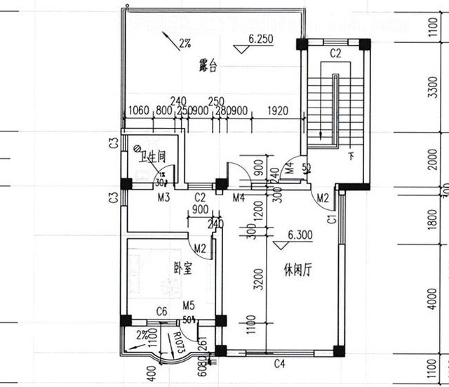
設計功能:首層:門廳、客廳、臥室、廚房、餐廳、衛生間、車庫;二層:主臥(帶衛生間)、臥室x2(小臥室可以做書房)、衛生間、露臺;三層:休閑廳、臥室、露臺。
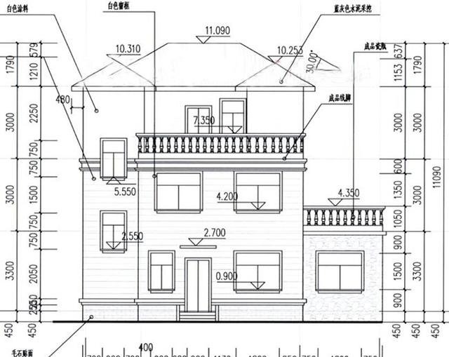
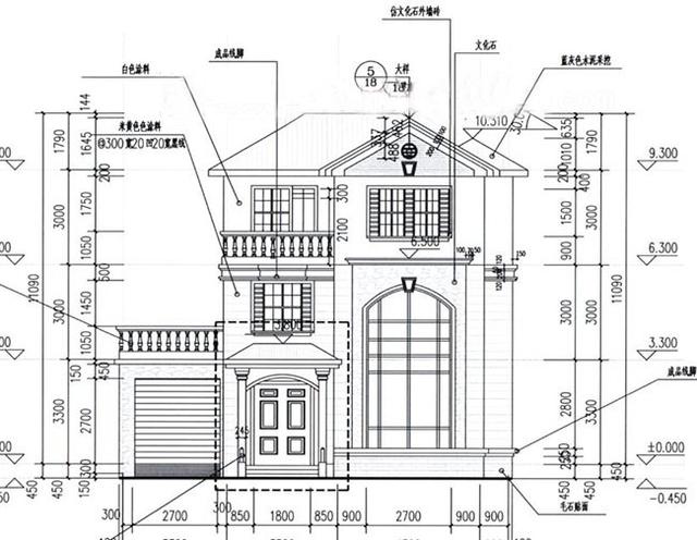
立面圖:
![]() 圖紙之家-專注農村別墅/自建房設計18年,集合國內200余位經驗豐富的設計師,被評為口碑最好的農村建筑設計公司! |

帶電梯農村建房三層小洋樓,樓中樓結構,帶露臺
占地:110平方米
最新設計的農村二層自建房屋設計圖,占地180平米,經濟實用
占地:180平米
最好看的新款農村三層復式別墅設計圖片及設計圖,外觀高端、大
占地:160平方米
三層帶車庫農村別墅設計圖紙(含外觀效果圖)
占地:147.7平方米
歐式大氣新農村三層別墅豪宅設計圖,外觀高端,對稱設計
占地:225平方米左右
45萬新中式二層雙拼自建房別墅設計圖,平屋頂設計
占地:210平方米
簡單大方四間二層小樓房設計圖,帶車庫,帶大露臺
占地:180平方米
小戶型三層別墅房屋設計圖紙,占地80多平米,麻雀雖小五臟俱全
占地:80平方米
12.8乘10米一層平房別墅設計圖,四室二廳南北通透
占地:128.85平方米
經濟小戶型二層中式四合院(三合院)設計圖紙,帶堂屋和庭院
占地:143.544平方米
農村60萬三層別墅新款式設計圖,外觀和實用性并駕齊驅
占地:170平方米
現代一層(帶悶頂)別墅住宅設計圖,外觀現代時尚
占地:160平方米
100平方米新農村住宅二層小別墅設計CAD圖紙及效果圖,10x10米
占地:96平方米
11x9三層別墅房屋設計圖,含效果圖片
占地:97平方米
新農村復試兩層半樓房設計圖,帶大露臺,簡單經濟實用大氣
占地:190平方米
2026農村漂亮的一層平房圖片平面圖與全套施工圖紙,戶型周正
占地:150平方米
210平左右三層(兩層半)雙拼新農村別墅設計圖紙及外觀效果圖
占地:206.712平方米
320平方米高端農村帶車庫四合院別墅設計圖,徽派韻味十足
占地:320.89平方米
平頂三層別墅設計方案,簡潔舒適大氣通透,12乘9米,打造理想住
占地:98.21平方米
12米×10米左右一層別墅平房戶型圖及設計圖,造價低
占地:110平方米
推薦:10套新農村自建房設計圖,2026年最新設計
閱讀次數:4825737次
100套鄉村別墅圖片大全,2026年最新設計
閱讀次數:2492203次
6款農村蓋一層平房的設計圖,10萬元就能建起來
閱讀次數:1852637次
這11個一層農村自建房別墅火爆了朋友圈!我最喜歡戶型十!你呢
閱讀次數:750268次
農村6萬元建一層小別墅圖,你敢相信嗎
閱讀次數:567686次
農村5萬塊就能自建房,6套普通房子設計圖分享,你沒看錯!
閱讀次數:419410次
8套農村漂亮三間平房圖片,非常適合在農村修建!
閱讀次數:411197次
農村自建房化糞池怎么做?附方案及施工過程
閱讀次數:391783次
農村一層三間平房設計圖,告別土氣養老房,讓人忍不住點贊
閱讀次數:350581次
新農村二層樓房圖片造價12萬,挑一套回家建房吧!
閱讀次數:349126次
