
|
農村的生活水平不斷提高,選擇在農村建房的隊伍也不斷壯大。在自己成長的故鄉,建一棟美觀大方的小別墅,一家人在一起生活,是多么的愜意啊! 下邊給大家推薦5套農村三層別墅設計,房屋主體造價經濟、戶型布局以實用為主,讓你花最少的錢就能蓋出一棟滿意的別墅! 第一套
正面效果圖
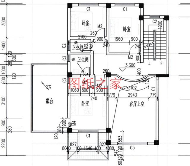
鳥瞰圖 占地面積:13.3m*14.6m,140平方米左右; 建筑層高:三層; 建筑高度:12.8m(含屋頂); 設計功能: 一層戶型:門廊、客廳、車庫、餐廳、廚房、衛生間、客房; 二層戶型:陽臺、臥室、露臺、陽臺、書房、衛生間、臥室、衛生間、臥室、客廳上空; 三層戶型:露臺、臥室、衛生間、書房、陽臺、露臺、活動室、臥室、衛生間、臥室;
一層平面圖
二層平面圖
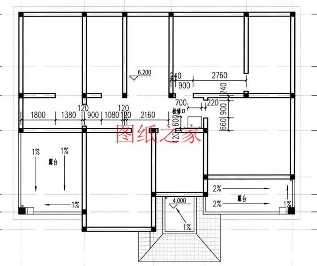
三層平面圖 第二套
正面效果圖
鳥瞰圖
背面效果圖 占地面積:12.2m*13.5m,150平方米左右; 建筑高度:11.09米(含屋頂); 設計功能: 一層戶型:門廳、客廳、臥室、廚房、餐廳、衛生間、車庫 二層戶型:主臥(帶衛生間)、臥室x2(小臥室可以做書房)、衛生間、露臺 三層戶型:休閑廳、臥室、露臺
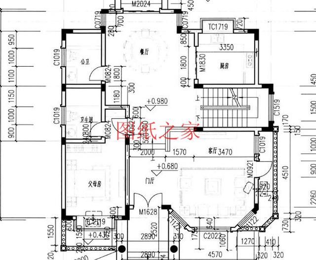
一層平面圖
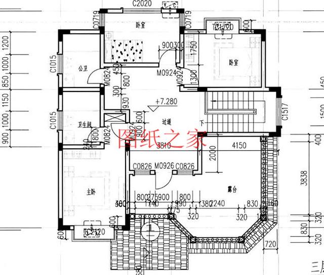
二層平面圖
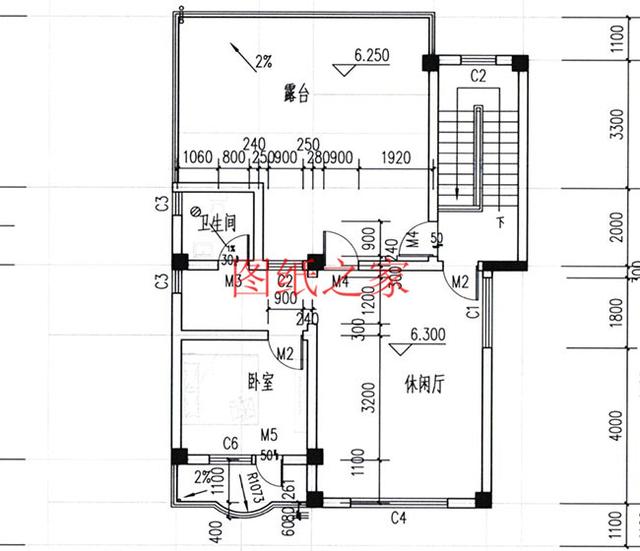
三層平面圖 第三套
正面效果圖
鳥瞰圖
背面效果圖 占地面積:11.7m*11.7m,135平方米左右; 建筑高度:13.42米(含屋頂); 設計功能: 地下戶型:車庫、影音室、酒窖、臺球廳、健身房、儲藏間; 一層戶型:門廳、客廳、廚房、餐廳、衛生間、主臥(帶衛生間); 二層戶型:過道、主臥(帶衛生間)、臥室x2、衛生間、露臺; 三層戶型:過道、主臥(帶衛生間)、臥室x2、衛生間、大露臺;
地下平面圖
一層平面圖
二層平面圖
三層平面圖 第四套
正面效果圖
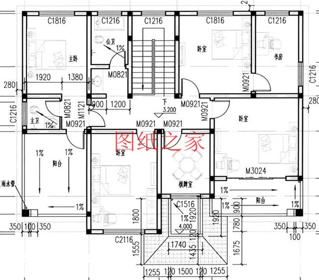
鳥瞰圖 占地面積:11.76m*12.5m,147平方米左右; 建筑高度:12.2米(含屋頂); 設計功能: 一層戶型:大堂、神位、客廳、廚房、餐廳、衛生間、雜物間、老人房 二層戶型:主臥(帶衛生間和衣帽間)、起居室、臥室X2、衛生間、臥室(帶雜物間); 三層戶型:起居室、客房、衛生間、雜物間、書房、娛樂室、大露臺
一層平面圖
二層平面圖
三層平面圖 第五套
別墅效果圖 占地面積:14.34m*11.34m,160平方米左右; 建筑高度:8.90米(含屋頂); 設計功能: 一層戶型:門廳、客廳、廚房、餐廳、衛生間、臥室x2、車庫 二層戶型:主臥(帶衛生間)、臥室x3(其中一個臥室可以做書房,書房可以做衣帽間)、棋牌室、書房、衛生間、露臺、陽臺 三層戶型:閣樓
一層平面圖
二層平面圖
閣樓平面圖 圖紙之家-專注農村別墅/自建房設計18年,集合國內200余位經驗豐富的設計師,被評為口碑最好的農村建筑設計公司! |

居家養老一層別墅設計圖,面寬20米,農村建一棟不吃虧
占地:259.7平方米
新農村自建房設計圖及效果圖大全,新農村住宅精選
占地:112平方米
簡單大方四間二層小樓房設計圖,帶車庫,帶大露臺
占地:180平方米
雅致的鄉下二層蓋別墅設計圖紙,造價35萬左右
占地:178平方米
面寬13米三層新中式獨棟別墅設計圖,復式自建房戶型方案
占地:201.25平方米
160平方米新農村三層半別墅設計圖11X16米65萬以內
占地:160平方米
二層小型簡單四合院設計圖,戶型方正,左右對稱,傳統文化的傳
占地:470平方米
120平米農村房屋設計圖,造價20萬左右,別墅造型結構精致
占地:120平方米
面寬18米二層新中式別墅圖紙設計,復式戶型,帶堂屋
占地:269.83平方米
100平復式三層別墅房屋設計圖,客廳挑高,采光好,臥室多
占地:100平方米
最新潮的90平方米三層房屋設計圖 ,古樸典雅又不失時尚
占地:90平方米
200平方米農村二層中式四合院設計圖,含外觀圖片
占地:200平方米
實用型農村120平米二層樓房設計圖,小巧美觀實用
占地:120平方米
二層現代別墅設計圖及效果圖,外觀美觀,大氣
占地:195平方米
農村二層樓簡單大氣的樓房設計圖紙,帶車庫,帶露臺
占地:150平方米
兩戶190平方米新農村雙拼別墅全套設計方案及效果圖
占地:191平方米
農村三層房屋設計圖紙,三層農村住宅設計效果圖,11米*10米
占地:100平方米
農村自建二層樓房設計圖及效果圖,二層房屋圖推薦
占地:105平方米
被包工頭夸爆的二層別墅戶型!建好未來幾年必火
占地:189.98平方米
新徽派農村三層小別墅設計圖,白墻黛瓦中式風,12米乘11米
占地:115.46平方米
推薦:10套新農村自建房設計圖,2026年最新設計
閱讀次數:4825737次
100套鄉村別墅圖片大全,2026年最新設計
閱讀次數:2492203次
6款農村蓋一層平房的設計圖,10萬元就能建起來
閱讀次數:1852637次
這11個一層農村自建房別墅火爆了朋友圈!我最喜歡戶型十!你呢
閱讀次數:750268次
農村6萬元建一層小別墅圖,你敢相信嗎
閱讀次數:567686次
農村5萬塊就能自建房,6套普通房子設計圖分享,你沒看錯!
閱讀次數:419410次
8套農村漂亮三間平房圖片,非常適合在農村修建!
閱讀次數:411197次
農村自建房化糞池怎么做?附方案及施工過程
閱讀次數:391783次
農村一層三間平房設計圖,告別土氣養老房,讓人忍不住點贊
閱讀次數:350581次
新農村二層樓房圖片造價12萬,挑一套回家建房吧!
閱讀次數:349126次
