
|
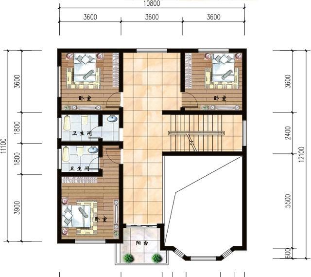
今天給大家分享2款二層農村別墅設計圖,主體造價均在30萬左右,設計實用美觀,戶型1帶有挑空客廳,戶型2帶有車庫,來看看你更喜歡哪一款? 【戶型1】 這款農村別墅設計圖開間10.8米,進深11.1米,占地面積134㎡,建筑面積238㎡,主體造價25萬左右。
該戶型是復試二層別墅,客廳挑空設計,共設有5間臥室,一層2間二層3間,有落地大窗戶,要有大露臺,布局合理,外觀結構獨特美觀,尤其是拱形門廊和多面體結構的設計,巧妙獨特。 戶型1室內布局
一層功能設計:挑空客廳、餐廳、廚房、臥室*2、倉庫、衛生間
二層功能設計:陽臺、臥室(帶衛生間)、臥室*2、衛生間 【戶型2】 戶型2開間進深14.3米*9.4米,占地面積140㎡,總建筑面積274㎡,采用框架結構,主體造價28萬左右,房屋高度9.8米,一層設有2廳1臥1廚2衛1車庫,二層設有4臥2衛2陽臺1書房1衣帽間。
簡歐風格設計,采用黃、白、藍三色為主主色,色彩搭配清新,車庫上方的大陽臺給外觀增添不少美感,同時還增加了住戶的活動空間,共設有5間臥室,車庫和書房均可做臥室使用,滿足三四代同堂家庭居住。 戶型2室內布局
一層功能設計:車庫、玄關、客廳、臥室(帶衛生間)、餐廳、廚房、衛生間
二層功能設計:臥室(帶陽臺)、臥室(帶衣帽間、陽臺、衛生間)、臥室*2、書房、衛生間 圖紙之家-專注農村別墅/自建房設計18年,集合國內200余位經驗豐富的設計師,被評為口碑最好的農村建筑設計公司! |

帶大套間新農村二層別墅自建房設計圖紙帶效果圖
占地:185平方米
帶柴火房農村一層自建房設計圖,戶型布局接地氣
占地:126.29平方米
農村120平米三間三層樓房設計圖紙,農村理想住房設計圖
占地:120平方米
造價低經濟簡單的二層農村自建房圖紙設計,簡潔實用
占地:136.08平方米
三層新農村自建房屋設計圖紙,占地120平米左右
占地:120平方米
地中海風格二層別墅設計圖方案,含外觀效果圖
占地:130平方米
三層新農村住宅房屋設計圖,溫馨美觀的戶型
占地:180平方米
大開間小進深的一層別墅設計圖,進深僅8.7米,獨立餐廚照樣美觀
占地:130.32平方米
165平方米三層雙拼農村房屋設計圖大全14x12
占地:168平方米
2026二層農村新款別墅設計圖,帶車庫,帶鍋爐房
占地:180平方米
歐式兩層別墅設計圖及歐式效果圖,造價25萬左右
占地:150平方米
仿古別墅建筑設計圖,外觀效果圖+全套施工圖
占地:142平方米
背面不開窗二層別墅設計圖,對稱設計簡單好看,眾多建房者的選
占地:183.79平方米
農村自建二層半樓房效果圖,美觀大氣布局合理,很適合農村人自
占地:160.11平方米
新農村二層歐式別墅設計圖,外觀漂亮,主體18萬起建
占地:115.2平方米
新農村兩層半小洋樓房設計圖,預算33萬左右
占地:多種戶型
現代一層(帶悶頂)別墅住宅設計圖,外觀現代時尚
占地:160平方米
造型新穎漂亮的農村二層現代風別墅設計圖,老少皆宜的外觀
占地:144.54平方米
180平方農村二層別墅施工設計圖紙,15.8x11.7米
占地:180平方米
170平方米歐式農村兩層小別墅設計圖紙帶外觀圖,精致好看
占地:多種戶型
推薦:10套新農村自建房設計圖,2026年最新設計
閱讀次數:4825737次
100套鄉村別墅圖片大全,2026年最新設計
閱讀次數:2492203次
6款農村蓋一層平房的設計圖,10萬元就能建起來
閱讀次數:1852637次
這11個一層農村自建房別墅火爆了朋友圈!我最喜歡戶型十!你呢
閱讀次數:750268次
農村6萬元建一層小別墅圖,你敢相信嗎
閱讀次數:567686次
農村5萬塊就能自建房,6套普通房子設計圖分享,你沒看錯!
閱讀次數:419410次
8套農村漂亮三間平房圖片,非常適合在農村修建!
閱讀次數:411197次
農村自建房化糞池怎么做?附方案及施工過程
閱讀次數:391783次
農村一層三間平房設計圖,告別土氣養老房,讓人忍不住點贊
閱讀次數:350581次
新農村二層樓房圖片造價12萬,挑一套回家建房吧!
閱讀次數:349126次
