
|
奔波于城市中高樓大廈間,車水馬龍,很難尋得一處靜謐之所,感受歲月靜好。所以很多人逐漸選擇回到自己的老家蓋自己喜歡的房子,過上向往的生活。
陜西王先生別墅設計圖,今年年初我們設計了陜西王先生村里的一個別墅,王先生看到我們設計圖后,于是也找到我們幫他設計,內部臥室要求不多,都比較大,還有做炕,內部格局王先生找風水師傅看了,結合當地實際情況設計,外觀樣式,王先生喜歡的風格
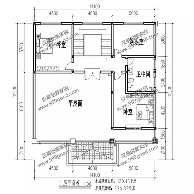
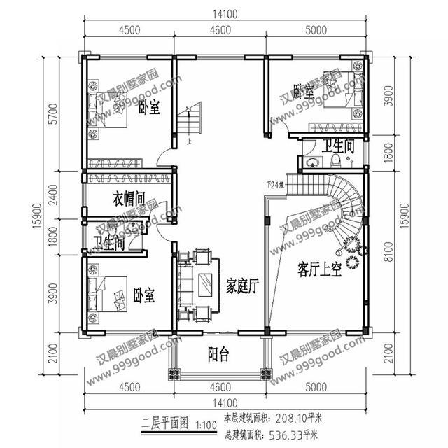
14.1X15.9米三層別墅設計圖,戶型功能左右分布,右邊客廳帶旋轉樓梯,左邊中間廚房。兩間臥室合理分布,避開了油煙,廚房也有小門,方便進出。
樓梯在二層的時候換成了三跑的直角樓梯,一為了省錢,二為了省空間。
三層有一個大露臺,兩間臥室帶有一個衛生間,一間娛樂室恰到好處。 ![]() 圖紙之家-專注農村別墅/自建房設計18年,集合國內200余位經驗豐富的設計師,被評為口碑最好的農村建筑設計公司! |

豪華大氣三層農村自建房設計圖,經典大氣,百看不厭,新中式風
占地:141.75平方米
小宅基地自建房設計圖,占地不到90平三層別墅圖紙
占地:87平方米左右
復式客廳挑空三層別墅設計圖,帶外觀效果圖片,推薦
占地:150平方米
經典小戶型新農村房屋住宅設計圖,10萬左右
占地:80平方米
適合農村建的二層別墅設計圖,簡約美觀,讓人心動不已
占地:153平方米
爆款農村兄弟雙拼自建房設計圖,占地不大舒適宜居
占地:147.2平方米
三間三層樓房設計圖紙,復試的設計,漂亮的一塌糊涂
占地:175平方米
別致美觀的簡歐二層別墅房屋設計圖,含外觀效果圖
占地:145平方米
新農村中式三層四合院別墅設計戶型圖,農村自建四合院效果圖
占地:多種戶型
農村中式二層雙拼四合院別墅設計圖,兄弟父母三戶典雅大氣
占地:360平方米
114平方米農村四層別墅設計圖紙及效果圖,11X11米
占地:114平方米
125平方米復式三層別墅房屋設計圖,房間多,采光好
占地:125平方米
一層半復式帶閣樓別墅設計圖,含外觀圖片
占地:150平方米
165平方米三層雙拼農村房屋設計圖大全14x12
占地:168平方米
四層(三層半)復式別墅設計圖片大全,歐式風格
占地:174平方米
簡歐式三層半(4層)農村自建房別墅設計圖效果圖,帶車庫戶型
占地:127平方米
2026最新兄弟簡歐雙拼別墅設計圖紙,單戶130平米左右
占地:260平方米
農村25萬元二層小樓圖,經典大氣建成20年不過時
占地:150平方米
私人自建三層別墅設計圖紙帶效果圖,歐式風格、外觀大氣
占地:209.44平方米
農村二層復式小別墅設計,進深12米,農村建房最受歡迎的款
占地:149.096 平方
推薦:10套新農村自建房設計圖,2026年最新設計
閱讀次數:4825737次
100套鄉村別墅圖片大全,2026年最新設計
閱讀次數:2492203次
6款農村蓋一層平房的設計圖,10萬元就能建起來
閱讀次數:1852637次
這11個一層農村自建房別墅火爆了朋友圈!我最喜歡戶型十!你呢
閱讀次數:750268次
農村6萬元建一層小別墅圖,你敢相信嗎
閱讀次數:567686次
農村5萬塊就能自建房,6套普通房子設計圖分享,你沒看錯!
閱讀次數:419410次
8套農村漂亮三間平房圖片,非常適合在農村修建!
閱讀次數:411197次
農村自建房化糞池怎么做?附方案及施工過程
閱讀次數:391783次
農村一層三間平房設計圖,告別土氣養老房,讓人忍不住點贊
閱讀次數:350581次
新農村二層樓房圖片造價12萬,挑一套回家建房吧!
閱讀次數:349126次
