
|
現在的國人對房子大致分為兩種流派,一種是買房族,一種是自建族,再也沒有別的情況。對于咱們農村人來說,自建別墅當然要比買房省錢的多,而且劃算,像下圖這個農村二層房屋設計圖,主人公僅僅花了18萬就蓋好了毛坯,這要是拿18萬去城里買房,恐怕連衛生間都不夠。
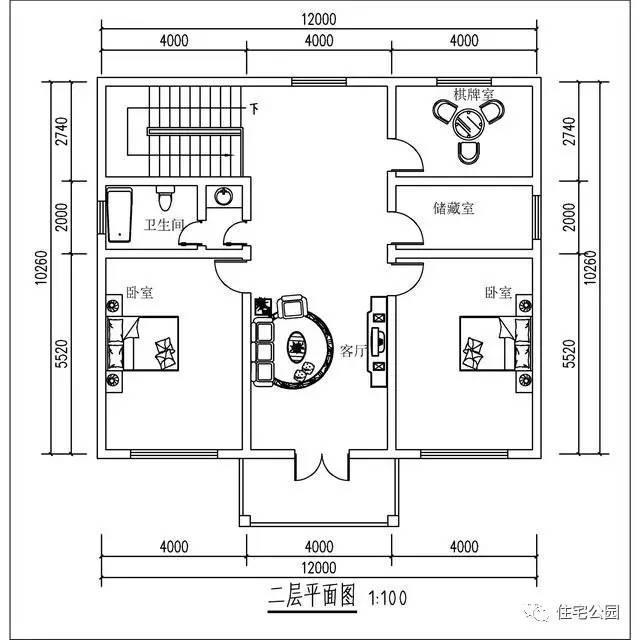
平面布局圖: 別墅面寬12米,進深10米,總占地面積138平方米,建筑面積270平方米,是一棟二層農村小別墅,首層布局經典大氣,各功能用房一應俱全,客廳臥室全都有,滿足農村人的日常生活需求。
二層布局兩臥一棋牌室,同時臥室之間還設有單獨的一個小偏廳,以方便居住在二層的人生活。
怎么樣,這樣的小房子,是不是你心頭大愛? 轉載請注明出自別墅設計網:http://www.bjcyqiyejia.com/ 千套別墅設計帶別墅圖片 |

130平方米新農村自建三層別墅設計施工圖,13x11米
占地:130平方米
新中式三層樓房設計方案,極具中國風,農村土豪的專屬別墅
占地:140平方米
復式、旋轉樓梯三層別墅設計方案圖,戶型合理、實用
占地:138平方米
農村25萬別墅款式二層自建房設計圖,外觀圖時尚
占地:115平方米
農村三層15萬自建房圖,小戶型別墅設計方案圖
占地:60平方米
160平方米新農村自建二層樓房設計圖紙及效果圖,15x11米
占地:160平方米
農村三層帶地下室小樓房設計圖,客廳中空,帶書房,旋轉樓梯
占地:130平方米
農村160平四間兩層樓房設計圖,全套施工圖+外觀效果圖片
占地:160平方米
大面積農村一層房子設計圖,戶型實用、合理
占地:190平方米
面寬15米大氣的農村二層復式戶型別墅設計圖紙及外觀圖片
占地:173.28平方米
2021新款新式農村50萬三層別墅圖片,帶地下室,美觀大氣
占地:130平方米左右
三層新農村自建小型別墅設計圖及效果圖,三間三層樓房戶型
占地:114平方米
二層自建房屋設計圖,帶小院,帶地下室,外觀現代、時尚,內部
占地:200平米
最新設計的農村二層自建房屋設計圖,占地180平米,經濟實用
占地:180平米
180平方米新農村雙拼戶型別墅房屋設計圖紙帶外觀圖17X11米
占地:180平方米
全新農村簡歐風格三層房屋別墅效果圖,110,210兩個戶型,帶電梯
占地:多種戶型
農村四層樓房設計圖,占地120平方米,歐式風格,高端大氣
占地:120平方米
戶型好的三層帶獨立車庫的樓房設計圖,含外觀效果圖
占地:148平方米
簡單二層半現代復式別墅設計圖,簡約大氣帶開放車庫
占地:174平方米左右
農村120平米兩層樓的房子設計圖,外觀新穎
占地:120平方米
11×10造價25萬帶神位平頂三層自建房設計圖
閱讀次數:29678次
2021年最流行的10套經典農村別墅,最愛那一套?
閱讀次數:25940次
進深8.5米,開間12米,帶堂屋的樓房設計圖怎么做?
閱讀次數:23817次
18萬搞定的農村二層別墅,詳細施工過程實拍!含別墅設計圖!
閱讀次數:17744次
5款帶落地窗的農村別墅,大氣的別墅就應該是這個樣子
閱讀次數:17217次
15套2017年最新潮二層農村別墅,這樣蓋既實用又上檔次!
閱讀次數:12834次
2021農村建的最多的2款二層小別墅戶型,爆款是有理由的
閱讀次數:11876次
農村自建房這樣預埋水電管,老師傅說規范又實用
閱讀次數:11471次
9X12米二層農村別墅,不超過規定面積還能有小院
閱讀次數:10618次
農村自建房打地基的費用是多少,需要注意哪些問題?
閱讀次數:10549次
