
|
褐色和米色的外墻搭配讓整個房子看上去大氣又低調,經典又實用。在布局方面也充份考慮到農村生活需求,功能齊全,實用性強。
基本信息
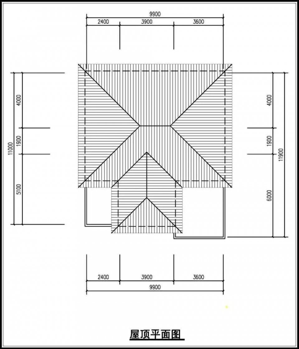
建筑占地面積:9.9mx11.9m; 建筑面積:306 建筑層數:三層; 造價預算:25萬 建筑高度:9.6米(不含屋頂)坡屋頂; 建筑結構:磚混結構;
設計功能:
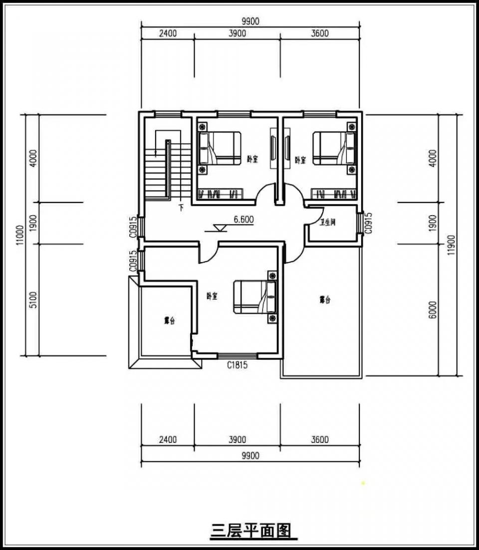
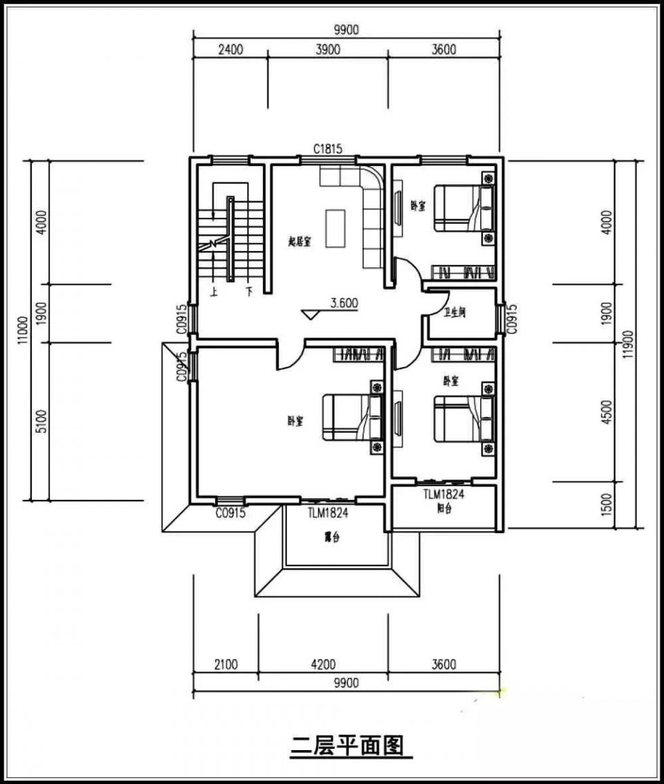
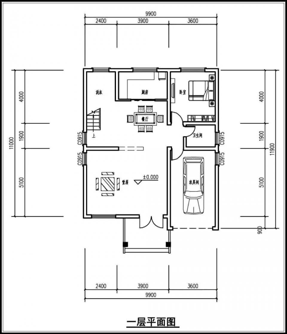
一層:堂屋、農具間、衛生間、餐廳、廚房、洗衣房、臥室; 二層:露臺、臥室、陽臺、臥室、衛生間、臥室、起居室; 三層:露臺、臥室、露臺、衛生間、臥室、臥室;
轉載請注明出自別墅設計網:http://www.bjcyqiyejia.com/ 千套別墅設計帶別墅圖片 |

預算10萬的簡單二層半別墅房屋設計圖,外觀簡單,造價低
占地:90平方米
135平三層農村樓房設計圖及效果圖,造價20萬左右
占地:135平方米
160平方米農村二層四合院別墅設計圖及外觀圖片
占地:158平方米
新農村二層帶露臺經濟型小別墅設計圖紙,含外觀效果圖
占地:120平方米
歐式風格三層別墅建筑設計圖,復式樓中樓結構
占地:138平方米
80平農村房屋設計圖,小戶型自建房三層別墅推薦
占地:未知
2021新農村三層雙拼房屋設計圖紙平面圖與效果圖,帶堂屋
占地:190平方米
320平方米高端農村帶車庫四合院別墅設計圖,徽派韻味十足
占地:320.89平方米
徽派3層農村小別墅設計圖,廣東新農村住宅設計圖集
占地:110平方米
簡歐式三層半(4層)農村自建房別墅設計圖效果圖,帶車庫戶型
占地:127平方米
三層雙拼別墅效果圖及戶型設計圖,占地150平米
占地:150平方米
小戶型現代新農村三層房屋設計建筑圖及效果圖
占地:108平方米
預算20萬左右三層別墅設計圖紙,新農村自建房推薦
占地:118平方米
120平方米新農村四層房屋設計圖紙和效果圖
占地:120平方米
簡潔大氣140平方三層房子設計圖,帶車庫戶型極佳
占地:140平方米
高端三層新中式農村別墅設計圖,仿合院布局,外觀霸氣
占地:133.64平方米
最新五十萬農村二層別墅設計圖紙,客廳中空
占地:195平方米
適合農村自建四合院圖片,中式二層四合院別墅設計施工圖紙
占地:232平方米
15萬左右新中式二層別墅設計圖平面圖,占地110平米左右
占地:110平方米
110平方米新農村三層別墅設計圖,含外觀效果圖
占地:109平方米
11×10造價25萬帶神位平頂三層自建房設計圖
閱讀次數:29678次
2021年最流行的10套經典農村別墅,最愛那一套?
閱讀次數:25940次
進深8.5米,開間12米,帶堂屋的樓房設計圖怎么做?
閱讀次數:23817次
18萬搞定的農村二層別墅,詳細施工過程實拍!含別墅設計圖!
閱讀次數:17744次
5款帶落地窗的農村別墅,大氣的別墅就應該是這個樣子
閱讀次數:17217次
15套2017年最新潮二層農村別墅,這樣蓋既實用又上檔次!
閱讀次數:12834次
2021農村建的最多的2款二層小別墅戶型,爆款是有理由的
閱讀次數:11876次
農村自建房這樣預埋水電管,老師傅說規范又實用
閱讀次數:11471次
9X12米二層農村別墅,不超過規定面積還能有小院
閱讀次數:10618次
農村自建房打地基的費用是多少,需要注意哪些問題?
閱讀次數:10549次
