
|
江蘇泰州兄弟倆農村自建別墅,內部裝修奢華上檔次,鄰居們都羨慕瘋了~ 房屋設計的南立面,外觀偏歐式風格,入戶門口的羅馬柱設計更是高端大氣,彰顯品位。燙金的浮雕只是一點就讓整個房屋頓有華貴之感,拱形窗三層合一整體感更強。 之前的老房子
兄弟倆還記錄下了整個建房過程:
房屋基礎
二樓樓板鋼筋捆扎 樓板鋼筋捆扎也是整整齊齊,相信這質量絕對沒得說。
二樓砌墻
澆筑三樓的樓板
三樓砌墻
屋頂模板
屋頂澆筑完成
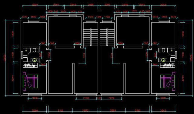
房子的平面設計圖
裝修好別墅外觀的樣子
這是后院
再來看看內部裝修吧,也真是豪華得沒法說了~
客廳挑空
書房
二樓會客廳
二樓臥室
轉載請注明出自別墅設計網:http://www.bjcyqiyejia.com/ 千套別墅設計帶別墅圖片 |

新款三層豪華大氣歐式別墅設計圖,3種戶型設計方案
占地:125平方米左右
帶車庫現代三層房屋別墅設計圖,占地110平米左右,功能齊全
占地:110平米
蓋別墅圖紙新農村簡歐二層房屋設計圖,12米×12米左右
占地:128平方米左右
12×11米兩層農村建房圖紙,農村建房最佳戶型,簡單的風格
占地:140平方米
好看的三層樓別墅圖片及全套建筑施工設計圖紙
占地:多戶型可選
豪華高端三層帶地下室別墅設計圖,可帶電梯
占地:210平方米
歐式大戶型三層農村房屋設計圖紙,歐式住宅圖推薦
占地:178平方米
簡單農村自建二層樓房設計圖,南北通透
占地:140平方米
鄉下120平米二層樓房設計圖,23萬就可以建漂亮別墅
占地:120平方米
2021最新兄弟簡歐雙拼別墅設計圖紙,單戶130平米左右
占地:260平方米
鄉下建房一層平房設計圖紙及戶型圖,占地150平米左右
占地:150平方米
120平現代實用三層別墅房屋設計圖,含外觀效果圖
占地:120平方米
左右對稱的歐式高端三層別墅設計圖,外觀氣派、豪華
占地:200平方米
三層復式別墅設計圖紙(含效果圖),復式住宅設計圖精選
占地:147.7平方米
農村15萬元一層半小樓圖,最新的戶型設計
占地:150平方米
三層現代平頂別墅,簡約時尚百看不厭,外觀到布局都令人驚艷!
占地:125.142平方米
農村三層雙拼別墅設計圖,帶外觀效果圖,推薦
占地:190平方米
農村4間3層樓房設計圖,帶車庫,挑空客廳,坡屋頂設計
占地:160平方米
二層小型簡單四合院設計圖,戶型方正,左右對稱,傳統文化的傳
占地:470平方米
80平方米二層房屋設計圖,造價10萬左右
占地:80平方米
11×10造價25萬帶神位平頂三層自建房設計圖
閱讀次數:29678次
2021年最流行的10套經典農村別墅,最愛那一套?
閱讀次數:25940次
進深8.5米,開間12米,帶堂屋的樓房設計圖怎么做?
閱讀次數:23817次
18萬搞定的農村二層別墅,詳細施工過程實拍!含別墅設計圖!
閱讀次數:17744次
5款帶落地窗的農村別墅,大氣的別墅就應該是這個樣子
閱讀次數:17217次
15套2017年最新潮二層農村別墅,這樣蓋既實用又上檔次!
閱讀次數:12834次
2021農村建的最多的2款二層小別墅戶型,爆款是有理由的
閱讀次數:11876次
農村自建房這樣預埋水電管,老師傅說規范又實用
閱讀次數:11471次
9X12米二層農村別墅,不超過規定面積還能有小院
閱讀次數:10618次
農村自建房打地基的費用是多少,需要注意哪些問題?
閱讀次數:10549次
