
|
"歐美"風格的別墅,一直很受我們國人的追捧,甚至越來越熱門,該種風格的別墅極具現代色彩,摒棄了原先別墅戶型的笨重、呆板感,賦予房屋氣宇軒昂、靈動的建筑形態。 今天給樓粉們介紹的是一款3層農村經典別墅戶型,無論是工藝還是造型都是首屈一指。 效果圖
戶型基本信息 開間:16.1米,進深:14.4米 占地面積:182.36平方米 建筑面積:466.23平方米 建筑高度:13.1米 結構類型:框架結構 外觀點評: 別墅外觀采用的是三色搭配,其中兩色為近色,屋檐是磚紅色的瓦片,一層外墻貼的是深黃色的文化石,二層和部分羅馬柱用的米黃色噴漆,兩近色的使用不會產生跳色的反差感,使別墅整體顯得更加“雍容華貴”。 一層平面圖 一層客廳挑空,落地窗設計增加了通光性,入門玄關有隔開,樓梯設在客廳一側,使客廳看起來更加寬敞,設有老人間,上衛生間比較方便。
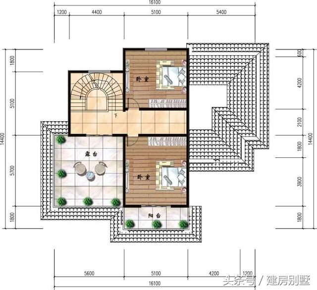
二層平面圖 二層因為一層客廳挑空的原因,占用部分面積,所以房間并沒有設計很多,充分利用有限的空間進行布局,客廳、陽臺、露臺一個不落,旋轉樓梯的設計更是加分項,有了旋轉樓梯房子才是豪華別墅嘛。
三層的面積在一二層的基礎上減少了一小半,設計了兩個獨立的臥室,不帶衛生間,比較適合用來做客房之類的,比較符合農村那邊的習俗,衛生間不宜太多。
別墅主體造價參考:37萬左右,具體造價以當地物價為準。 整體點評:有人說好看的別墅即豪華別墅,就意味著要花幾百萬,但是這套別墅戶型,外觀大氣,但是構造簡單,造價不高。不論是外觀和內在布局,都是一款非常不錯的戶型圖紙。 轉載請注明出自別墅設計網:http://www.bjcyqiyejia.com/ 千套別墅設計帶別墅圖片 |

二層新農村自建房設計圖,帶外觀效果圖
占地:140平方米
三層農村自建別墅設計圖紙及效果圖,占地110平米,外觀精致又大
占地:110平方米
簡單實用新農村三層住宅房屋設計圖,時尚大氣,低調
占地:140平方米
歐式三層豪宅樓設計圖紙及外觀效果圖,占地180平左右
占地:177.82平方米
中國最美的四合院別墅設計圖方案,復式挑空客廳戶型
占地:343.57平方米
新款鄉村二層半別墅設計圖紙帶效果圖,三層別墅外觀圖片大全
占地:108.795平方米
帶雙車庫的新中式二層四合院別墅設計圖,戶型布局實用
占地:321平方米
四層簡單新農村房屋設計圖紙,造價低,適合農村自建
占地:多種戶型
歐式豪華三層別墅設計圖,占地面積170平米,高端大氣帶露臺
占地:170平方米
二層農村自建小別墅設計圖,歐式風格,占地160平方米
占地:160平方米
兩層20萬農村自建房設計圖,經典農村建房款式,越看越有韻味
占地:160平方米
20萬農村自建三層別墅設計圖,外觀美觀,戶型實用
占地:105平方米
農村簡單雙拼小戶型,簡單適用,客廳中空,總占地210平方米
占地:210平方米
帶車庫簡約二層小別墅房屋設計圖紙,占地120平米,彎彎的樓梯打
占地:120平方米
170平方米新農村現代樓中樓三層別墅設計施工圖紙及效果圖
占地:170平方米
140平一層平房別墅設計圖,兩客廳兩衛四臥室
占地:140平方米
帶車庫,帶露臺的三層復式樓房設計圖,新農村房屋方案推薦
占地:140平方米
簡單時尚二層住宅設計圖紙,簡單的設計,不平凡的視覺感受
占地:110平方米
時尚一層別墅圖,一層這樣蓋房最漂亮
占地:160平方米
簡簡單單的二層樓房的設計圖,24萬就能搞定
占地:120平方米
11×10造價25萬帶神位平頂三層自建房設計圖
閱讀次數:29678次
2021年最流行的10套經典農村別墅,最愛那一套?
閱讀次數:25940次
進深8.5米,開間12米,帶堂屋的樓房設計圖怎么做?
閱讀次數:23817次
18萬搞定的農村二層別墅,詳細施工過程實拍!含別墅設計圖!
閱讀次數:17744次
5款帶落地窗的農村別墅,大氣的別墅就應該是這個樣子
閱讀次數:17217次
15套2017年最新潮二層農村別墅,這樣蓋既實用又上檔次!
閱讀次數:12834次
2021農村建的最多的2款二層小別墅戶型,爆款是有理由的
閱讀次數:11876次
農村自建房這樣預埋水電管,老師傅說規范又實用
閱讀次數:11471次
9X12米二層農村別墅,不超過規定面積還能有小院
閱讀次數:10618次
農村自建房打地基的費用是多少,需要注意哪些問題?
閱讀次數:10549次
