
|
雖說現在蓋房子,很多人都想往高了蓋,或者是大,豪氣,奢華,卻很少有人去自建平層別墅,認為這樣既浪費時間,又浪費土地,一點都不劃算,其實不然,平層別墅最適合作為養老居住,現在農村年輕人大多都出去打工了,只有年邁的老父親在這里,所以還是蓋個平層最合適,造價低又省錢。
平面布局圖: 平層對于內在布局,還是以精煉實用為主,美化裝飾什么的,能不做就不做,這倒是很符合我們農村的生活習慣。
戶型二:
平面布局圖: 這套戶型占地16X15米,四間臥室,主臥還帶有火炕設計,只有住過火炕,才知道空調的沒用。
戶型三: 雖說這第三套戶型跟第二套相差無二,但是內在布局可是區別的很厲害!
平面布局圖: 這個戶型在客廳的位置做了神龕,方便家中有信仰的人在這里朝拜,四間臥室一間書房的設計也很實用,穩中求精,僅需15萬的造價也令其成為了不二選擇。
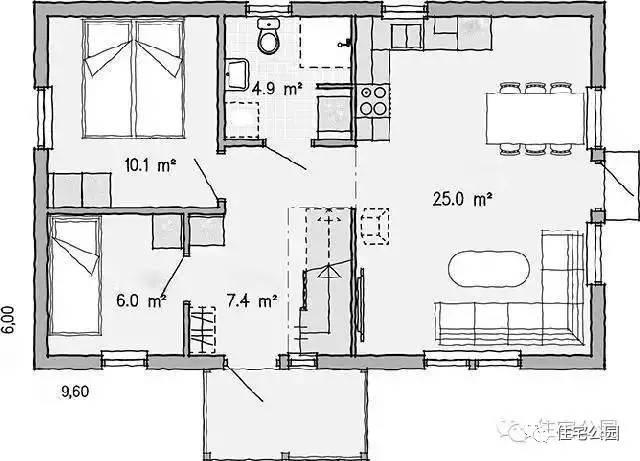
戶型四:
平面布局圖: 別墅內在稍顯粗糙,為了加大臥室與其它功能房間的居住面積,而相應的縮小了其余空間,嚴格意義上來說,這套房子只屬于兩個人生活。
戶型五:
這最后一套房屋設計圖,占地9.5X8.2米,雙臥室大客廳,雙入戶門,所有的設計都很顯別致。
轉載請注明出自別墅設計網:http://www.bjcyqiyejia.com/ 千套別墅設計帶別墅圖片 |

140平方米歐式三層別墅建筑設計圖紙,復式結構
占地:140平方米
50萬農村自建三間三層別墅設計圖,占地130平米左右
占地:135平方米
農村兩間三層房屋設計圖,含外觀圖片
占地:120平方米
小型三層別墅cad建筑圖紙帶效果圖,帶屋頂露臺
占地:101平方米左右
農村三層樓房圖造價26萬,客廳中空,占地90平米
占地:90平方米
農村4開間二層別墅設計圖,帶堂屋帶露臺,進深9米
占地:126平方米左右
兩層半新農村別墅設計圖紙,CAD設計圖+高清效果圖
占地:90平方米
200平米2層別墅設計圖,外觀圖配色清新淡雅
占地:200平方米
100平客廳挑高三層樓房設計圖,復式結構
占地:100平方米
客廳中空三層復式別墅房屋設計圖,帶外觀效果圖
占地:145平方米
農村三間兩層樓房設計圖,帶外觀效果圖
占地:140平方米
135平鄉村三層復式樓房設計圖,自建房推薦
占地:135平方米
新農村小開間三層樓房設計圖,占地100平米左右
占地:多種戶型可選
南方新農村三層樓房設計圖紙,帶房屋效果圖
占地:110平方米
230平方米新農村二層自建別墅設計圖紙帶外觀圖,20X11米
占地:227平方米
140平方米三層半新農村房屋別墅設計圖,帶車庫
占地:140平方米
最美中式農村別墅二層三間的房子圖,帶土灶房,娛樂室,大露臺
占地:180平方米
農村一層7字型平房別墅設計圖,“L”自行戶型,外觀簡約低調
占地:213.39平方米
三層帶車庫樓中樓建房別墅圖紙,占地130平米左右,戶型室內布局
占地:130平方米
鄉下一層自建養老平房戶型圖及全套圖紙,占地面積200左右
占地:200平方米
11×10造價25萬帶神位平頂三層自建房設計圖
閱讀次數:29678次
2021年最流行的10套經典農村別墅,最愛那一套?
閱讀次數:25940次
進深8.5米,開間12米,帶堂屋的樓房設計圖怎么做?
閱讀次數:23817次
18萬搞定的農村二層別墅,詳細施工過程實拍!含別墅設計圖!
閱讀次數:17744次
5款帶落地窗的農村別墅,大氣的別墅就應該是這個樣子
閱讀次數:17217次
15套2017年最新潮二層農村別墅,這樣蓋既實用又上檔次!
閱讀次數:12834次
2021農村建的最多的2款二層小別墅戶型,爆款是有理由的
閱讀次數:11876次
農村自建房這樣預埋水電管,老師傅說規范又實用
閱讀次數:11471次
9X12米二層農村別墅,不超過規定面積還能有小院
閱讀次數:10618次
農村自建房打地基的費用是多少,需要注意哪些問題?
閱讀次數:10549次
