
|
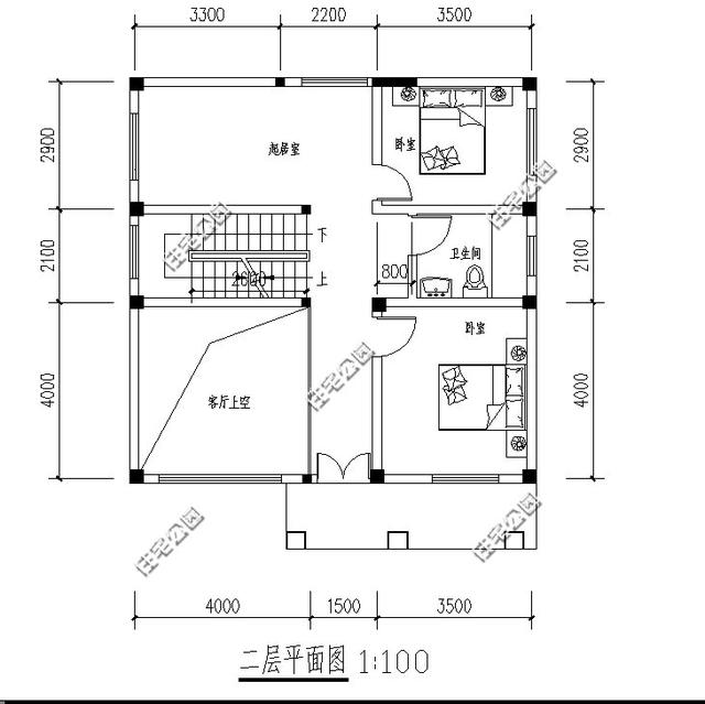
俗話說,蘿卜白菜,各有所愛。一個人對相同的事物可能也有不同的看法,就拿下面這個歐式的小別墅來說吧,羅馬柱、唯美落地窗、大露臺,時尚而接地氣。就是這樣的一個小戶型,大家可能對它的內部布局也有不同的看法,大家看看下面樓房設計圖的兩個設計方案,哪個更適合你呢?
此戶型是個很實用的戶型,它是一個挑空客廳的設計,空間通透明亮,視野開闊,一層除了客廳、廚房、餐廳外,還有兩個臥室;
三層就以臥室為主了,它和二層戶型相似,有三個臥室和一個大露臺,露臺可做休閑平臺,也可以晾曬,在上面擺放些綠色盆栽,環境會更加。
方案二: 這是方案二的設計,它的一層和方案一一樣,三層東北角的臥室比方案一小了些,沒有了中間的緩沖,但是變得更加方正、整潔了。 最大的不同就在于第二層的設計,這套方案設計師更加注重家人一起共度的起居生活,將起居室擴大,空間大,家人聚在一起會更加舒適。
這兩套方案,您更愛那一套呢? 轉載請注明出自別墅設計網:http://www.bjcyqiyejia.com/ 千套別墅設計帶別墅圖片 |

150平農村二層復式別墅房屋設計方案圖,帶外觀效果圖片
占地:150平方米
大平方大面積別墅設計方案圖,樓中樓客廳中空
占地:247平方米
造價40萬三層大氣自建房設計圖紙,鄉村別墅建造圖
占地:40萬
挑空客廳戶型歐式二層別墅設計圖紙,高端大氣帶車庫
占地:236.09平方米
三層農村自建別墅設計圖紙及效果圖,占地110平米,外觀精致又大
占地:110平方米
復式三層帶車庫簡歐小別墅設計圖,農村三層房屋設計圖
占地:126平方米
農村二層帶車庫樓房設計圖,帶外觀效果圖片
占地:125平方米
180多平二層現代風格自建房屋設計圖紙帶外觀圖
占地:187平方米
農村10萬元一層小別墅設計圖,農村一層自建房屋設計圖
占地:多種戶型
2021最新兄弟簡歐雙拼別墅設計圖紙,單戶130平米左右
占地:260平方米
農村120平米三間三層樓房設計圖紙,農村理想住房設計圖
占地:120平方米
帶雙車庫的新中式二層四合院別墅設計圖,戶型布局實用
占地:321平方米
農村大戶型中式二層四合院別墅設計圖含外觀效果圖,戶型經典、
占地:464平方米
高端三層獨棟歐式別墅效果圖,帶大衛生間,CAD全套施工設計圖
占地:158平方米
120平米三層別墅房屋設計圖,帶車庫,帶閣樓
占地:120平方米
現代三層農村房屋設計圖紙及效果圖,帶全套cad建筑圖
占地:95平方米
140平方米歐式三層別墅建筑設計圖紙,復式結構
占地:140平方米
帶車庫四層別墅外觀效果圖及設計圖紙,戶型方正通透
占地:115平方米
200平方米穩重大氣三層雙拼別墅建筑設計圖紙,含效果圖19.04米
占地:200平方米
農村兩層半樓房設計圖,平面功能分區明確,布置合理
占地:180平方米
11×10造價25萬帶神位平頂三層自建房設計圖
閱讀次數:29678次
2021年最流行的10套經典農村別墅,最愛那一套?
閱讀次數:25940次
進深8.5米,開間12米,帶堂屋的樓房設計圖怎么做?
閱讀次數:23817次
18萬搞定的農村二層別墅,詳細施工過程實拍!含別墅設計圖!
閱讀次數:17744次
5款帶落地窗的農村別墅,大氣的別墅就應該是這個樣子
閱讀次數:17217次
15套2017年最新潮二層農村別墅,這樣蓋既實用又上檔次!
閱讀次數:12834次
2021農村建的最多的2款二層小別墅戶型,爆款是有理由的
閱讀次數:11876次
農村自建房這樣預埋水電管,老師傅說規范又實用
閱讀次數:11471次
9X12米二層農村別墅,不超過規定面積還能有小院
閱讀次數:10618次
農村自建房打地基的費用是多少,需要注意哪些問題?
閱讀次數:10549次
