
|
今天小樂為您分享的是一座湖北某地的農村二層樓房設計圖,別墅屬于歐式風格,雖然沒有完全竣工,但我們已經能夠感受到他的奢華。
門斗實拍 別墅門斗寬大,西式立柱穩重大氣,在住宅正面起主要的裝飾作用。
屋檐實拍 建筑屋檐向外平緩延伸,處理精致,采用磚紅色,與別墅米白色墻體相搭配,提升了別墅色彩明艷度而又不失莊重。
院落實拍 別墅正門兩側預留出兩個弧形花池,住戶種植自己喜歡的花草,每日精心呵護,不僅裝飾了住宅,也為生活增添了趣味。
別墅兩側 別墅西側與鄰居住宅留出空隙,方便排水,也可以在墻上開窗,保障房間的采光及通風。
別墅東側建有一排小配房,可供住戶歸放雜物。
住宅窗套色彩素雅,線條簡單,可能不會引人關注卻能為整個外觀提升氣質,給人一種細膩的感覺,這也是歐式別墅不可或缺的細節之一。
菜園實拍 也許在國外大家只會想到如何經營自己的花草,可在國內,種植一片小菜園是國人的習慣,體驗生活并與家人品嘗自己的勞動成果是一種幸福。
屋后實拍 別墅后側設計富有層次,臨街開窗不受阻礙,二、三兩層的陽臺,與室外形成良好的溝通。
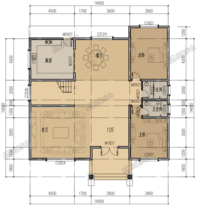
平面圖 一層客廳、主臥向陽,廚房處開后門,便于處理廚余垃圾,正門與餐廳窗戶相對,南北通透。
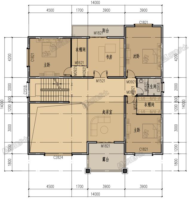
▲ 一層平面圖 二層書房連通陽臺,遠眺可緩解眼部疲勞,呼吸室外新鮮空氣。
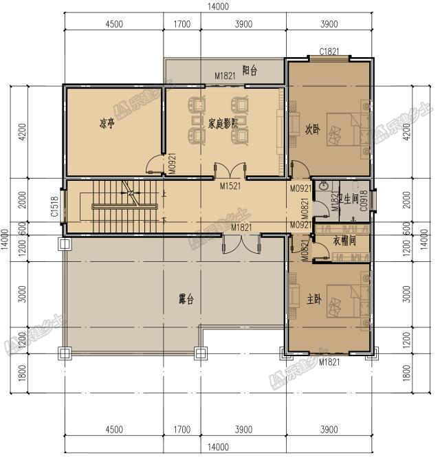
▲ 二層平面圖 三層除主次臥外,有涼亭,家庭影院,露臺等可供家庭成員休閑,或親友聚會娛樂。
▲ 三層平面圖 自建房設計圖相對自由,可以在周邊環境和法律允許的條件下根據自己的喜好來設計,這所別墅設計不啰嗦,也很有歐式范,在施工上并沒有應付了事,很好的展現出了設計原有的樣子,小樂精心挑選,以供大家參考。 轉載請注明出自別墅設計網:http://www.bjcyqiyejia.com/ 千套別墅設計帶別墅圖片 |

300平大戶型豪華三層別墅設計圖,帶總統套房
占地:300平方米
215平方米新農村一層房屋建筑設計施工圖,17x12米15萬
占地:215平方
100平方米自建三層半別墅設計圖紙,帶地下車庫
占地:100平方米
100平方米左右新農村二層房屋設計建筑CAD圖紙帶外觀效果圖
占地:102平方米
2021年獨棟三層雙拼別墅戶型圖,總占地面積300平方米左右
占地:300平方米
三層新農村140平方米房屋設計圖紙,全套施工圖及效果圖
占地:140平方米
新中式一層別墅設計圖紙,農村自建平房戶型方案圖
占地:183.7平方
120平米農村三層房屋設計圖,客廳中空,戶型合理
占地:120平方米
兩戶250平方米農村豪華歐式三層兄弟雙拼別墅設計圖
占地:251平方米
175平方米歐式三層雙拼別墅設計施工圖紙及效果圖,12x13米
占地:175平方米
150平歐式別墅房屋設計圖,外觀精美、氣派
占地:150平方米
三層農村自建房別墅設計圖紙,大廳中空,外觀高端大氣
占地:230平方米
歐式風格高檔三層別墅設計圖紙,帶高清外觀效果圖
占地:105平方米
經濟實用型二層農村小別墅設計圖,造價25萬內,外觀看起來時尚
占地:120平方米
兩層15萬農村自建房設計圖,農村蓋房設計大全圖
占地:130平方米
二層半農村小別墅設計方案圖,南方設計圖精選
占地:82平方米
農村四間兩層樓房設計圖,含外觀圖片
占地:138平方米
兄弟三層雙拼房屋設計圖,帶效果圖,戶型好
占地:256平方米
帶車庫現代三層樓房設計圖,外觀效果圖時尚、美觀
占地:160平方米
簡單的二層樓房圖片及設計方案,自建樓房必看
占地:140平方米
11×10造價25萬帶神位平頂三層自建房設計圖
閱讀次數:29678次
2021年最流行的10套經典農村別墅,最愛那一套?
閱讀次數:25940次
進深8.5米,開間12米,帶堂屋的樓房設計圖怎么做?
閱讀次數:23817次
18萬搞定的農村二層別墅,詳細施工過程實拍!含別墅設計圖!
閱讀次數:17744次
5款帶落地窗的農村別墅,大氣的別墅就應該是這個樣子
閱讀次數:17217次
15套2017年最新潮二層農村別墅,這樣蓋既實用又上檔次!
閱讀次數:12834次
2021農村建的最多的2款二層小別墅戶型,爆款是有理由的
閱讀次數:11876次
農村自建房這樣預埋水電管,老師傅說規范又實用
閱讀次數:11471次
9X12米二層農村別墅,不超過規定面積還能有小院
閱讀次數:10618次
農村自建房打地基的費用是多少,需要注意哪些問題?
閱讀次數:10549次
