
|
自建房在家居生活中了解得越來越廣泛,市場上自建房的戶型設計也是種類日益繁多,給消費者提供了很多的選擇,但設計的質量參差不齊,因此戶主們在選擇戶型的時候,一定要擦亮眼睛。今天給大家推薦的這款歐式別墅圖片大全不管是外觀還是內部布局都很適合農村建房,我們趕緊來看看吧。
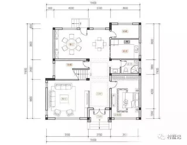
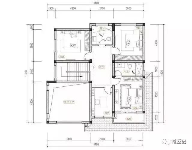
戶型基本信息 開間:11.4米,進深:11.6米 占地面積:128.5平方米 建筑面積:227平方米 磚混結構,參考造價25萬
側面圖 需要圖紙的可以看【建房說】,或者進頭條號主頁私信小編。
俯視圖 戶型平面圖
一層門廳、客廳、廚房、餐廳、兩個儲藏室、一個公共衛生間、父母房;入戶即門廳,符合農村的風俗習慣。
二層設有主臥帶衛生間、兩個次臥、次衛、過廳、書房、露臺;二層布局簡單實用,既能滿足自家的居住需求,又能方便招待客人留宿。 轉載請注明出自別墅設計網:http://www.bjcyqiyejia.com/ 千套別墅設計帶別墅圖片 |

時尚大方的農村二層自建房屋設計圖紙,占地120平米左右
占地:120平米
簡歐復式四層別墅房屋設計圖,外觀圖高端、大氣
占地:143平方米
造價15萬經濟美觀一層農村別墅設計圖,占地150平米
占地:150平方米
135平鄉村三層復式樓房設計圖,自建房推薦
占地:135平方米
新農村三層豪華歐式別墅復式高端自建房設計圖紙及效果圖
占地:多種戶型
豪華歐式三層別墅住宅設計圖紙,占地面積150平方米
占地:150平方米
160平方米新農村三層半別墅設計圖11X16米65萬以內
占地:160平方米
300平四層別墅房屋設計圖,含外觀效果圖,大面積、多臥室
占地:300平方米
農村120平方房子設計圖,三層房屋設計圖精選
占地:120平方米
占地130平方米二層鄉村別墅自建房圖紙設計圖,效果圖好看
占地:131.658平方米
140平方米三層半新農村房屋別墅設計圖,帶車庫
占地:140平方米
農村二層小洋樓設計圖,帶外觀效果圖,外觀新穎,漂亮
占地:130平方米
2021二層農村新款別墅圖片及施工圖,新中式風格古典大氣
占地:200平方米
鄉村中式四合院二層別墅設計圖,中式韻味十足
占地:223平方米左右
新中式三層樓房設計圖紙,帶地下室,地下車庫,帶電梯
占地:230平方米
三十萬農村別墅設計圖帶外觀圖片,30萬造價別墅展示
占地:125平方米
農村兩間三層房屋設計圖,含外觀圖片
占地:120平方米
180平方米漂亮大氣三層雙拼別墅設計圖,自建房圖片
占地:186平方米
簡單漂亮實用的三層自建房設計圖,帶露臺,占地170平方米
占地:170平方米
好看又簡單的二層樓房設計圖紙,戶型還實用
占地:150平方米
11×10造價25萬帶神位平頂三層自建房設計圖
閱讀次數:29678次
2021年最流行的10套經典農村別墅,最愛那一套?
閱讀次數:25940次
進深8.5米,開間12米,帶堂屋的樓房設計圖怎么做?
閱讀次數:23817次
18萬搞定的農村二層別墅,詳細施工過程實拍!含別墅設計圖!
閱讀次數:17744次
5款帶落地窗的農村別墅,大氣的別墅就應該是這個樣子
閱讀次數:17217次
15套2017年最新潮二層農村別墅,這樣蓋既實用又上檔次!
閱讀次數:12834次
2021農村建的最多的2款二層小別墅戶型,爆款是有理由的
閱讀次數:11876次
農村自建房這樣預埋水電管,老師傅說規范又實用
閱讀次數:11471次
9X12米二層農村別墅,不超過規定面積還能有小院
閱讀次數:10618次
農村自建房打地基的費用是多少,需要注意哪些問題?
閱讀次數:10549次
