
|
看著身邊的人都建起了別墅,說不羨慕那是騙人的,無奈囊中羞澀,建不起百八十萬的豪宅,其實不用建個上百萬的,30萬就可以搞定的,樓樓給大家推薦三款。 戶型一: 效果圖
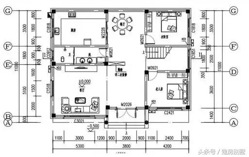
戶型基本信息:開間12米,進深10米,占地面積121平方米,建筑面積221平方米,框架結構 一層平面圖:
二層平面圖:
戶型二: 效果圖
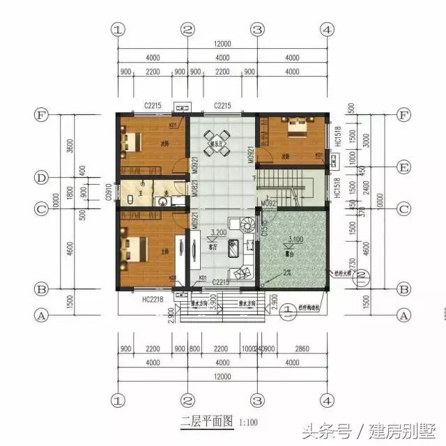
戶型基本信息:開間13.3米,進深11,占地面積143平方米,磚混結構 一層平面圖:
二層平面圖:
戶型三: 效果圖
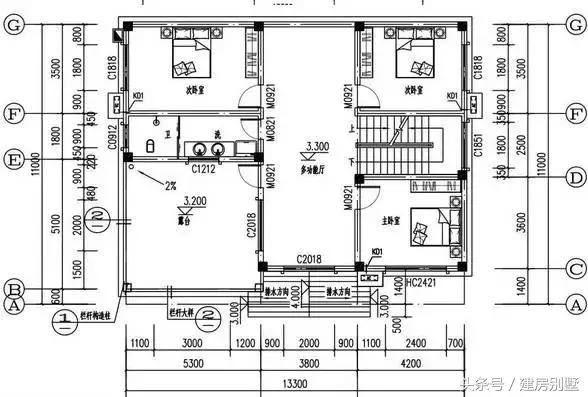
戶型基本信息:開間13米,進深11米,占地面積150平方米,建筑面積290平方米,cad別墅圖紙下載 一層平面圖:
二層平面圖:
三個戶型都是經典戶型,造價經濟,布局合理,特別適合在農村老家建,再也不用羨慕別人家的啦! 轉載請注明出自別墅設計網:http://www.bjcyqiyejia.com/ 千套別墅設計帶別墅圖片 |

網紅款兩層別墅圖紙設計圖,外觀簡單好看,后面不開窗
占地:171平方米左右
二層四間樓房設計圖及效果圖片大全,帶露臺,外觀時尚
占地:150平方米
140平方米三層別墅設計圖紙,帶屋頂花園
占地:142平方米
二層農村自建小別墅設計圖,歐式風格,占地160平方米
占地:160平方米
面寬13米三層新中式獨棟別墅設計圖,復式自建房戶型方案
占地:201.25平方米
高端歐式三層別墅設計圖紙,歐式別墅設計效果圖
占地:176平方米
帶車庫二層165平別墅房屋設計圖,含效果圖
占地:165平方米
2021二層農村新款別墅設計圖,帶車庫,帶鍋爐房
占地:180平方米
經典小戶型二層新農村房屋設計圖紙,客廳中空,造價20萬
占地:94平方米
17X12米三層雙拼別墅自建房設計圖,歐式風格,戶型方正
占地:190平方米
最新農村20萬元二層半別墅設計圖,占地僅110多平
占地:110平方米
鄉村二層簡歐小戶型別墅圖設計,占地90平方米左右
占地:92.12平方米
農村蓋房設計大全一層房子的設計圖紙,色調清新靚麗
占地:220平方米
120平面三層鄉村樓房設計圖及效果圖,歐式風格
占地:120平方米
外觀簡潔,戶型合理的二層小別墅設計圖,還帶露臺
占地:120平方米
300平方二層別墅四合院設計圖紙方案(效果圖+施工圖)
占地:332平方米
一層5間歐式平房小洋樓建筑設計圖紙,大戶型一層別墅戶型
占地:216平方米
新中式三層樓房設計圖,外觀精致布局也是相當的樸實
占地:140平方米
新農村二層半房屋設計圖紙及效果圖,別墅設計圖精選
占地:113平方米
經濟實用二層樓房設計圖紙,功能布局多,12×11米
占地:130平方米
11×10造價25萬帶神位平頂三層自建房設計圖
閱讀次數:29678次
2021年最流行的10套經典農村別墅,最愛那一套?
閱讀次數:25940次
進深8.5米,開間12米,帶堂屋的樓房設計圖怎么做?
閱讀次數:23817次
18萬搞定的農村二層別墅,詳細施工過程實拍!含別墅設計圖!
閱讀次數:17744次
5款帶落地窗的農村別墅,大氣的別墅就應該是這個樣子
閱讀次數:17217次
15套2017年最新潮二層農村別墅,這樣蓋既實用又上檔次!
閱讀次數:12834次
2021農村建的最多的2款二層小別墅戶型,爆款是有理由的
閱讀次數:11876次
農村自建房這樣預埋水電管,老師傅說規范又實用
閱讀次數:11471次
9X12米二層農村別墅,不超過規定面積還能有小院
閱讀次數:10618次
農村自建房打地基的費用是多少,需要注意哪些問題?
閱讀次數:10549次
