
|
有人抱怨說自己老家地基有限,沒有別人家幾百上千的土地,地基小了建出來的別墅cad圖紙下載就不好看了嗎?可別太早下結論了哦,看看下面3款戶型,都是開間10米的小戶型。 戶型一效果圖:
戶型基本信息:開間10米,進深11.6米,占地面積:107.1平方米,建筑面積:269.2平方米,建筑高度:13米,磚混結構。 一層平面圖:
二層平面圖:
三層平面圖:
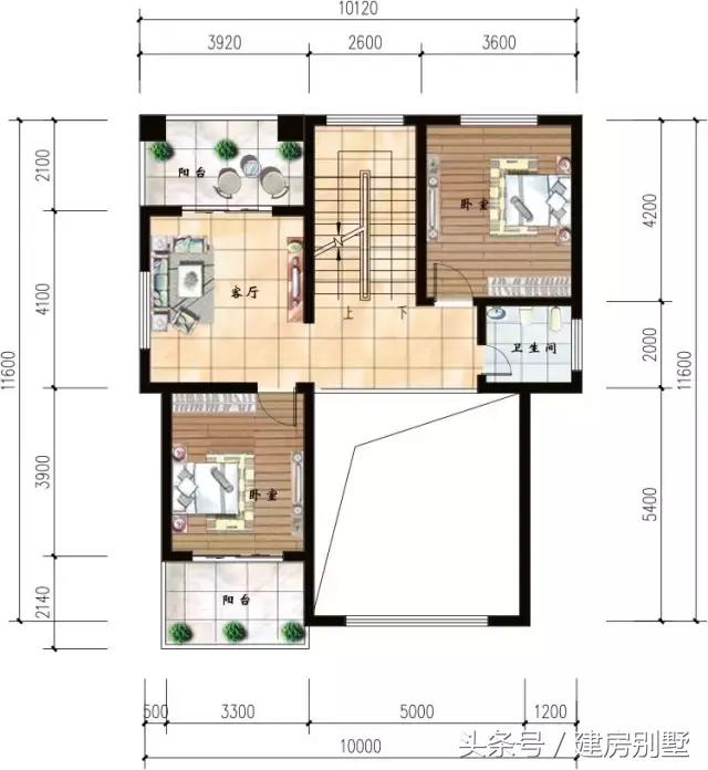
戶型二效果圖:
戶型基本信息:開間10米,進深10米,占地面積101.9平方米,建筑面積198.08平方米,建筑高度9.76米,磚混結構。 一層平面圖:
二層平面圖:
戶型三效果圖:
戶型基本信息:開間10米,進深10米,占地面積93.4平方米,建筑面積272.9平方米,建筑高度12.3米,框架結構。 一層平面圖:
二層平面圖:
三層平面圖:
小地基建房有很多好處,一方面面積小可以節約建房成本,另一方面設計緊湊更顯得溫馨,小的精致。 轉載請注明出自別墅設計網:http://www.bjcyqiyejia.com/ 千套別墅設計帶別墅圖片 |

復式三層帶車庫簡歐小別墅設計圖,農村三層房屋設計圖
占地:126平方米
最新農村三層樓房設計圖紙,客廳中空,采用暖黃色為主色
占地:160平方米
農村15萬元二層小樓設計圖,外觀簡潔、樸素,造價低
占地:138平方米
2021年新款別墅外觀圖及全套施工圖紙,占地面積13×10米
占地:130平方米
農村二層別墅設計圖,帶外觀效果圖,兄弟自建推薦
占地:多種戶型
兩層半新農村別墅設計圖紙,CAD設計圖+高清效果圖
占地:90平方米
新中式120平米農村20萬元二層小樓圖,外觀柔和而雅致
占地:120平方米
二層樓房設計圖,占地120平米左右,符合現代農村的建房政策
占地:120平方米
歐式四層(三層半)獨棟別墅設計圖復式,設計豪華時尚
占地:194平方米
10套農村經典二層樓房設計圖紙,多戶型,多尺寸,總有一款適合
占地:多種
大氣農村三層歐式雙拼別墅全套施工圖紙,帶堂屋設計,外觀圖片
占地:196.056平方米
180平方米農村二層別墅四合院建筑設計圖紙
占地:181平方米
110平左右農村復式二層小樓設計圖,外觀非常受歡迎
占地:112平方米
260平方米歐式四層別墅設計圖20X18米,造價108萬
占地:260平方米
鄉村仿古一層別墅圖片及設計圖,經典實用,占地170平
占地:170平方米
120平現代實用三層別墅房屋設計圖,含外觀效果圖
占地:120平方米
120平農村三層自建房屋設計圖,旋轉樓梯復式別墅戶型方案
占地:119.23平方米
200平米左右二層樓房設計圖,外觀看著舒服、布局住著坦然
占地:190平方米
簡約精致的二層房子設計圖,農村自建經濟實用
占地:89.76平方米
一層農村房子設計圖,含外觀效果圖,自建推薦戶型
占地:200平方米
11×10造價25萬帶神位平頂三層自建房設計圖
閱讀次數:29678次
2021年最流行的10套經典農村別墅,最愛那一套?
閱讀次數:25940次
進深8.5米,開間12米,帶堂屋的樓房設計圖怎么做?
閱讀次數:23817次
18萬搞定的農村二層別墅,詳細施工過程實拍!含別墅設計圖!
閱讀次數:17744次
5款帶落地窗的農村別墅,大氣的別墅就應該是這個樣子
閱讀次數:17217次
15套2017年最新潮二層農村別墅,這樣蓋既實用又上檔次!
閱讀次數:12834次
2021農村建的最多的2款二層小別墅戶型,爆款是有理由的
閱讀次數:11876次
農村自建房這樣預埋水電管,老師傅說規范又實用
閱讀次數:11471次
9X12米二層農村別墅,不超過規定面積還能有小院
閱讀次數:10618次
農村自建房打地基的費用是多少,需要注意哪些問題?
閱讀次數:10549次
