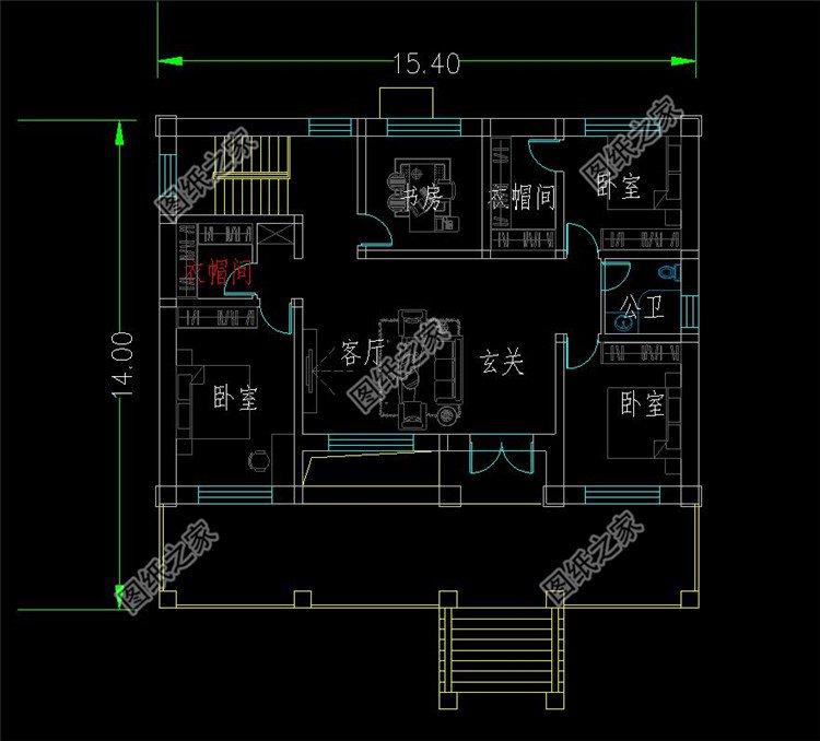
占地面積:15.4m*14m,165.56平方米;
建筑層高:二層(含架空層);
建筑高度:6.6米(含屋頂);
設計功能:
一層戶型:休閑區、廚房、餐廳、影音室、棋牌室、儲物室、酒窖、衛生間;
二層戶型:玄關、客廳、臥室(帶衣帽間)、臥室x2、書房、衣帽間、衛生間、露臺;




占地面積:15.4m*14m,165.56平方米;
建筑層高:二層(含架空層);
建筑高度:6.6米(含屋頂);
設計功能:
一層戶型:休閑區、廚房、餐廳、影音室、棋牌室、儲物室、酒窖、衛生間;
二層戶型:玄關、客廳、臥室(帶衣帽間)、臥室x2、書房、衣帽間、衛生間、露臺;











一、圖紙均為高清藍圖,包含全套設計圖,交給施工隊可直接建造;
二、圖紙每個數據都是環環相扣的,修改工作量大,還容易出錯,不支持修改服務;
三、如果您對圖紙的尺寸、戶型不滿意,我們可以按您的要求進行定制;
四、圖紙通俗易懂,只需按圖施工即可1比1還原效果圖,我們還提供在線指導服務。
爆款二層自建房別墅設計圖,不追求奢華,建個溫馨實用的家
造價:19萬
?13.5x9米這尺寸火了!好多人家照著建這款二層別墅,簡單實用
造價:19萬
可以傳家的新中式二層別墅,經典耐看,再過幾十年也不過時
造價:28萬
帶架空層的一層自建房太香了!防潮、停車、儲物全兼顧
造價:22萬
二層歐式農村小別墅設計圖,9.5米乘13米,戶型好到鄰居求圖紙
造價:19萬
全網都在抄的二層別墅!爆款12米面寬設計戶型太實用
造價:23萬
經濟、不張揚!簡單二層別墅設計圖,農村建房直接抄作業
造價:30萬
建房老師傅力薦!這塊二層簡歐設計圖,花錢少、顏值高,必火
造價:21萬
被包工頭夸爆的二層別墅戶型!建好未來幾年必火
造價:30萬
二層簡歐農房!經濟實惠+大氣耐看,20年后不落后
造價:18萬
帶開放式車庫的二層別墅!配土灶、室外樓梯,新穎還顯品味
造價:18萬
11.5米乘 11.5米自建房:兩層設計 + 戶型方正,誰看誰心動
造價:20萬
農村二層L戶型農村別墅!設計圖簡約時尚又大氣,住著超舒適
造價:24萬
廚房在前,簡約歐式二層農村自建別墅設計圖,戶型個性
造價:29萬
二層農村小別墅自建房設計圖,布局實用,占地150平
造價:30萬
二層復式農村豪宅別墅設計圖,挑空客廳旋轉樓梯高級感十足
造價:39萬
經濟實用二層農村自建房設計圖,新中式風格12x11米
造價:19萬
四開間二層別墅設計圖,造型精美經典舒適,火爆全村的戶型
造價:21萬
農村宅基地建房二層別墅設計圖,適合回鄉自建!
造價:20萬
二間二層小型別墅設計圖,美觀、經濟、實用!
造價:14萬
14米乘10米農村二層別墅新款,外觀對稱設計,經久耐看!
造價:28萬
農村兩開間農村別墅設計圖,典雅大氣,完全不輸大戶型
造價:19萬
12.5乘12米大氣優雅二層自建房設計圖,精美舒適布局實用
造價:30萬
占地200平農村二層自建房設計方案戶型,陽面臥室多
造價:32萬
90平農村自建房二層新款,占地不大但很實用,
造價:18萬
經典美式二層小別墅設計圖,回鄉建房不可不看的經典之作
造價:17萬
16米乘12米農村二層別墅設計圖,布局舒適寬敞、客廳挑空
造價:28萬
對稱設計二層歐式別墅設計圖,優雅時尚有品位
造價:24萬
兩間二層農村自建房設計圖,面積雖小功能齊全,布局緊湊。
造價:18萬
面寬13米方正戶型二層小別墅設計方案,南北通透采光好
造價:27萬
10萬農村別墅設計圖小戶型,經濟、耐看、實用
造價:12萬
農村15萬元二層小樓設計圖,15萬農村兩層小別墅圖片
造價:15萬左右
二層復式小別墅設計圖,樓中樓結構,外觀漂亮,簡單
造價:24-28萬
2026新款農村15萬元二層小樓圖,占地90平米左右
造價:15萬左右
120平方房子設計圖帶效果圖,農村自建房戶型推薦
造價:26~29萬
二層中式四合院別墅設計圖,經典、漂亮(全套施工圖)
造價:30萬-35萬
農村15萬元二層小樓圖,經濟實用小別墅設計圖
造價:15萬左右
經典小戶型新農村房屋住宅設計圖,10萬左右
造價:10萬左右
農村超級好看的現代風格兩層小樓圖,清新優雅
造價:25萬左右
農村25萬別墅款式二層自建房設計圖,外觀簡約大氣
造價:20萬左右
農村二層四合院設計圖,秒殺各種洋別墅
造價:25萬左右
農村二層小洋樓設計圖,帶外觀效果圖,外觀新穎,漂亮
造價:27~29萬
15萬左右新中式二層別墅設計圖平面圖,占地110平米左右
造價:15-20萬左右
農村自建二層樓房設計圖及效果圖,二層房屋圖推薦
造價:20萬左右
地中海風格二層別墅房屋設計圖,帶外觀效果圖
造價:25~29萬
新農村中式二層樓房設計圖紙及效果圖,125,150,170三個戶型可行
造價:20萬左右
100平方米左右新農村二層房屋設計建筑CAD圖紙帶外觀效果圖
造價:16萬左右
20萬左右歐式二層小別墅設計圖,100平米和130兩個戶型
造價:20萬左右
150平二層別墅房屋設計圖,現代風格,造型精致
造價:22~26萬
農村18萬元二層小樓圖,帶開放式車庫
造價:18萬左右
獨棟經濟型二層小別墅房屋設計圖,含全套施工圖效果圖
造價:20萬左右
農村二層半別墅圖片大全,二層半別墅設計圖推薦
造價:29~33萬
歐式小型二層別墅效果圖片,帶全套Cad別墅設計圖紙
造價:18萬
110平方米新農村二層別墅設計圖及效果圖,12.36x9.36米
造價:18萬
二層新農村自建房設計圖,帶外觀效果圖
造價:26萬左右
經典戶型二層農村小別墅設計圖,造價25萬內
造價:25萬以內
農村二層半樓房設計圖及效果圖,歐式風格
造價:30萬以內
現代二層樓房圖片造價25萬,含全套設計圖,風格獨特
造價:25萬左右
新農村歐式時尚二層別墅設計圖紙,120平方米自建房
造價:22萬左右
四合院別墅設計效果圖及平面圖,全套施工圖紙
造價:35萬-40萬
300平方二層別墅四合院設計圖紙方案(效果圖+施工圖)
占地:332平方米
帶車庫農村二層樓房設計圖,外觀漂亮,精致
占地:154平方米
帶閣樓的二層半別墅設計圖和效果圖,外飾簡單但不失奢華
占地:210平方米
美式田園二層別墅設計方案圖,全套設計圖+效果圖
占地:235平方米
16米X12米四開間二層別墅設計圖,造型美觀經濟實用
占地:198平方米
260平方米兩層帶車庫四合院房屋設計圖紙及效果圖
占地:260平方米
一層半中式合院別墅設計圖,帶配房,有庭有院有品位
占地:135平方米左右
鄉下一層門面二層別墅設計圖紙,帶門面的自建房方案
占地:198.4平方米
11×10米農村二層別墅圖,百平占地經典實用舒適大氣
占地:103.47平方米
小型四合院二層別墅設計圖方案,對稱設計,頂層大露臺
占地:114平方米
170平方米農村二層房屋設計施工圖,外觀圖時尚、好看
占地:172平方米
120平方米現代新農村二層自建房設計圖,造型時尚好看
占地:120平方米
雙拼小別墅設計圖紙(含效果圖),二層別墅設計方案精選
占地:130平方米
農村兄弟雙拼二層四合院別墅設計圖,戶型左右對稱
占地:430平方米
二層復式農村豪宅別墅設計圖,挑空客廳旋轉樓梯高級感十足
占地:215.43平方米
125平兩層別墅房屋設計圖,帶普通和復式兩個戶型
占地:125平方米
二層精美偏法式風格別墅設計圖,不但顏值高,品質還高
占地:154.17平方米
農村兩層新中式別墅圖紙設計圖,外觀圖片大氣,21萬左右
占地:108平方米
適合農村自建四合院圖片,中式二層四合院別墅設計施工圖紙
占地:232平方米
最接農村地氣的二層農村小別墅,造價30萬左右,經濟實用
占地:170平方米
