
|
農村自建房的戶型越來越多,尤其是近兩年隨著自建房的興起,農村自建房更是五花八門,各式各樣的都有,不過大多數都是采用歐式小別墅風格進行建設,簡約時尚成為了農村人的首選。
如果自己家中有一塊地,面積很大能夠得到審批的話,不妨考慮一下雙拼別墅,一塊地就能夠建兩棟別墅,何樂而不為呢?
今天小編給大家帶來的是湖北潘總的建房實拍,兩兄弟自建雙拼豪宅,在當地可是出了名的,不是他們多有錢,而是因為他們建的別墅戶型非常合理,是人們羨慕的對象,導致每天都有許多城里人前來參觀,恨不得門前的臺階都要踏壞了。
究竟這兩兄弟選擇怎樣的戶型別墅呢?趕緊一起來看一下吧!!!
首先我們來了解一下這款別墅的‘‘基本信息’’面寬:19米,進深:11.82m,總占地面積:225.05平方米,這么寬廣的面積修建兩棟別墅足以。可能人們看到這款別墅的外觀就會感受到一定造價不菲,但實際上這款別墅采用的是框架結構,外裝噴的真石漆因此既顯得高大尚,并且在材料上大大節約了成本,從地基到主體建成只用了50萬左右。兩兄弟分擔下來也不過每人25萬左右,這錢怎么算都花的值。
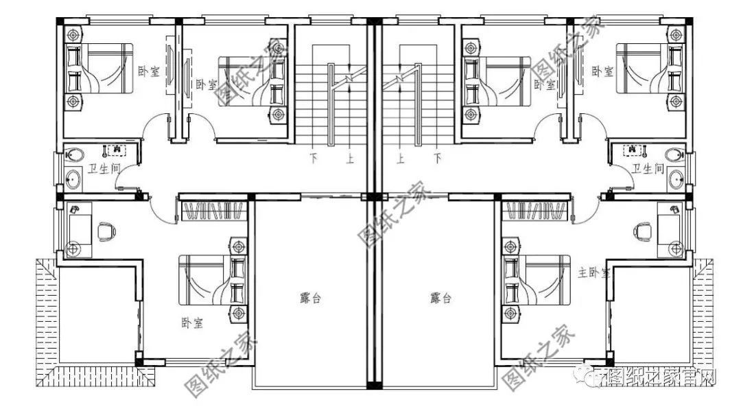
該款別墅外立面主要采用咖啡色磚瓦和米黃色真石漆,還有藍色琉璃瓦三種材料結合。外觀給人看上去清新自然,2層三角屋檐與露臺之間的對比形成了強烈的視覺沖擊,凸顯層次感。 平面布局:
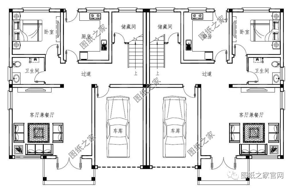
單戶 一層:客廳,車庫,廚房,儲物間,衛生間,臥室。 門前設計走廊方便晾曬衣物,同時又起到了室內室外一定的過渡作用,此款雙拼別墅中間設計為兩個車庫,既起到了分隔的作用,又不浪費面積。客廳兼餐廳的設計大大增添了室內的空間。在吃飯的同時還可以看電視,左上角設計有一間臥室,出門就是衛生間方便生活起居毗鄰是南北通透廚房的設計。
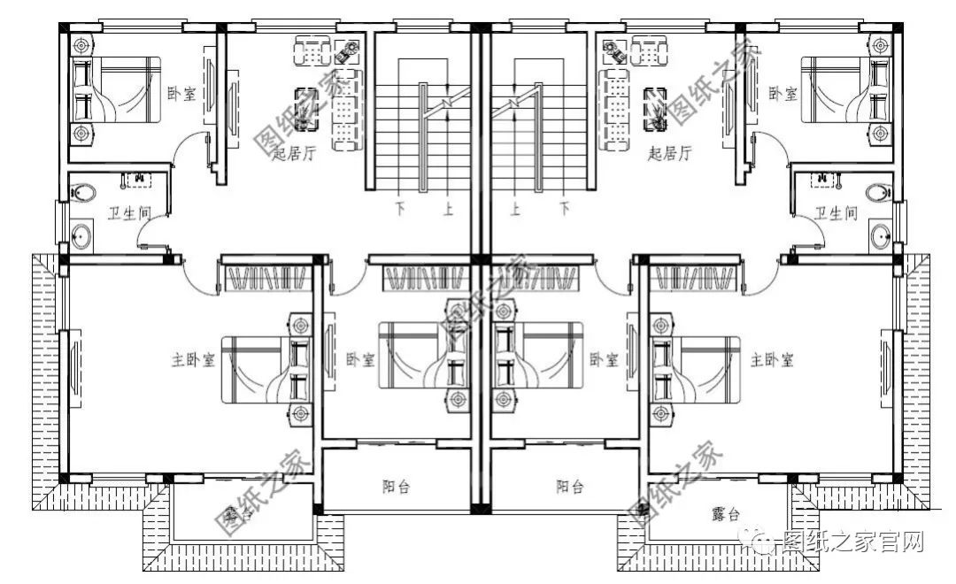
單戶 二層:臥室*3,衛生間,起居室,露臺,陽臺。 2層的設計布局情況大多是臥室。還有起居室圖為露臺陽臺在這里,值得一提的是露臺和陽臺的設計,露臺和陽臺的面積都比較寬廣,方便晾曬衣物,到了農作物豐收的季節也不用擔心沒地方晾曬。放假休閑時可以邀約親朋好友在露臺處擺放燒烤架,歡聚一堂。
單戶三層:臥室*3,衛生間,大露臺。 我們都知道農村人家庭人口相對比較多,因此潘先生將3層也設計了三間臥室,一是方便親朋好友偶爾來家中做客。二來是認為三層別墅更大氣豪華,三間臥室的布局只是暫定的,如果喜歡運動愛讀書的業主,可以將其中一間改成健身房或書房。
上圖就是潘總從毛坯建設好后,第一時間分享給小編的實體照片,不得不說潘先生找的施工隊還是比較牛,在短短的三個月時間內就將主體框架建好,而且還建得這般完美與效果圖完全沒有兩樣,確實值得敬佩
潘總的家四處沒有高樓遮擋陽光,四周都設有窗戶,可想而知室內的通透和采光有多好,這么豪華的別墅,也難怪親朋好友都上門來參觀。 在農村建一棟這樣的別墅,想不出名都難!
不知道各位看官是否喜歡這樣的別墅戶型呢,如果兄弟家庭還會建房的話,不妨考慮一下這款雙拼別墅,在農村建一棟,兄弟倆絕對是村中最靚的仔。 微信掃一掃二維碼,查看更多施工案例和全套圖紙!(或添加微信公眾號:tuzhi558)
轉載請注明出自別墅設計網:http://www.bjcyqiyejia.com/ 千套別墅設計帶別墅圖片 |

帶車庫現代三層房屋別墅設計圖,占地110平米左右,功能齊全
占地:110平米
新農村全套四層別墅設計圖紙占地面積:190平方米造價預算:42萬
占地:190平方米
帶地下室+挑空客廳,農村三層洋樓別墅誰家圖在
占地:97.74平方米
農村四層樓房外形設計圖,主臥配有陽臺和衣帽間還有衛生間
占地:126平方米
占地105平實用三層樓房別墅設計圖紙,造型方正簡單大氣
占地:105平方米
漂亮的二層中式現代別墅圖,配色非常的溫馨淡雅
占地:160平方米
16x14米三層雙拼別墅設計圖,外觀精致大氣內里實用,兄弟建房上
占地:217.28平方米
三層帶車庫樓中樓建房別墅圖紙,占地130平米左右,戶型室內布局
占地:130平方米
復式別墅新農村二層房屋設計圖紙,屋頂錯落有致
占地:157平方米
簡單大氣二層兄弟雙拼樓房設計圖,外觀簡約
占地:268平方米
兩層三間農村自建房圖,125平有7間臥室,全家人都能住得下
占地:125.34平方米
獨棟歐式三層農村實用樓房設計圖,外觀圖大氣,13×13米
占地:144.75平方米
17X12米三層雙拼別墅自建房設計圖,歐式風格,戶型方正
占地:190平方米
豪華別墅設計圖紙(含效果圖),三層歐式別墅方案精選
占地:117平方米
帶車庫二層別墅設計圖及效果圖,帶車庫的農村二層樓房推薦
占地:123平方米
農村三層15萬自建房圖,小戶型別墅設計方案圖
占地:60平方米
新款240平方米三層雙拼別墅設計圖,歐式兄弟雙拼圖片
占地:240平方米
農村120平方房子設計圖,三層房屋設計圖精選
占地:120平方米
農村一層小別墅設計圖,經濟大氣,16米乘9米
占地:124.12平方米
豪華雙拼三層別墅設計圖,在農村建一棟,將是最靚的風景!
占地:186.85平方米
歷時8個月的農村自建小別墅分享!
閱讀次數:76058次
包工包料20萬左右的自建房屋設計過程直播:
閱讀次數:55732次
農村一層自建房屋設計全程實錄!
閱讀次數:50210次
自建20萬小兩層偽別墅全程直播!
閱讀次數:49326次
安徽農村自建房屋過程全程直播。
閱讀次數:42364次
衡陽一層半自建農村房屋設計全程實錄直播!
閱讀次數:38030次
11×10米農村二層自建房施工圖,比效果圖還漂亮,村里看了都夸贊
閱讀次數:37485次
35萬建好農村復式二層小別墅,實拍完工圖,附施工戶型圖【建房
閱讀次數:36514次
鄉村自建房屋設計全程直播!
閱讀次數:28882次
為父母,為自己退休后的養老打造一個舒適的鄉間農院!
閱讀次數:27118次
