
|
湖南楊總生在農村,家里條件不好,房子也破破爛爛的。那時候楊總便有這樣一個夢想,長大后努力掙錢,回家建一棟大房子。
為了謀生計楊總很小就外出闖蕩,沒什么學歷在外四處碰壁,工作也十分辛苦,最后決定開大貨車送貨,這一開便是十多年,經過多年的辛苦,無數個日日夜夜的奔波,攢夠了錢第一想法就是回家建棟漂亮的房子。
楊總有一個弟弟,倆人都是在困苦中長大,兩兄弟之間的感情雷都劈不開,雖然如今在外各自打拼,但是一說到回老家建房,兩兄弟毫不猶豫選擇了建一棟雙拼住宅。
建房首先需要找好設計圖紙,楊總在網上搜到咱們圖紙之家,楊總回憶說在圖紙之家買完圖紙后,銷售人員跟他說,說圖紙之家在湖南有本地合作的施工隊伍,非常專業,而且合作了很多年了,抱著試試的想法,楊總讓銷售人員推薦了一下。 這個隊伍就是陳工隊,沒錯,陳工它們的隊伍目前在全國多省份都擴展了分部,其中湖南就是非常重要的一個地區。陳工它們因其建房速度快、價格實惠專業等優勢,楊總經過多家對比,放在了首選列表中。 在楊總實地看過他們的一些建房實例后,就確定了下來。 楊總說跟兄弟倆人也想過自買材料做清包工,但是想著自己對建房不是很懂行,想直接找專業的隊伍施工,這樣只比較省時,省力。還有一個重要的原因就是請靠譜的專業施工隊伍,可以全程交給他們打理,不耽誤自己的工作時間。
很多朋友怕自己沒有監工的時候施工隊偷工減料,其實不然,現在的專業施工隊伍有成套的設備和管理措施,施工比較規范。而且現在交流非常方便,一個視頻就可以隨時查看進度和施工情況,這樣一來,不怕施工隊偷工減料建房也非常省心。我們只需支付進度款,就可以等待入住,將建房繁雜的事情簡單化了。
施工隊進入現場勘測,測量具體數據等 經過詳細溝通,簽訂有保障具有法律效應的雙方合同 施工隊進場,每天都會在群里匯報建房進展,以及每天都會發布視頻讓客戶觀看。 做好每一步都會用工具進行檢驗
陳工曾經說過,關于鄉村住宅,想過很多,做的也很多,總是怕不夠,所以要求工地上的每一個工人都要不斷的去完善細節,努力從細節中突破,要求更標準化,規范化,要不斷的優化自身的標準。 在給大家補充一下細節照片。
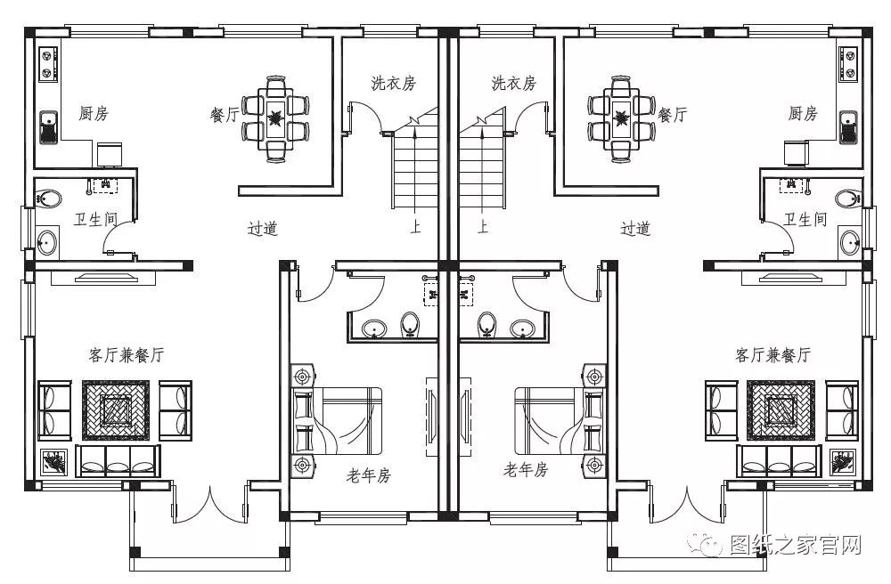
好了總體基本看完了,咱們來說說價格,長期關注我們的朋友肯定都知道咱家的圖紙非常物美價廉,同樣土建施工也是一樣,陳工它們的隊伍報的價格與您本地最后的總價相差不大,但是陳工它們所有的材料都會用國內一、二線品牌的材料,所以相對來說優惠是很大的。 房子建這么漂亮,完工后楊總非常滿意,多年的夢想得以實現,一直壓抑在心中的石頭得以落地,以后的日子也會越來越好。 給大家看下楊總建房參考的這套圖紙,外觀采用的對稱設計,整體非常層次分明,露臺、陽臺、落地窗等,整體造型很大氣,時尚,非常實用。
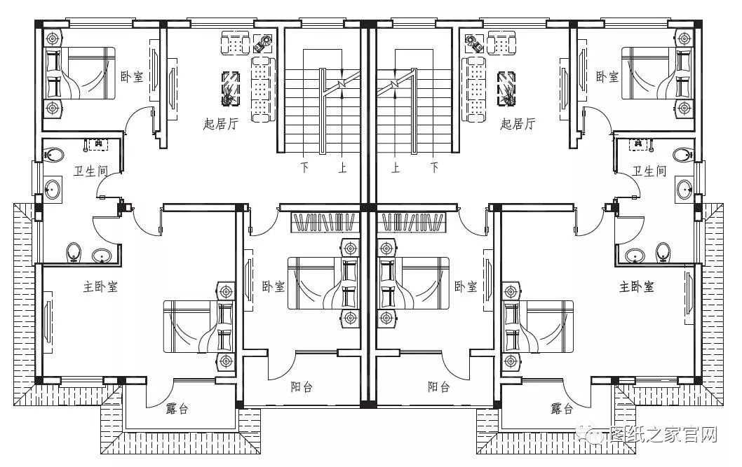
這款圖紙室內布局也非常實用,一層作為工作區域,有大客廳,洗衣房等,還有方便父母居住的老人房。而二層則兩戶獨立,擁有屬于各自的私密空間,二三層為主要居住區,如果想調整可以把臥室改成書房及功能區。
每個人都有一個成長的過程,或歡喜,或悲傷,或輕松,或煎熬,當我們經過人生最難捱的時刻,整個人生也就豁然開朗,朋友們,你們有什么經歷呢? 歡迎一起分享。 微信掃一掃二維碼,查看更多施工案例和全套圖紙!(或添加微信公眾號:tuzhi558)
轉載請注明出自別墅設計網:http://www.bjcyqiyejia.com/ 千套別墅設計帶別墅圖片 |

2024新中式農村三層別墅圖,外觀漂亮,看一眼就愛上
占地:240平方米
農村四間兩層樓房設計圖,外觀時尚,戶型實用
占地:180平方米
農村18萬元二層小樓圖紙,漂亮實用的農村二層樓房設計圖
占地:140平方米
新農村簡歐三層樓房圖片自建3層別墅施工設計圖及效果圖
占地:126平方米
農村最好看兩層小樓圖及全套CAD施工圖紙,新中式風格,簡潔大氣
占地:150平方米
簡歐式三層半(4層)農村自建房別墅設計圖效果圖,帶車庫戶型
占地:127平方米
最漂亮的農村二層小樓設計圖紙,簡約又大氣時尚
占地:120平方米
農村120方三層自建房子圖,好看又不貴的三層農村別墅
占地:120平方米
古典韻味的四層房屋設計圖,占地140平米左右,這樣的外觀配上紅
占地:140平方米
現代風格精致兩層農村自建房住宅設計圖,帶儲藏室
占地:163平方米
帶車庫鄉下雙拼別墅設計圖,三層造型漂亮大全
占地:256平方米
140平方米三層豪華新中式別墅設計圖紙帶外觀效果圖
占地:141.35平方米
帶閣樓兩層半雙拼別墅房屋設計圖,帶外觀效果圖
占地:240平方米
鄉村二層別墅設計圖,含外觀效果圖,設計師推薦
占地:140平方米
時尚耐看現代二層農村別墅設計圖,14米×11米,年輕人建房的不二
占地:138.125平方米
一層中式七字型房屋設計圖,帶院子經典設計,耐看不過時
占地:163.18平方米
130-140平方米簡歐風格二層別墅設計施工圖紙,簡約大氣
占地:137平方米左右
占地170平米2024新款三層別墅設計圖片及設計方案
占地:170平方米
二層歐式別墅設計圖,挑空客廳+柴火灶,12.5米乘12米
占地:131.25平方米
高端三層新中式農村別墅設計圖,仿合院布局,外觀霸氣
占地:133.64平方米
歷時8個月的農村自建小別墅分享!
閱讀次數:76058次
包工包料20萬左右的自建房屋設計過程直播:
閱讀次數:55732次
農村一層自建房屋設計全程實錄!
閱讀次數:50210次
自建20萬小兩層偽別墅全程直播!
閱讀次數:49326次
安徽農村自建房屋過程全程直播。
閱讀次數:42364次
衡陽一層半自建農村房屋設計全程實錄直播!
閱讀次數:38030次
11×10米農村二層自建房施工圖,比效果圖還漂亮,村里看了都夸贊
閱讀次數:37485次
35萬建好農村復式二層小別墅,實拍完工圖,附施工戶型圖【建房
閱讀次數:36514次
鄉村自建房屋設計全程直播!
閱讀次數:28882次
為父母,為自己退休后的養老打造一個舒適的鄉間農院!
閱讀次數:27118次
