
|
2棟豪華氣派的四層農村別墅,第一棟帶架空層,停車很方便。為了房子看起來更氣派,很多戶型在底下做一個架空層,而且架空層的用途一般也比較大,既可以用來做車庫,也可以做堂屋、儲物間或者擺酒用等等,下面這兩棟別墅,其中一棟使用了架空層設計,另一棟配地下室。 帶架空層的別墅:13×15.1米,框架結構,外墻面配落地窗設計,主要用到的裝飾材料是仿大理石的真石漆,屋面蓋藍色琉璃瓦。
布局說明:架空層的主要用途是車庫,一層設計有兩室兩廳一廚兩衛,配有單獨的小堂屋,客廳挑空,使用帶弧形的樓梯;二層設計有三室一廳兩衛,主臥帶獨衛,配休閑茶室和室外生活陽臺;三層設計有三室一廳兩衛,室內配置和二層一樣,室外用到一個觀景露臺。
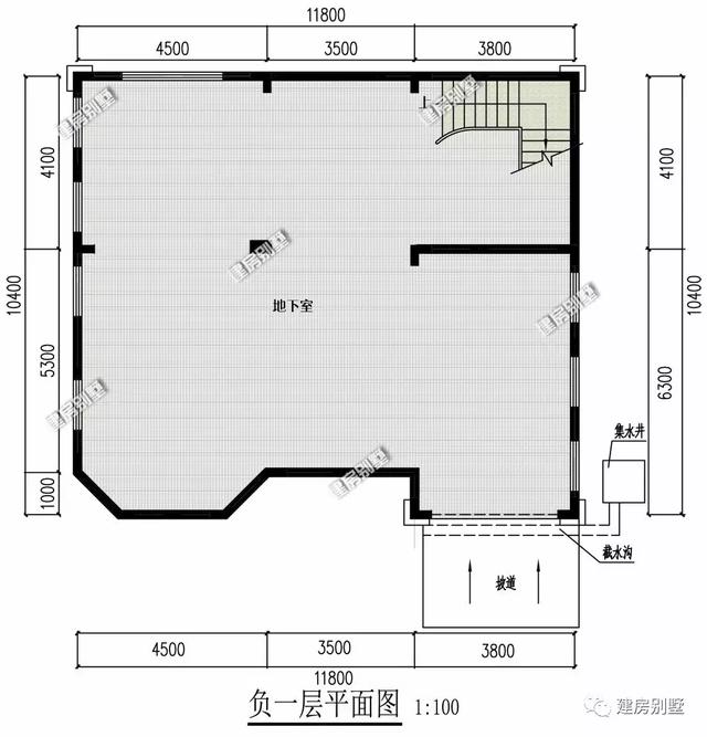
帶地下室的別墅:11.8×10.4米,框架結構,主體造價50萬左右,外墻面裝飾主要用的是仿大理石的真石漆材料,配多邊形采光窗和浮雕,造型感很強。
布局說明:地下室是半露于地面部分的,所以可以用來做車庫,一層設計有一室兩廳一廚一衛,使用室內小臺階設計,三跑式的直角樓梯,南北通透居住舒適;二層設計有三室一廳兩衛,主臥帶多邊形窗和獨衛,配一個衣帽間;三層設計有兩室一廳一衛,配書房和室外觀景式露臺。
能在老家擁有一棟這般氣派的別墅,那真的是人生中一件很幸運的事情。 圖紙之家-專注農村別墅/自建房設計18年,集合國內200余位經驗豐富的設計師,被評為口碑最好的農村建筑設計公司! |

120平方房子設計圖及外觀圖片,12x10經典設計
占地:120平方米
樓中樓客廳挑高二層別墅設計圖,復式別墅方案推薦
占地:122平方米
150平左右新農村自建房設計圖,含外觀效果圖
占地:150平方米
200平農村二層別墅設計圖,外觀現代簡約
占地:204平方米
二層美式花園洋房設計圖,帶堂屋戶型,外觀簡直美爆了
占地:159.32平方米
最漂亮的一層平房圖片及設計圖,造價18萬左右,結構簡單易于施
占地:186平方米
一二層都帶廚房餐廳的獨棟二層別墅設計圖,帶雙廚房
占地:143.68平方米
農村中式一層三合院自建房戶型方案圖,帶庭院設計
占地:222平方米
農村三層兄弟雙拼別墅設計圖及效果圖片,14X12米自建戶型
占地:154平方米
歐式二層5大間別墅設計圖,新穎獨特的外觀,面寬20米
占地:180.14平方米
復式三層別墅設計圖片及全套圖紙,客廳中空,外觀為歐式建筑的
占地:175平方米
新中式小戶型二層別墅效果圖及全套施工設計圖,造價經濟實惠
占地:108平方米
二層半房子設計圖及效果圖,客廳中空,南北通透
占地:160平方米
占地80平四層平頂別墅設計圖,現代風房子效果圖
占地:80平方米
2026新款四層樓房設計圖,占地120平方米左右,客廳中空
占地:120平方米
115平方米農村三層別墅設計圖,預算30萬左右
占地:115平方米
275平方米新農村雙拼樓中樓戶型別墅設計圖紙及效果圖21X14米
占地:275平方米
160平方米新農村三層半別墅設計圖11X16米65萬以內
占地:160平方米
田園輕奢三層帶露臺的鄉村別墅設計圖紙,11x10米
占地:106.64平方米
建完被夸半年!現代風三層農村別墅,顏值抗打還百看不厭
占地:136.01平方米
推薦:10套新農村自建房設計圖,2026年最新設計
閱讀次數:4825737次
100套鄉村別墅圖片大全,2026年最新設計
閱讀次數:2492203次
6款農村蓋一層平房的設計圖,10萬元就能建起來
閱讀次數:1852637次
這11個一層農村自建房別墅火爆了朋友圈!我最喜歡戶型十!你呢
閱讀次數:750268次
農村6萬元建一層小別墅圖,你敢相信嗎
閱讀次數:567686次
農村5萬塊就能自建房,6套普通房子設計圖分享,你沒看錯!
閱讀次數:419410次
8套農村漂亮三間平房圖片,非常適合在農村修建!
閱讀次數:411197次
農村自建房化糞池怎么做?附方案及施工過程
閱讀次數:391783次
農村一層三間平房設計圖,告別土氣養老房,讓人忍不住點贊
閱讀次數:350581次
新農村二層樓房圖片造價12萬,挑一套回家建房吧!
閱讀次數:349126次
