基本信息
項目名稱:金沙御墅
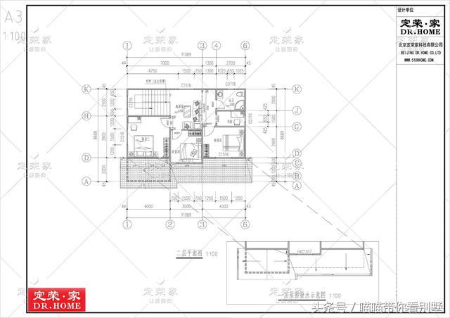
基本信息:兩層
建筑層高:一層:3m;二層:3m
項目面積:166.4m2
占地尺寸:12.3?9.9
室內布局:五室三廳兩衛
外墻材料:水泥纖維掛板,文化石
屋頂材料:歐式瀝青瓦
從戶型布局上來說,本方案有五間臥室,進門為一個較大的門廳。門廳通過兩個大的弧形洞口連接客廳和一個開放式的娛樂室,使得一樓的空間顯得更加的開闊,但通過洞口分割,又有空間的劃分,區分明確;
從整體造型設計上來說,場地空曠且平整,四周無房屋,無復雜地形,別墅的外觀為歐式風格,材料為水泥纖維掛板。設計師合理的利用每一個空間,讓整個房子的造型立體起來,讓整個空間靈動起來。






































