
|
房子基本信息 進深:14.9m 面寬:10m 面積:241m² 結構:磚混結構 造價:36w
這家的房主喜歡浪漫主義,在老家舊房子的改造上更是凸顯,一心想要一棟西方建筑,結合當地的民俗風情,最終還是決定將房子設計為簡歐風格。
別墅的外觀采用的是石料制作而成,上層采用米黃色磚石,令整棟建筑更顯溫馨,下層的黑白相間磚石,一方面耐臟耐舊,另一方面也和上層建筑形成明顯的分割線。
別墅一共有兩層,可以供十幾口人同時生活、居住。為了滿足一家人的出行,在別墅的后方還專門設計有停車位,流線型的運動軌跡可以方便車輛的進出。
此外,在別墅的一二樓都分別設置有陽臺及護欄,可以讓房主一家在閑暇時分,在此喝茶、看書、聊天、賞景。甚是愜意。
別墅的入室門設計在整棟建筑的中間位置,一方面符合咱們中國人的習慣,另一方面也很好的將別墅的活動區域一分為二,一邊靜,一邊動,更符合人體工程。
別墅采用的是斜坡屋頂,這一屋頂的好處就在于,不僅外觀上令別墅更加的恢弘大氣,還能及時的將屋頂的雨水排出。
在別墅的四周,還種植有不少的綠植,這樣在一年四季,便都能欣賞到不同的美景了。
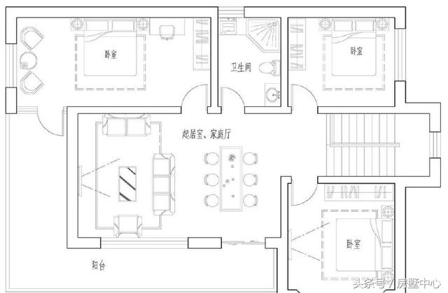
一層平面圖 入戶玄關可通往樓梯間和客廳,兩側開通的設計將客廳與樓梯間變相連通。一層動線十分舒適,客廳與餐廳沒有隔斷,整體空間南北通透,讓室內更加開闊大氣。
二層平面圖 二層公共空間面積較大,起居室和家庭廳借助天窗和南側窗戶采光,多向光照讓空間整體十分舒適。整層共有三間臥室,西北角臥室直通露臺,借助此處露臺,臥室能獲取南向采光。 圖紙之家-專注農村別墅/自建房設計18年,集合國內200余位經驗豐富的設計師,被評為口碑最好的農村建筑設計公司! |

造價便宜的二層雙拼別墅設計圖,造型簡約大氣,進深10米
占地:SP23059
新農村二層房屋設計圖紙(全套建筑施工圖紙+外觀效果圖)
占地:85平方米
農村中式四合院房屋圖片及設計圖,白墻黛瓦的江南風格
占地:337平方米
私人二層農村小樓設計圖,外觀靚麗,富有現代氣息
占地:160平方米
新農村140平米樓房圖四層獨棟別墅設計圖,簡歐外觀風格設計
占地:141平方米
200平方米別墅設計圖紙(含效果圖),農村別墅方案精選
占地:200.26平方米
130平方米復式三層別墅房屋設計圖,含外觀效果圖
占地:130平方米
16×12米二層歐式帶車庫農村小別墅,既舒適又美觀
占地:180平方米
全套三層農村房屋設計圖紙,客廳中空,大大的窗戶,采光極好,
占地:160平米
鄉下三層大氣房子設計圖,外觀挺高大上的,主體29萬多
占地:132.48平方米
六開間三層農村自建別墅設計圖,盡享豪華舒適生活
占地:341.91平方米
95平經濟適用三層農村小別墅設計圖,二開間推薦爆款戶型
占地:95.31平方米
帶車庫二層165平別墅房屋設計圖,含效果圖
占地:165平方米
泰式風格三層小別墅設計圖,帶車庫和大露臺
占地:120平方米
帶電梯農村建房三層小洋樓,樓中樓結構,帶露臺
占地:110平方米
新中式高端三層雙拼自建房別墅設計圖,豪華霸氣的外觀
占地:256.02平方米左
120平方米農村漂亮實用的兩層別墅設計圖紙,含外觀圖片
占地:120平方米
二層農村自建小別墅設計圖,歐式風格,占地160平方米
占地:160平方米
農村一層中式三合院別墅設計圖,戶型經典實用,19米乘15米
占地:243.21平方米
鄉下一層自建養老平房戶型圖及全套圖紙,占地面積200左右
占地:200平方米
推薦:10套新農村自建房設計圖,2026年最新設計
閱讀次數:4825737次
100套鄉村別墅圖片大全,2026年最新設計
閱讀次數:2492203次
6款農村蓋一層平房的設計圖,10萬元就能建起來
閱讀次數:1852637次
這11個一層農村自建房別墅火爆了朋友圈!我最喜歡戶型十!你呢
閱讀次數:750268次
農村6萬元建一層小別墅圖,你敢相信嗎
閱讀次數:567686次
農村5萬塊就能自建房,6套普通房子設計圖分享,你沒看錯!
閱讀次數:419410次
8套農村漂亮三間平房圖片,非常適合在農村修建!
閱讀次數:411197次
農村自建房化糞池怎么做?附方案及施工過程
閱讀次數:391783次
農村一層三間平房設計圖,告別土氣養老房,讓人忍不住點贊
閱讀次數:350581次
新農村二層樓房圖片造價12萬,挑一套回家建房吧!
閱讀次數:349126次
