
|
現在在農村二三層的別墅非常常見,反而是平房,卻越來越少了。其實如果家中人口不多的話,或者只是建一個養老房,根本沒有必要去蓋二三層的別墅,隨便花個十來萬蓋一個彭芳是最好的,今天小編就給大家帶來了三款現代農村一層平房圖片,如果有你喜歡的,可千萬要抓緊時間收藏圖紙蓋房子啦。 戶型一:新款現代一層別墅設計效果圖,農村自建房平房推薦戶型占地面積:13m*9.3m,129.36平方米; 建筑層高:一層; 建筑高度:6.193米(含屋頂); 設計功能: 一層戶型:客廳、廚房、餐廳、臥室X3、臥室(帶衛生間); 圖紙介紹:本戶型占地130平米左右,外觀時尚漂亮,戶型經典實用,歐式風格非常經典耐看;室內有四室兩廳一廚兩衛,客廳主臥有飄窗,戶型通透,滿足大多數農村生活居住需求。
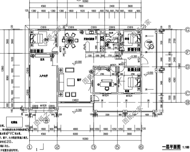
戶型二:現代田園風格一層別墅設計圖,帶閣樓占地面積:18.36m*12.86m,220平方米左右; 建筑層高:一層半; 建筑高度:9.1米(含屋頂); 設計功能: 一層戶型:入戶大廳、玄關、客廳、餐廳、廚房、臥室x3、書房、衛生間; 閣樓戶型:臥室、衛生間; 圖紙介紹:本戶型帶閣樓設計,外觀時尚,沉穩大氣;室內布局也很實用,造價經濟,施工簡單,室內空間非常大注重生活品質,居住其中會有非常舒適的居家體驗。
戶型三:現代一層別墅房屋設計圖,主體造價15萬左右占地面積:14.0m*13.5m,建筑面積180平左右; 建筑層高:一層; 建筑高度:6.50米(含屋頂); 設計功能: 一層戶型設計:客廳、餐廳、廚房、主臥(帶衛生間)、臥室x2、書房、衣帽間、衛生間; 圖紙介紹:本戶型含外觀圖片,內部布局十分合理,空間利用率高,采光極佳;外觀看上去非常現代,時尚感很強。
以上就是小編這次為大家帶來的別墅設計圖,喜歡哪一款下方留言告訴我。
圖紙之家-專注農村別墅/自建房設計18年,集合國內200余位經驗豐富的設計師,被評為口碑最好的農村建筑設計公司! |

農村10萬元一層小別墅設計圖紙,戶型實用又合理
占地:130平方米
農村大氣四層樓房圖片及全套設計圖紙,復式客廳旋轉樓梯
占地:143平方米
共用樓梯二層雙拼自建別墅設計圖,簡單大氣方正
占地:153.88平方米,
高端豪華三層別墅住宅設計方案圖,歐式外觀風格
占地:170平方米
豪華復式三層別墅設計圖紙,效果圖+建筑施工圖+結構施工圖
占地:126平方米
經典小戶型新農村房屋住宅設計圖,10萬左右
占地:80平方米
美式田園二層別墅設計方案圖,全套設計圖+效果圖
占地:235平方米
8萬元二層農村房子圖片及設計圖,簡易二層小樓,占地50平米
占地:50平方米
現代三層農村民房設計圖及圖片,外觀高端、大氣
占地:196平方米
60多平三層現代風格別墅設計圖,小戶型平屋頂
占地:66.4平方米
好看實用農村2開間二層別墅設計圖,主體19萬
占地:117.36平方米
經典三層農村房屋設計圖紙,占地100平米左右,外觀典雅精致,內
占地:100平方米
農村二層住宅樓房設計圖紙,全套方案(施工圖+效果圖)
占地:113平方米
三層平頂現代風格,農村自建房設計圖,可帶電梯,百看不厭
占地:259.55平方米
新農村全套四層別墅設計圖紙占地面積:190平方米造價預算:42萬
占地:190平方米
農村10萬元一層小別墅設計圖,農村一層自建房屋設計圖
占地:多種戶型
農村四層樓房設計圖,含外觀圖片,自建四層房屋推薦
占地:140平方米
面寬15米的農村三層房屋設計圖,帶別墅效果圖
占地:137平方米左右
50萬左右農村豪華二層別墅設計圖 ,大廳中空,外觀精美
占地:210平方米
新農村實用三層帶露臺房屋設計圖紙,占地110平方米
占地:109平方米
推薦:10套新農村自建房設計圖,2026年最新設計
閱讀次數:4825737次
100套鄉村別墅圖片大全,2026年最新設計
閱讀次數:2492203次
6款農村蓋一層平房的設計圖,10萬元就能建起來
閱讀次數:1852637次
這11個一層農村自建房別墅火爆了朋友圈!我最喜歡戶型十!你呢
閱讀次數:750268次
農村6萬元建一層小別墅圖,你敢相信嗎
閱讀次數:567686次
農村5萬塊就能自建房,6套普通房子設計圖分享,你沒看錯!
閱讀次數:419410次
8套農村漂亮三間平房圖片,非常適合在農村修建!
閱讀次數:411197次
農村自建房化糞池怎么做?附方案及施工過程
閱讀次數:391783次
農村一層三間平房設計圖,告別土氣養老房,讓人忍不住點贊
閱讀次數:350581次
新農村二層樓房圖片造價12萬,挑一套回家建房吧!
閱讀次數:349126次
