
|
以前復式住宅只在城里面見過,但是農村建的人是很少見的,但是現在,基本上這已經成了一棟農村自建房的標配,當然也是看個人喜好和房屋類型,像歐式別墅,室內配個挑空的客廳,那肯定是很大氣的。 第一棟帶挑空客廳的別墅戶型,外墻用面磚或真石漆來裝飾,16.1×12米的建房尺寸,建磚混結構或者框架結構都可以。
平面布局說明:一層有一間主臥室一個次臥室,中間配有公衛,該層兩個公衛設計更方便,戶型是通透的,廚房處設有后門;二層有豪華主臥室,還有兩間次臥室,室內外都有休閑區域;三層室內兩間備用的客房,還有休閑健身房和室外觀景平臺。
第二棟既有復式客廳,又有車庫的三層別墅戶型,11.2×11.7米的建房尺寸,外墻用面磚和真石漆裝飾,屋頂蓋紅瓦。
平面布局說明:一層一個單獨的封閉式車庫,客廳空間大、挑空而寬敞,直角樓梯,戶型通透居住舒適;二層室內設有三間臥室,中間配有很多的休閑區域,室外設有一個觀景陽臺;三層三間臥室,室內設有起居室,室外有大露臺和觀景涼亭。
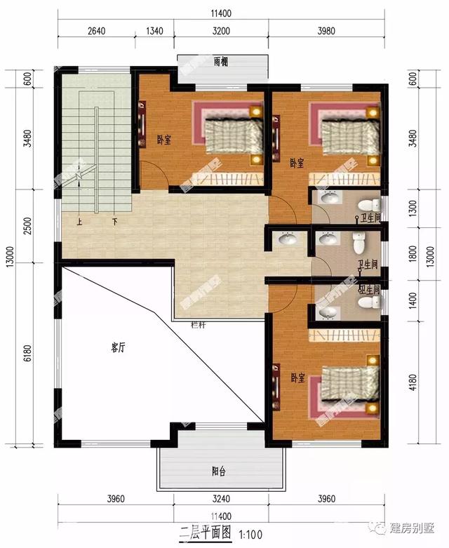
第三棟歐式風格的農村自建房,11.4×13米,外墻用面磚和真石漆來裝飾均可,屋頂蓋藍瓦。
平面布局說明:一層客廳和休閑茶室的這一塊區域就顯得相當的大氣,戶型通透,直角樓梯,設有一個帶獨衛的父母房很方便;二層室內配有三間臥室,三個衛生間,室外還有一個生活陽臺;三層室內也是三間臥室,還配有一個休閑茶室,室外設有一個觀景露臺。
建了一棟這樣的好房子,才叫享受生活呢! 圖紙之家-專注農村別墅/自建房設計18年,集合國內200余位經驗豐富的設計師,被評為口碑最好的農村建筑設計公司! |

大氣、簡約三層雙拼別墅設計圖,適合和父母同住,既相互關照又
占地:260平方米
帶車庫四層別墅外觀效果圖及設計圖紙,戶型方正通透
占地:115平方米
小占地三層現代時尚風別墅設計圖,平屋頂占地不足100平
占地:98.35平方米
農村建房的“面子天花板”!新中式簡歐結合三層別墅,進門就被
占地:225.98平方米
門廳共用二層歐式兄弟雙拼別墅圖片及施工圖
占地:340平方米
農村三層樓房圖造價26萬,客廳中空,占地90平米
占地:90平方米
農村四間一層房屋設計圖,160平方米,用來養老正合適!
占地:160平方米
10套農村經典二層樓房設計圖紙,多戶型,多尺寸,總有一款適合
占地:多種
簡歐式三層小別墅設計圖,帶地下室,客廳中空,占地150平米
占地:150平方米
實用三層新農村住宅設計圖,鄉村別墅設計圖(含外觀效果圖)
占地:102.34平方米
新農村兩層半小洋樓房設計圖,預算33萬左右
占地:多種戶型
140平方米一層歐式新農村平房設計圖,主體造價僅11萬
占地:141.218平方米
帶大露臺二層現代風別墅設計圖,去繁從簡,好看不過時
占地:122.25平方米
二層自建房子最新款設計圖,平屋頂簡約經濟,美觀不失大方。
占地:115.64平方米
農村二層別墅設計圖,帶外觀效果圖,兄弟自建推薦
占地:多種戶型
8×12米農村三層別墅自建房設計圖,小開間精選方案
占地:103平方米
最好看的農村三層樓房設計圖,占地113平米,小平米大格局
占地:110平方米
新農村兩層樓房設計圖,占地110平米,戶型簡單實用
占地:110平方米
全網都在抄的二層別墅!爆款12米面寬設計戶型太實用
占地:139.51平方米
回農村建養老房,還是一層平頂戶型最合適,不單單只是省錢
占地:102.24平方米
推薦:10套新農村自建房設計圖,2026年最新設計
閱讀次數:4825737次
100套鄉村別墅圖片大全,2026年最新設計
閱讀次數:2492203次
6款農村蓋一層平房的設計圖,10萬元就能建起來
閱讀次數:1852637次
這11個一層農村自建房別墅火爆了朋友圈!我最喜歡戶型十!你呢
閱讀次數:750268次
農村6萬元建一層小別墅圖,你敢相信嗎
閱讀次數:567686次
農村5萬塊就能自建房,6套普通房子設計圖分享,你沒看錯!
閱讀次數:419410次
8套農村漂亮三間平房圖片,非常適合在農村修建!
閱讀次數:411197次
農村自建房化糞池怎么做?附方案及施工過程
閱讀次數:391783次
農村一層三間平房設計圖,告別土氣養老房,讓人忍不住點贊
閱讀次數:350581次
新農村二層樓房圖片造價12萬,挑一套回家建房吧!
閱讀次數:349126次
