
|
兄弟如手足,情深似左右手,農村的家庭家里有兩兄弟的,都會選擇建造雙拼戶型,兩戶之間就一墻之隔,而且造價算下來兩人平攤,比獨建省了不少錢,獨門獨戶,這是目前兩兄弟間比較理想的戶型,今天小編給大家分享一套豪華款三層雙拼別墅設計圖,24×14帶大堂屋多功能設計省錢實用! 本套農村自建別墅戶型簡介 層數:三層 結構形式:框架結構 主體造價:80萬 開間:23.6米 進深:13.5米 占地面積:275.20平方米 建筑面積:842.91平方米
效果圖 這套雙拼別墅戶型設計精美獨特,外觀設計相當豪華,各結構很有立體感,有多個陽臺,室內寬敞通透。一層前室是左右兩戶連接在一起,面積比較寬敞,兩戶雙拼,節省成本,還能相互有個照應,很適合農村兩兄弟入住。 布局展示 注:以下功能布局僅指左邊(或右邊)一戶。
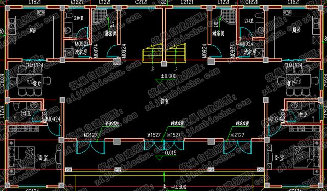
一層平面圖 一 層:前室、餐廳、廚房、臥室、公共衛生間、淋浴間(帶洗衣房、衛生間);
二層平面圖 二 層:客廳、餐廳、臥室(帶內衛、陽臺)、臥室(帶陽臺)、娛樂廳、淋浴間(帶洗衣房、衛生間);
三層平面圖 三 層:露臺、客廳(帶陽臺)、臥室(帶陽臺、內衛)、書房、臥室、淋浴間(帶洗衣房、衛生間)。 更多雙拼別墅推薦:
1
2
圖紙之家-專注農村別墅/自建房設計18年,集合國內200余位經驗豐富的設計師,被評為口碑最好的農村建筑設計公司! |

帶商鋪挑高的三層別墅房屋設計圖,商鋪挑高,層高比較高
占地:118平方米
三層平屋頂別墅房屋設計圖及外觀效果圖
占地:150平方米
雙拼小別墅設計圖紙(含效果圖),二層別墅設計方案精選
占地:130平方米
20萬農村自建三層別墅設計圖,外觀美觀,戶型實用
占地:105平方米
時尚大氣的三層現代風別墅設計圖,露臺+挑空客廳
占地:321平方米
二層復式農村別墅設計圖,進深12米,戶型堪稱完美
占地:193.2平方米
現代別墅設計圖紙帶效果圖,85平、100平、145平三個戶型方案
占地:多種戶型
農村三層復式自建樓房設計圖,外觀圖大氣
占地:130平方米
二層新中式別墅設計施工圖,廚房在配房,占地140平米
占地:141平方米
18米乘10米一層農村自建房設計圖,大方耐看符合傳統對稱美
占地:180平方米
兩層樓房設計圖,兩層新農村樓房圖紙,外觀典雅古樸
占地:140平方米
兩層農村自建二層樓設計圖紙,面寬12米左右
占地:131.2平方米
農村大戶型中式二層四合院別墅設計圖含外觀效果圖,戶型經典、
占地:464平方米
三層蓋房子歐式挑空客廳別墅設計圖,外觀漂亮戶型實用
占地:多種戶型
130平帶閣樓兩層半別墅房屋設計圖,含外觀效果圖
占地:130平方米
歐式獨棟二層小別墅設計圖,客廳中空,占地126平米
占地:120平方米
高顏值農村二層別墅設計圖,顏值在線造價不高,建房好選擇!
占地:216.93平方米
10米×13米最好看的農村三層樓房圖,客廳中空
占地:124平方米
120平方房子設計圖及外觀圖片,12x10經典設計
占地:120平方米
二層歐式別墅設計圖,挑空客廳+柴火灶,12.5米乘12米
占地:131.25平方米
推薦:10套新農村自建房設計圖,2026年最新設計
閱讀次數:4825737次
100套鄉村別墅圖片大全,2026年最新設計
閱讀次數:2492203次
6款農村蓋一層平房的設計圖,10萬元就能建起來
閱讀次數:1852637次
這11個一層農村自建房別墅火爆了朋友圈!我最喜歡戶型十!你呢
閱讀次數:750268次
農村6萬元建一層小別墅圖,你敢相信嗎
閱讀次數:567686次
農村5萬塊就能自建房,6套普通房子設計圖分享,你沒看錯!
閱讀次數:419410次
8套農村漂亮三間平房圖片,非常適合在農村修建!
閱讀次數:411197次
農村自建房化糞池怎么做?附方案及施工過程
閱讀次數:391783次
農村一層三間平房設計圖,告別土氣養老房,讓人忍不住點贊
閱讀次數:350581次
新農村二層樓房圖片造價12萬,挑一套回家建房吧!
閱讀次數:349126次
