
|
方正的戶型在設計上可以發揮的空間很大,除了采光充沛、通風流暢,空間利用率高外,在風水上來說也有利于一家的安定團結。農村建房傳統還是講究戶型方正,四平八穩。今天小編給大家挑選3套12×12米三層農村自建房全套施工圖,預算30萬左右! 【戶型1】 戶型簡介: 層數:三層 ; 結構形式:框架結構; 開間:12米; 進深:11.8米; 占地面積:132.24平方米 建筑面積:319.23平方米 主體造價:30萬;
戶型1 戶型1設計大方美觀,大量實用文化石裝飾,自然耐看,有多露臺設計,休閑空間闊綽,各結構高低錯落,層次分明,很有立體感,超大拱形聯體通窗玻璃漂亮采光。多處使用山花構件點綴,提升了整個房屋外觀的美感。 功能設計及平面布局圖:
一層平面圖 一 層: 玄關、客廳、餐廳、廚房、臥室(帶衛生間)、臥室、衛生間、花池
二層平面圖
二 層: 臥室(帶衛生間)、臥室(帶書房)、臥室、客廳、衛生間、露臺
三層平面圖
三 層: 臥室(帶書房)、臥室、衛生間、休閑區、露臺 【戶型2】 圖紙簡介: 開間 11.7米, 進深12.3米,占地面積 142.18平方米,建筑面積356平方米,主體造價32萬,磚混結構。 效果圖:
戶型2 戶型2采用黃色、白色真石漆,搭配耐看的灰色坡屋頂,屋頂設計層層疊進,很有層次感。三樓有大露臺,休閑空間充足,方便晾曬,超大落地窗的設計也給外觀增加了時尚感,室內還設有挑空客廳、旋轉樓梯等,格局現代大氣。 建成實景圖:
建成效果圖 這套 戶型建成效果非常漂亮,十分洋氣干凈利落,左邊落地窗設計巧妙精致,室內視野極好,毛坯房32萬左右。
建成效果圖
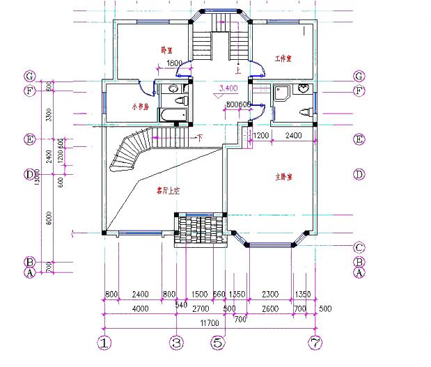
功能設計 一層:門廳、客廳、休閑廳、工人房、餐廳(帶廚房)、老人房、公共衛生間。 二層:客廳上空、主臥室(帶內衛)、臥室(帶小書房和內衛)、工作室。 三層:臥室(帶書房)、健身室、多功能大廳、露臺、公共衛生間。 平面布局圖:
一層平面圖
二層平面圖 【戶型3】 層數:三層 開間:12米 進深:12.3米 首層占地面積:147.6平方米 總建筑面積:329平方米 結構形式:框架結構 主體造價:30萬
戶型3 戶型3外墻采用經典的藍、百、黃三色搭配,給我們呈現一種清新自然的視覺效果,窗戶形狀設計多樣化,有拱形窗、凸窗等,前后采用多陽臺設計,延伸室內空間,休閑美觀。 功能設計
一層平面圖 一層:客廳、廚房、餐廳、2臥室、公共衛生間、樓梯
二層平面圖 二層:起居室(帶陽臺)、臥室(帶衣帽間)、2臥室(帶陽臺)、書房、公共衛生間、樓梯
三層平面圖 三層:臥室(帶衣帽間)、2臥室(帶陽臺)、公共衛生間、大露臺 圖紙之家-專注農村別墅/自建房設計18年,集合國內200余位經驗豐富的設計師,被評為口碑最好的農村建筑設計公司! |

12x9米自建一層小別墅設計圖,占地不大造價低,簡單舒適人人夸
占地:108.36平方米
130平新農村二層住宅設計圖,外觀精致、漂亮
占地:130平方米
鄉村最美三層別墅設計圖自建房戶型,外觀圖精致漂亮
占地:134平方米
小型中式一層三合院別墅設計圖,小宅基地照樣建合院
占地:119.73平方米
80平農村房屋設計圖,小戶型自建房三層別墅推薦
占地:80平方米
自建二層獨棟別墅建筑施工圖,含效果圖和全套設計圖紙
占地:198.72平方米
簡歐二層別墅設計圖紙含效果圖片,寶家鄉墅經典風格
占地:137.34平方米
鄉村兩層半150平帶閣樓別墅房屋設計圖,客廳大、臥室多
占地:150平方米
一層共用,二層兄弟雙拼的二層別墅設計圖
占地:182.48平方米
140平米二層半帶露臺別墅圖片及圖紙,戶型極佳
占地:140平方米
120平帶車庫二層農村別墅施工圖,簡約時尚的外觀
占地:119.13平方米
現代風格建房圖紙二層別墅設計方案,外觀百看不厭
占地:多戶型可選
簡約精致的二層房子設計圖,農村自建經濟實用
占地:89.76平方米
好看精致的三層自建房別墅設計圖,開間12米進深12米左右
占地:125.73平方米
四間兩層別墅房屋設計圖,外觀效果圖好看
占地:235平方米
帶配房的二層鄉村歐式別墅設計圖,尺寸15.84×13.84米
占地:149.19平方米
農村三層歐式別墅豪宅戶型圖設計方案,復式中空客廳+旋轉樓梯
占地:134.84平方米
二開間小戶型設計三層農村自建房方案,經濟型適合小宅基地建房
占地:107.02平方米
150平米農村兩層樓房設計圖,簡單大氣時尚
占地:150平方米
給爸媽建養老房?100 平人字坡一層房太合適!簡約低調還實用
占地:102.6平方米
推薦:10套新農村自建房設計圖,2026年最新設計
閱讀次數:4825737次
100套鄉村別墅圖片大全,2026年最新設計
閱讀次數:2492203次
6款農村蓋一層平房的設計圖,10萬元就能建起來
閱讀次數:1852637次
這11個一層農村自建房別墅火爆了朋友圈!我最喜歡戶型十!你呢
閱讀次數:750268次
農村6萬元建一層小別墅圖,你敢相信嗎
閱讀次數:567686次
農村5萬塊就能自建房,6套普通房子設計圖分享,你沒看錯!
閱讀次數:419410次
8套農村漂亮三間平房圖片,非常適合在農村修建!
閱讀次數:411197次
農村自建房化糞池怎么做?附方案及施工過程
閱讀次數:391783次
農村一層三間平房設計圖,告別土氣養老房,讓人忍不住點贊
閱讀次數:350581次
新農村二層樓房圖片造價12萬,挑一套回家建房吧!
閱讀次數:349126次
