
|
現在很多農村人在外面掙了錢,都會回老家把房子重建,蓋得相當大氣奢華,讓旁人羨慕不已,父母也會很高興,畢竟自己的孩子出息了,這是每個做父母最希望看到的。今天小編給大家介紹一款16×14米三層帶地下室農村別墅設計圖。
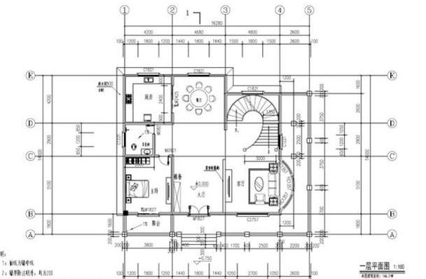
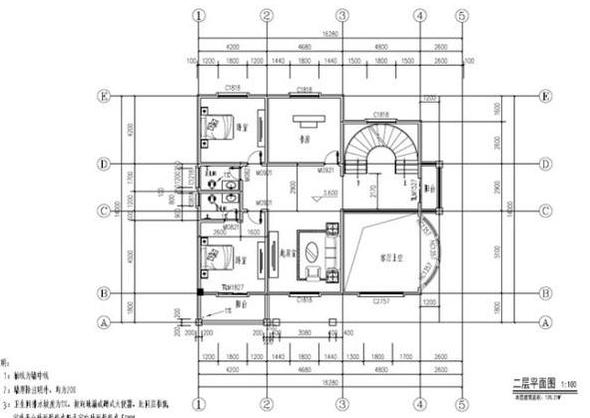
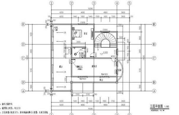
本套農村別墅設計圖地上主體共有三層,還帶有地下室,開間進深16.28米×14米,占地面積168㎡,,建筑高度13.35米,主體造價40萬左右。一層設有3廳1臥1衛(wèi)1廚1陽臺,二層設有1廳2臥2衛(wèi)1陽臺1書房,三層設有1臥1衛(wèi)1露臺1健身房。
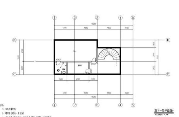
本戶型采用大量的落地窗設計,美觀大氣,室內采光充足,有走廊、陽臺和露臺,還有高聳大氣的門廊,右立面的弧形結構設計獨特美觀,室內客廳中空設計,有健身房、臥室套房,負一樓還設有KTV,滿足生活享受。
建造平面圖展示
地下層:衛(wèi)生間、儲物間/倉庫、KTV
一層:大廳、挑空客廳、主臥(帶陽臺)、廚房、餐廳、衛(wèi)生間、旋轉樓梯
二層:起居室、書房、臥室(帶陽臺、衛(wèi)生間)、臥室、衛(wèi)生間
三層:臥室(帶衛(wèi)生間)、健身房、露臺 圖紙之家-專注農村別墅/自建房設計18年,集合國內200余位經驗豐富的設計師,被評為口碑最好的農村建筑設計公司! |

五十萬二層半鄉(xiāng)村別墅,客廳挑空設計,占地200平米左右
占地:200平方米
農村二層小別墅自建房屋設計圖,客廳中空,占地150平米
占地:150平方米
一層中式七字型房屋設計圖,帶院子經典設計,耐看不過時
占地:163.18平方米
背面不開窗二層別墅設計圖,對稱設計簡單好看,眾多建房者的選
占地:183.79平方米
農村四層樓房設計圖,復式結構、客廳中空,外觀效果圖+全套圖
占地:130平方米
被包工頭夸爆的二層別墅戶型!建好未來幾年必火
占地:189.98平方米
新農村小戶型4層自建房三層半別墅設計圖,平屋頂設計
占地:95平方米
精致簡歐一層別墅設計圖,經典大氣百看不厭
占地:139.57平方米
農村七字型一層別墅圖,獨立廚房設計,鄉(xiāng)村建房優(yōu)選戶型
占地:159.76平方米
一層帶商鋪的四層樓房別墅設計圖紙和效果圖,房屋戶型圖
占地:133平方米
最新12x9米一層平房別墅設計圖,好看不貴居住舒適!
占地:108平方米
兩開間自建別墅設計圖,占地小造型簡約,不愁宅基地面寬小了
占地:118.4平方米
一層4間自建平房別墅及全套戶型圖紙,占地160平左右,簡單實用
占地:162.13平方米
南方北方新農村房屋設計圖紙(含效果圖),三層住宅設計圖紙
占地:164平方米
造價30萬的三層簡歐新農村別墅設計施工圖紙及效果圖
占地:133平方米
200平方米別墅設計圖紙(含效果圖),農村別墅方案精選
占地:200.26平方米
一層中式三合院別墅設計圖,白墻黛瓦引領潮流
占地:177.94平方米
兄弟倆二層雙拼別墅設計圖紙,一層共用,設計新穎
占地:180平方米
一層半小別墅設計圖帶效果圖,農村自建帶閣樓一層半方案
占地:155平方米
120平方米新農村二層自建房屋設計圖紙大全14x9米
占地:120平方米
推薦:10套新農村自建房設計圖,2026年最新設計
閱讀次數:4825737次
100套鄉(xiāng)村別墅圖片大全,2026年最新設計
閱讀次數:2492203次
6款農村蓋一層平房的設計圖,10萬元就能建起來
閱讀次數:1852637次
這11個一層農村自建房別墅火爆了朋友圈!我最喜歡戶型十!你呢
閱讀次數:750268次
農村6萬元建一層小別墅圖,你敢相信嗎
閱讀次數:567686次
農村5萬塊就能自建房,6套普通房子設計圖分享,你沒看錯!
閱讀次數:419410次
8套農村漂亮三間平房圖片,非常適合在農村修建!
閱讀次數:411197次
農村自建房化糞池怎么做?附方案及施工過程
閱讀次數:391783次
農村一層三間平房設計圖,告別土氣養(yǎng)老房,讓人忍不住點贊
閱讀次數:350581次
新農村二層樓房圖片造價12萬,挑一套回家建房吧!
閱讀次數:349126次
